Каталог по сериям
Выбрана серия: Серия 1.030.1-1/88
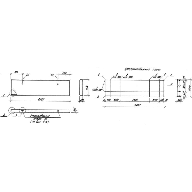
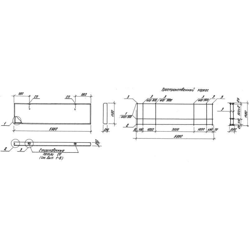
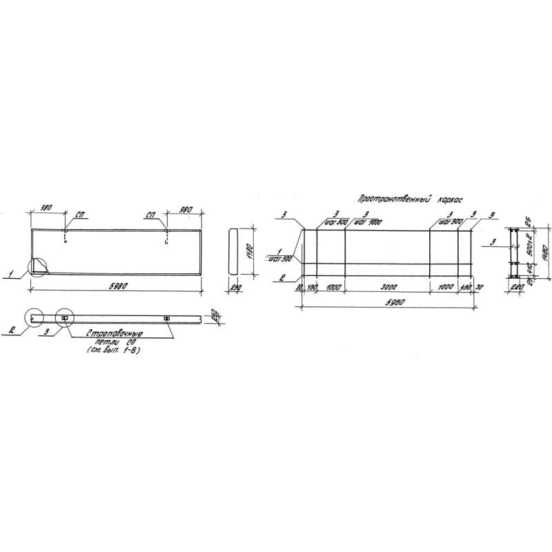
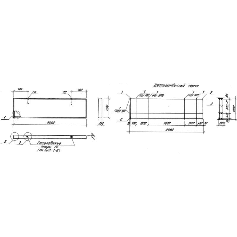
Серия 1.030.1-1/88

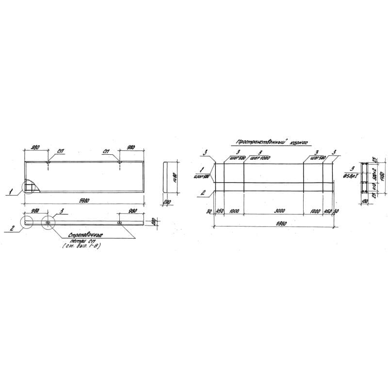
200x1480x5980ПС 60-15-2,0-4 я
Цена по запросу

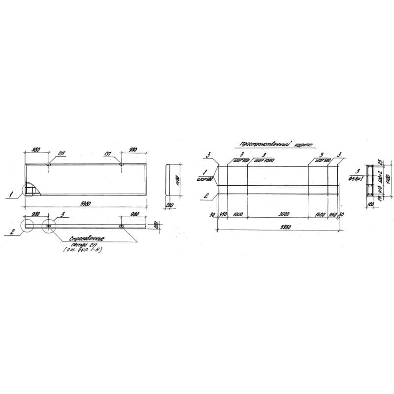
200x1480x5980ПС 60-15-2,0-5 л
Цена по запросу

200x1480x5980ПС 60-15-2,0-5 я
Цена по запросу

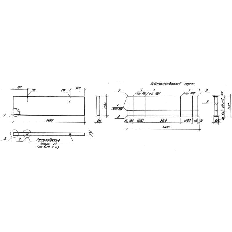
250x1485x5980ПС 60-15-2,5 л
Цена по запросу

250x1485x5980ПС 60-15-2,5 л-1
Цена по запросу

250x1485x5980ПС 60-15-2,5 я
Цена по запросу

250x1485x5980ПС 60-15-2,5 я-1
Цена по запросу

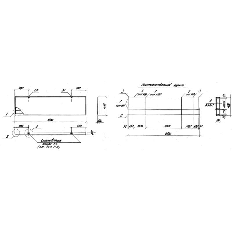
250x1480x5980ПС 60-15-2,5-2 л
Цена по запросу

250x1480x5980ПС 60-15-2,5-2 я
Цена по запросу

250x1480x5980ПС 60-15-2,5-3 л
Цена по запросу

250x1480x5980ПС 60-15-2,5-3 я
Цена по запросу

250x1480x5980ПС 60-15-2,5-5 л
Цена по запросу