Каталог по сериям
Выбрана серия: Серия 1.030.1-1/88
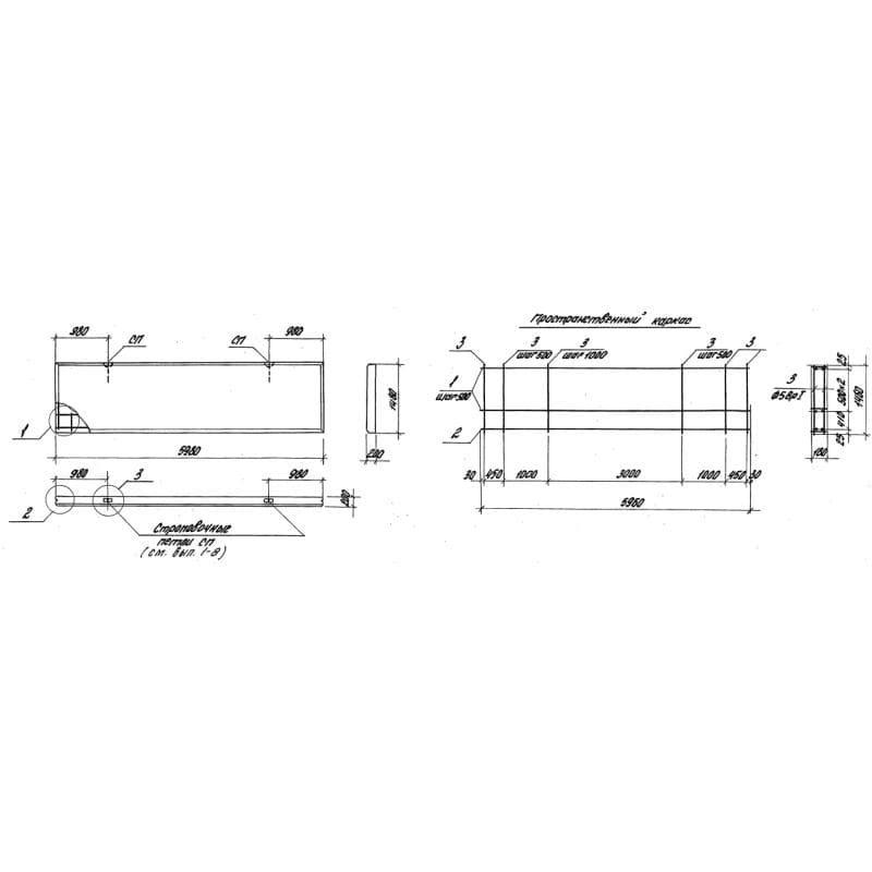
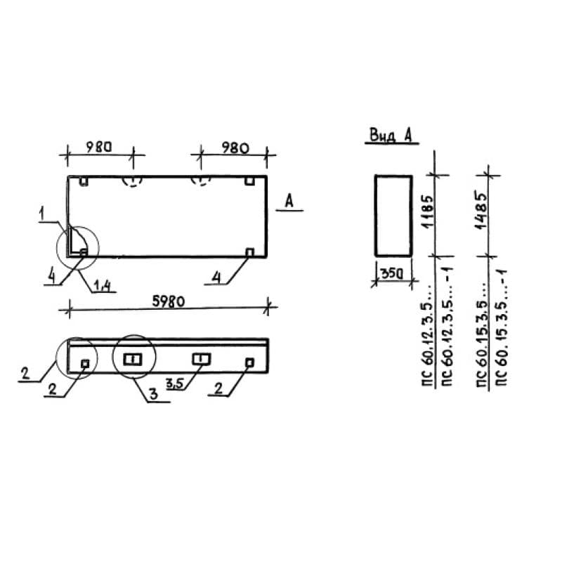
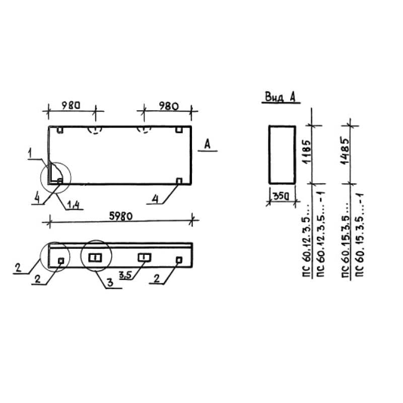
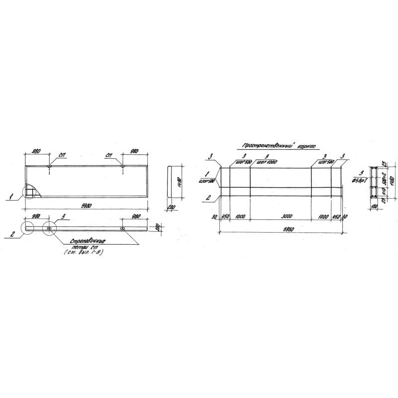
Серия 1.030.1-1/88

300x1180x5980ПС 60-12-3,0-5 я
Цена по запросу

350x1185x5980ПС 60-12-3,5 л
Цена по запросу

350x1185x5980ПС 60-12-3,5 л-1
Цена по запросу

350x1180x5980ПС 60-12-3,5-4 л
Цена по запросу

350x1180x5980ПС 60-12-3,5-6 л
Цена по запросу

400x1185x5980ПС 60-12-4,0 л
Цена по запросу

400x1185x5980ПС 60-12-4,0 л-1
Цена по запросу

400x1180x5980ПС 60-12-4,0-4 л
Цена по запросу

400x1180x5980ПС 60-12-4,0-6 л
Цена по запросу

200x1480x5980ПС 60-15-2,0-2 л
Цена по запросу

200x1480x5980ПС 60-15-2,0-2 я
Цена по запросу

200x1480x5980ПС 60-15-2,0-4 л
Цена по запросу