Каталог по сериям
Выбрана серия: Серия 1.141-8
Серия 1.141-8

1490x220x2980ПТ 30-15 ст (1.141-8)
Цена по запросу

1490x220x2980ПТ 30-15 ста (1.141-8)
Цена по запросу

1490x220x5080ПТ 51-15 ст (1.141-8)
Цена по запросу

1490x220x5080ПТ 51-15 ста (1.141-8)
Цена по запросу

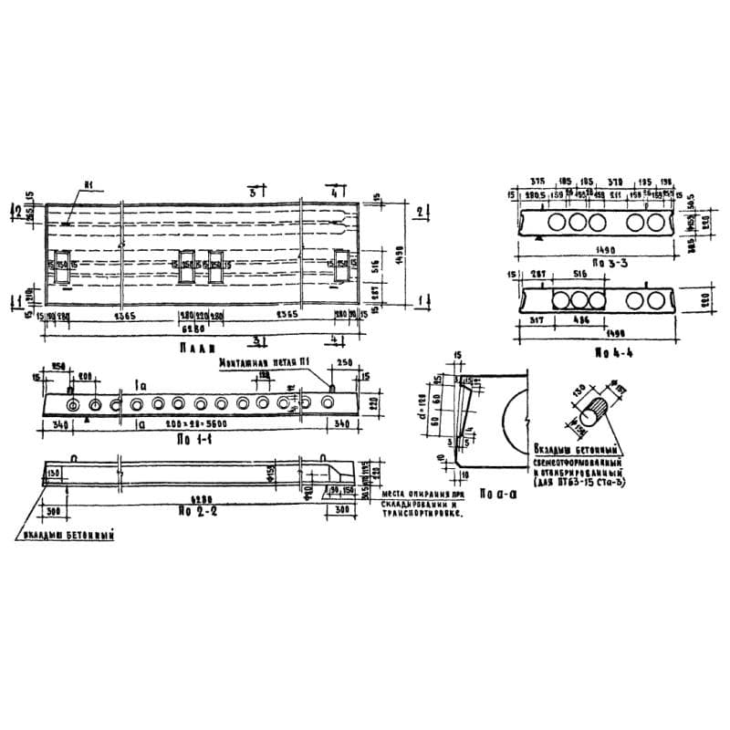
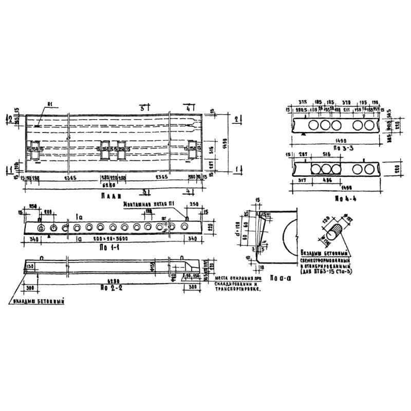
1490x220x6280ПТ 63-15 ст-2 (1.141-8)
Цена по запросу

1490x220x6280ПТ 63-15 ст-3 (1.141-8)
Цена по запросу

1490x220x6280ПТ 63-15 ста-2 (1.141-8)
Цена по запросу

1490x220x6280ПТ 63-15 ста-3 (1.141-8)
Цена по запросу