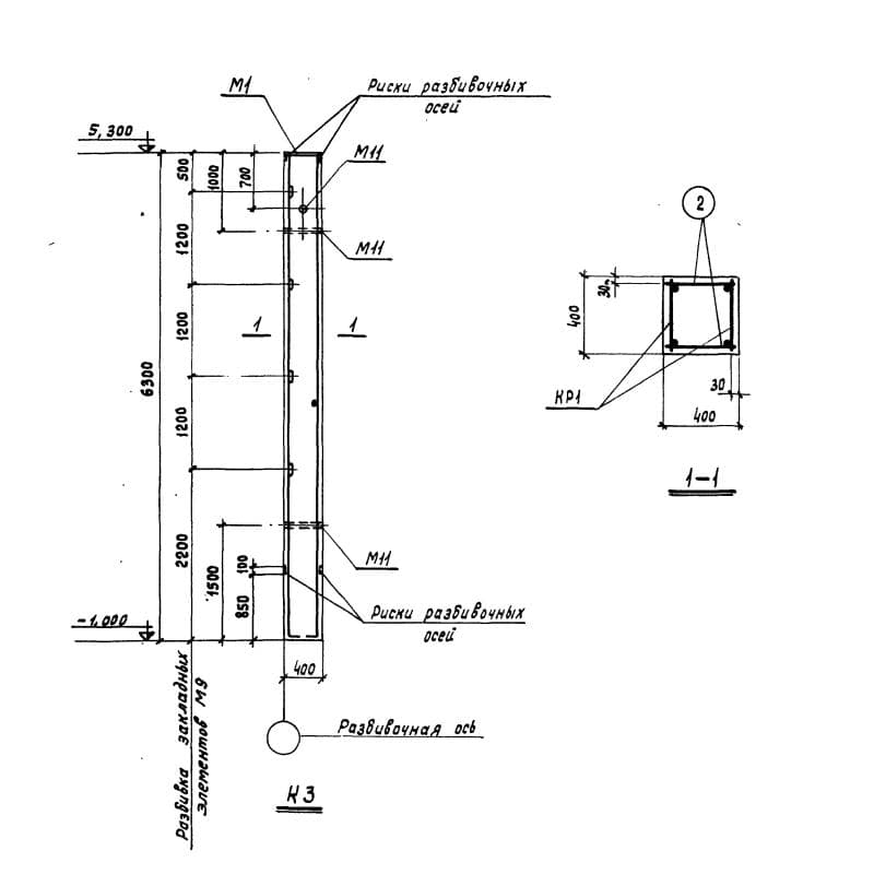
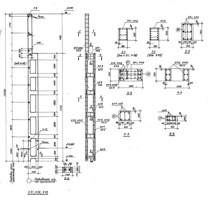
Каталог по сериям

Выбрана серия: Серия КЭ 01-55