Каталог по сериям
Выбрана серия: Серия 1.038.1-1
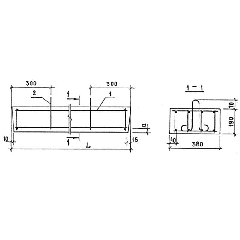
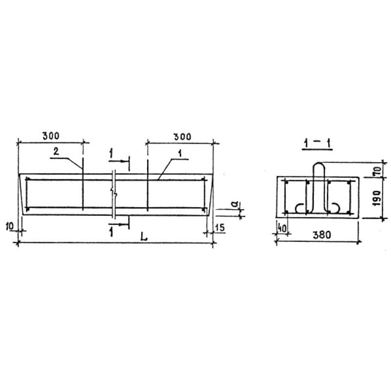
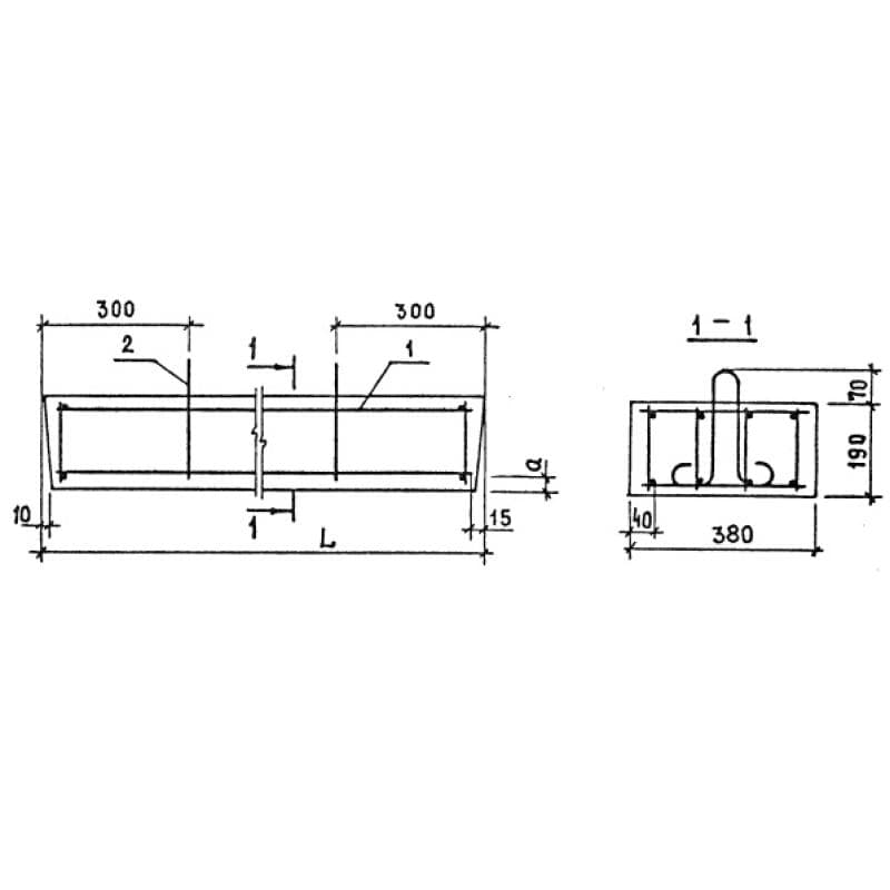
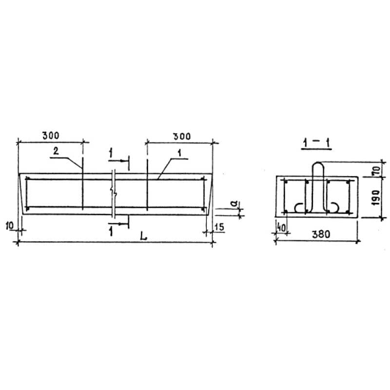
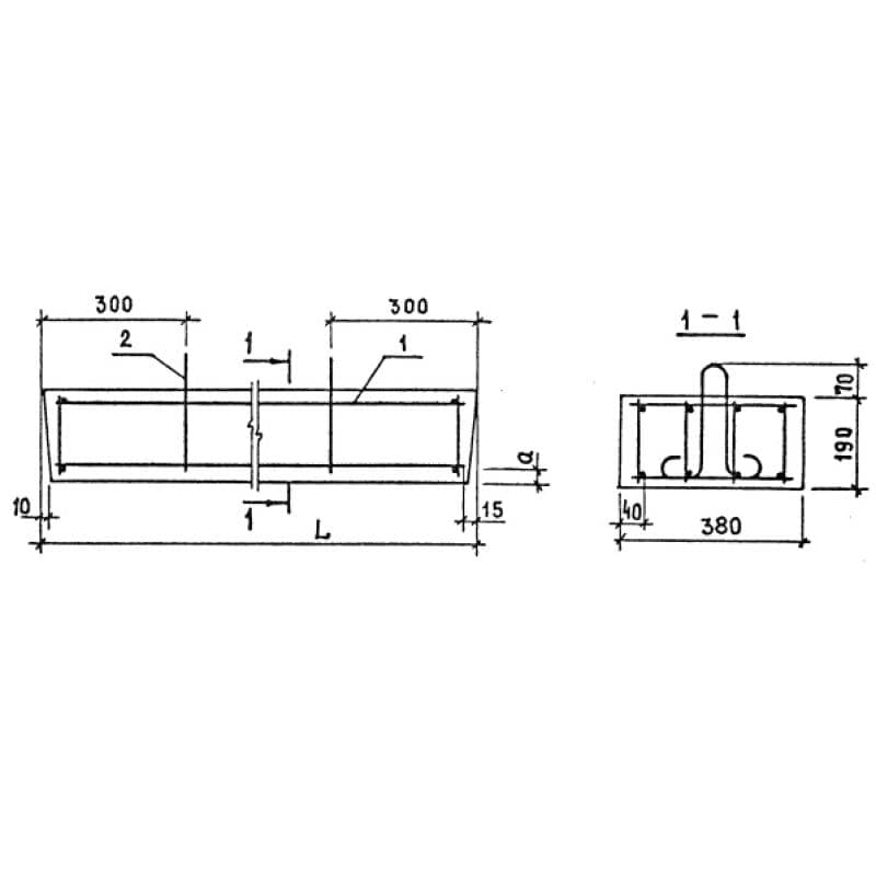
Серия 1.038.1-1

380x190x18108ПП 18-71 АтV
Цена по запросу

380x190x20708ПП 21-6
Цена по запросу

380x190x20708ПП 21-71
Цена по запросу

380x190x20708ПП 21-71 АтIVс
Цена по запросу

380x190x20708ПП 21-71 АтV
Цена по запросу

380x190x23308ПП 23-7
Цена по запросу

380x190x24608ПП 25-8
Цена по запросу

380x190x27208ПП 27-71
Цена по запросу

380x190x27208ПП 27-71 АтIVс
Цена по запросу

380x190x27208ПП 27-71 АтV
Цена по запросу

380x190x29808ПП 30-10
Цена по запросу

380x290x56808ПФ 57-7
Цена по запросу