Каталог по сериям
Выбрана серия: Серия 1.030.1-1/88
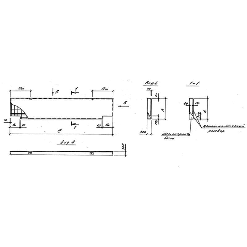
Серия 1.030.1-1/88

250x1480x6280ПСЦ 63-15-2,5-6
Цена по запросу

300x1180x6330ПСЦ 63,5-12-3 ш-5
Цена по запросу

300x1180x6330ПСЦ 63,5-12-3 ш-6
Цена по запросу

300x1180x6330ПСЦ 63,5-12-3-5
Цена по запросу

300x1180x6330ПСЦ 63,5-12-3-6
Цена по запросу

300x1480x6330ПСЦ 63,5-15-3 ш-5
Цена по запросу

300x1480x6330ПСЦ 63,5-15-3 ш-6
Цена по запросу

300x1480x6330ПСЦ 63,5-15-3-5
Цена по запросу

300x1480x6330ПСЦ 63,5-15-3-6
Цена по запросу

350x1180x6380ПСЦ 64-12-3,5-5
Цена по запросу

350x1180x6380ПСЦ 64-12-3,5-6
Цена по запросу

350x1480x6380ПСЦ 64-15-3,5-5
Цена по запросу