Каталог по сериям
Выбрана серия: Серия 3.503.1-94
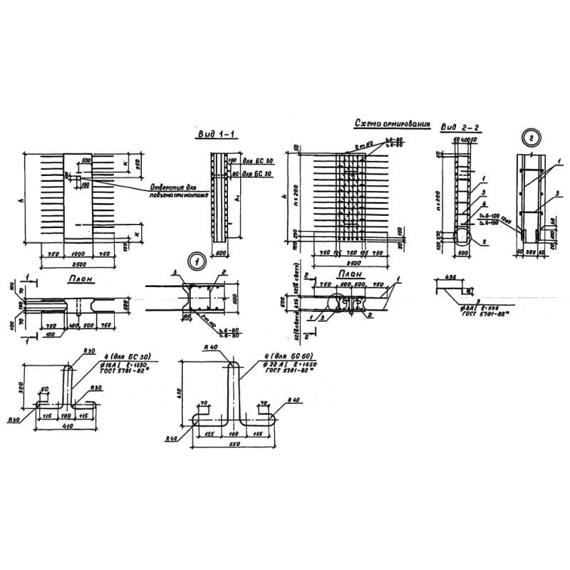
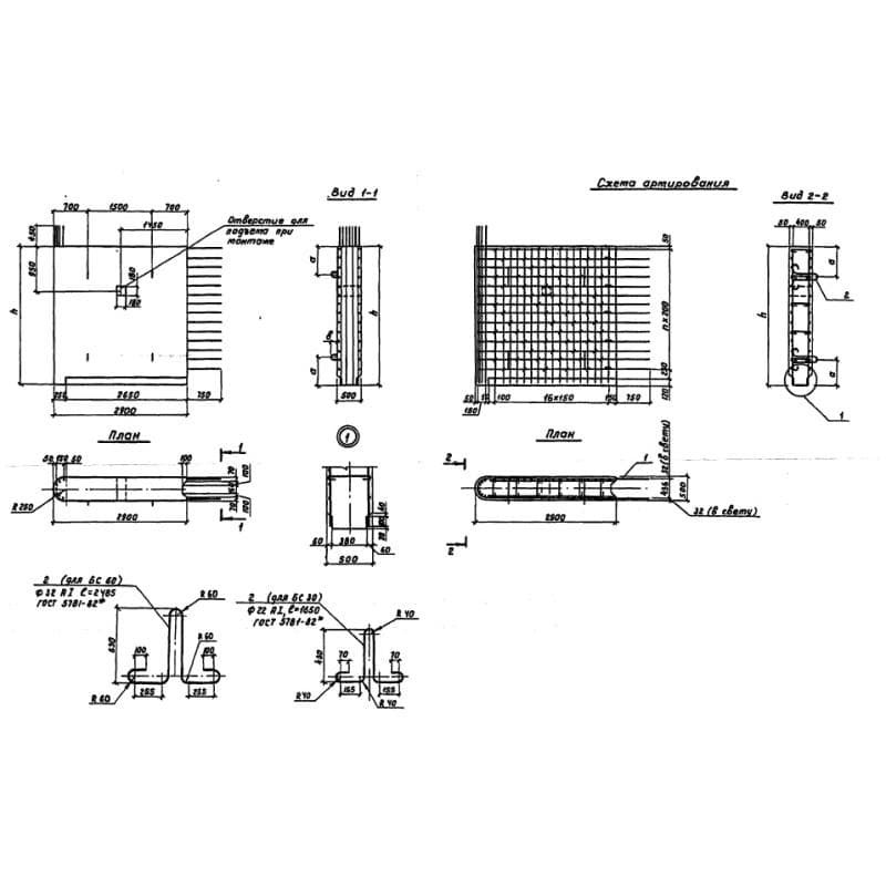
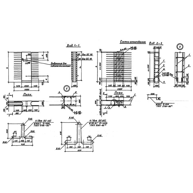
Серия 3.503.1-94

1250x500x6600БР 66-2 р
Цена по запросу

1200x500x7000БР 70-1 п
Цена по запросу

1000x500x3000БС 30-10-2
Цена по запросу

1200x500x3000БС 30-12-2
Цена по запросу

2000x500x3000БС 30-14-1 н
Цена по запросу

2200x500x3000БС 30-16-1 н
Цена по запросу

2900x500x3000БС 30-29-1 в
Цена по запросу

1000x500x6000БС 60-10-2
Цена по запросу

1200x500x6000БС 60-12-2
Цена по запросу

2600x500x6000БС 60-14-1 н
Цена по запросу

2800x500x6000БС 60-16-1 н
Цена по запросу

2900x500x6000БС 60-29-1 в
Цена по запросу