Каталог по сериям
Выбрана серия: ГОСТ 23899-79
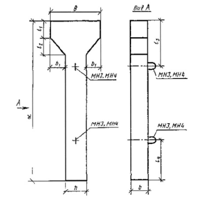
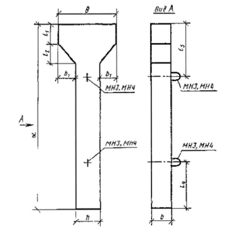
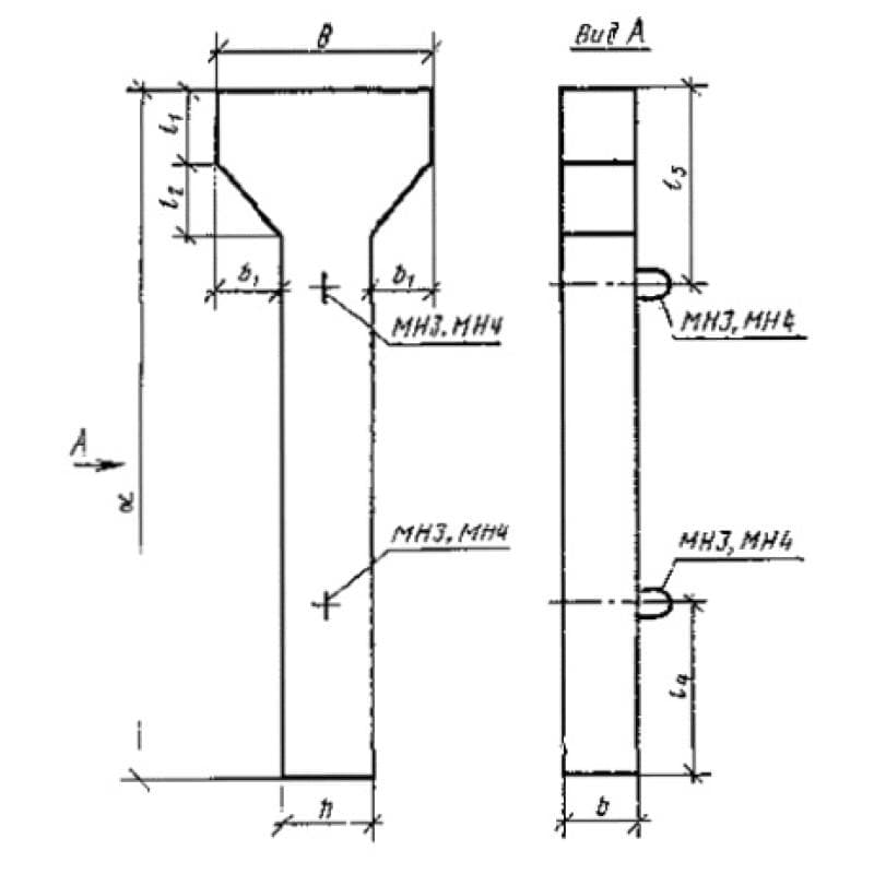
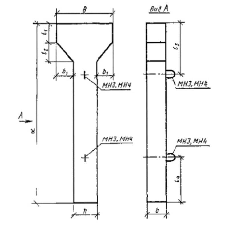
ГОСТ 23899-79

450x200x4750К 48-2,5-1
Цена по запросу

450x200x4750К 48-2,5-2
Цена по запросу

450x150x750К 8-2,5-1
Цена по запросу

450x150x750К 8-2,5-2
Цена по запросу

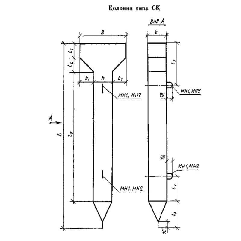
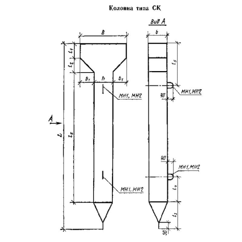
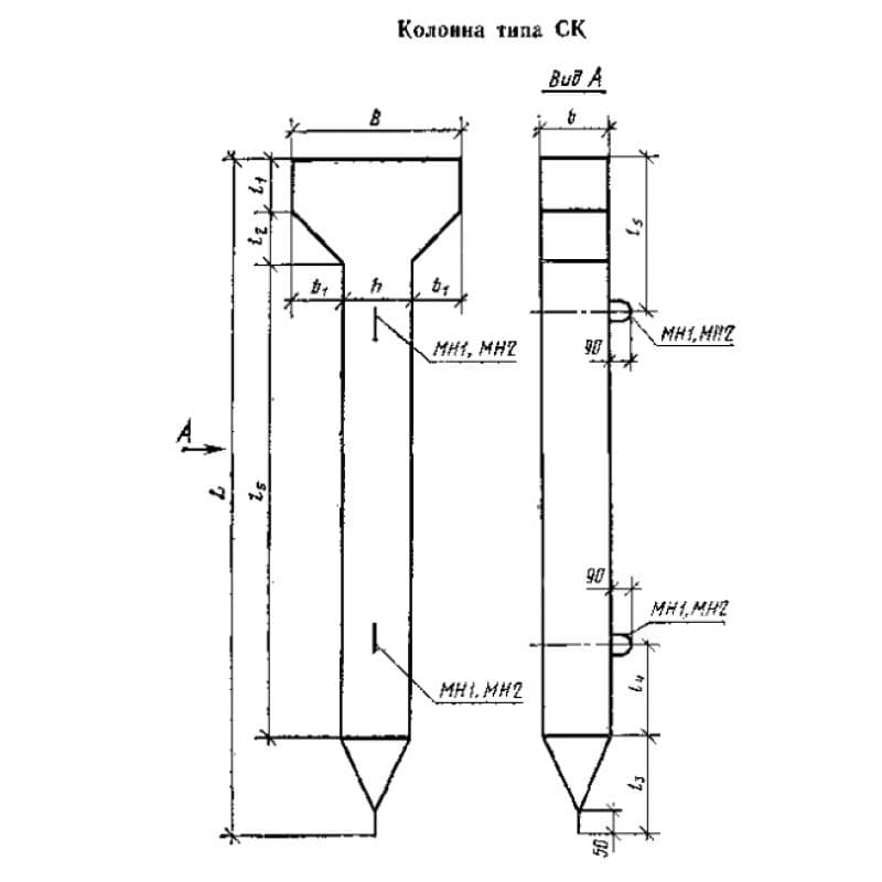
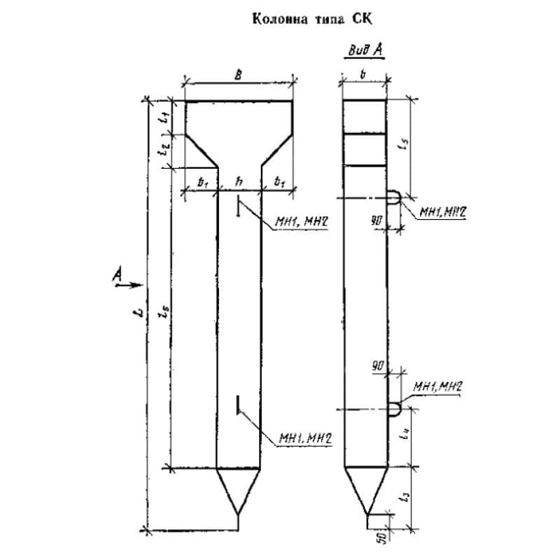
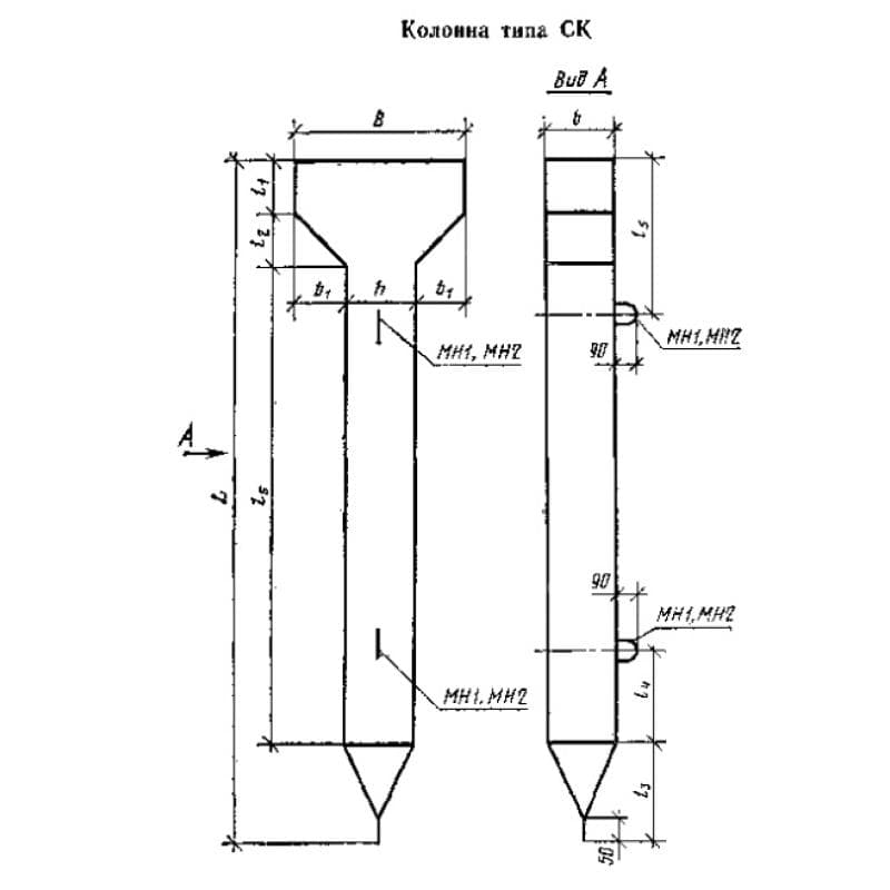
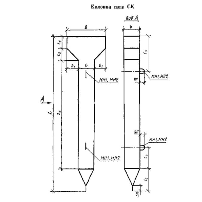
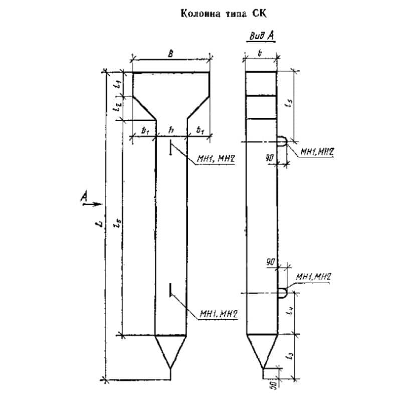
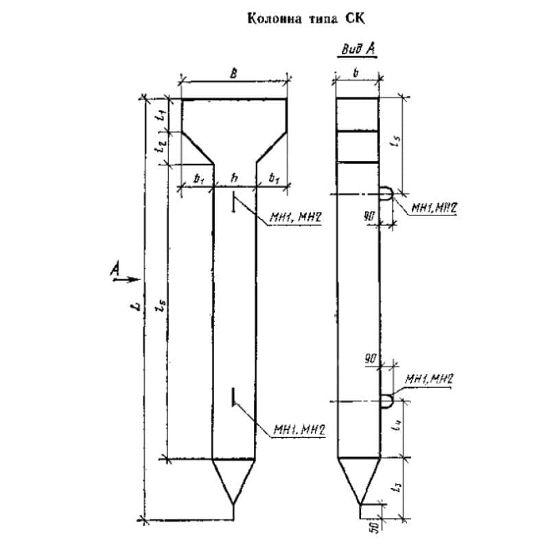
450x200x4000СК 40-2,5-1
Цена по запросу

450x200x4000СК 40-2,5-2
Цена по запросу

700x250x4000СК 40-3,7-1
Цена по запросу

700x250x4000СК 40-3,7-2
Цена по запросу

450x200x6000СК 60-2,5-1
Цена по запросу

450x200x6000СК 60-2,5-2
Цена по запросу

700x250x6000СК 60-3,7-1
Цена по запросу

700x250x6000СК 60-3,7-2
Цена по запросу