Каталог по сериям
Выбрана серия: Серия 1.030.1-1/88
Серия 1.030.1-1/88

400x1485x5980ПС 60-15-4,0 л-1
Цена по запросу

400x1480x5980ПС 60-15-4,0-4 л
Цена по запросу

400x1480x5980ПС 60-15-4,0-6 л
Цена по запросу

200x1780x5980ПС 60-18-2,0-2 л
Цена по запросу

200x1780x5980ПС 60-18-2,0-2 я
Цена по запросу

200x1780x5980ПС 60-18-2,0-4 л
Цена по запросу

200x1780x5980ПС 60-18-2,0-4 я
Цена по запросу

200x1780x5980ПС 60-18-2,0-5 л
Цена по запросу

200x1780x5980ПС 60-18-2,0-5 я
Цена по запросу

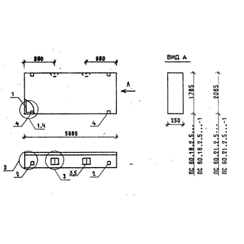
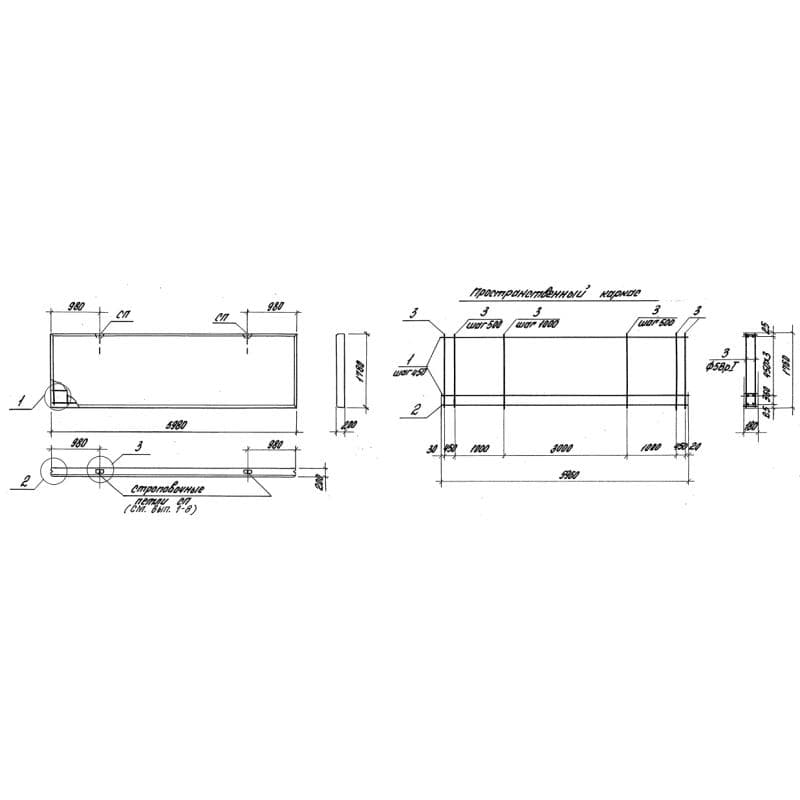
250x1785x5980ПС 60-18-2,5 л
Цена по запросу

250x1785x5980ПС 60-18-2,5 л-1
Цена по запросу

250x1780x5980ПС 60-18-2,5-2 л
Цена по запросу