Каталог по сериям

Выбрана серия: Серия 1.432.1-23с

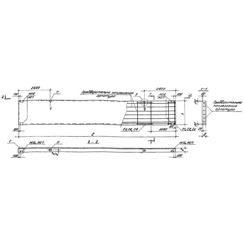
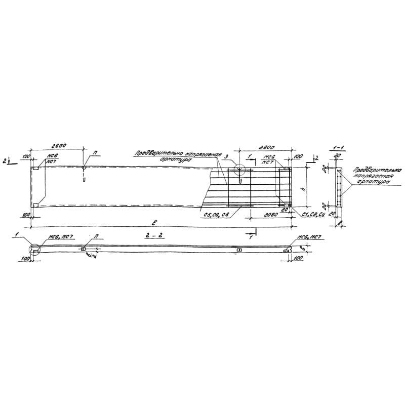
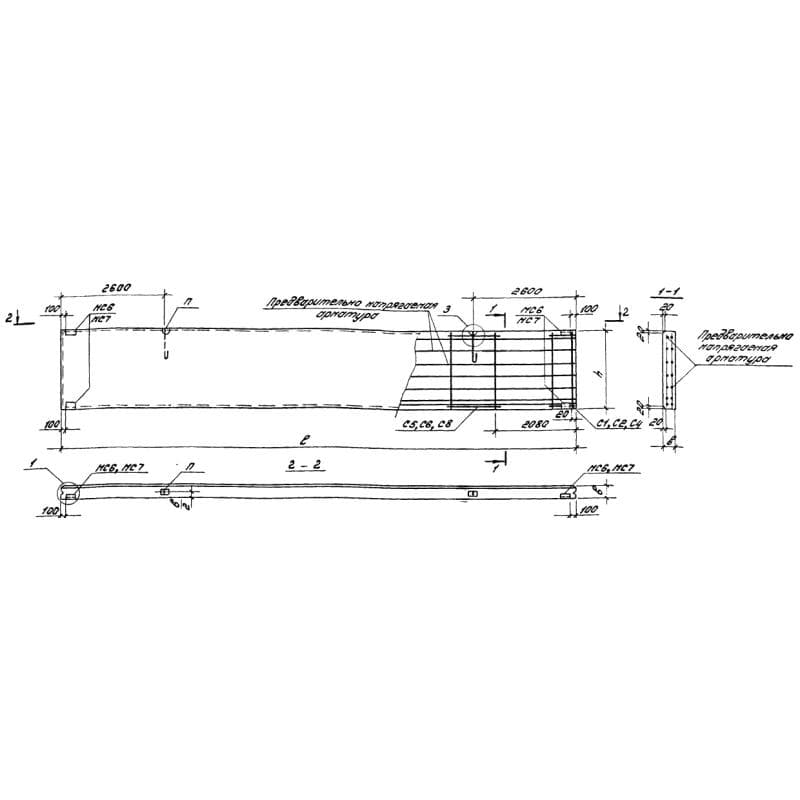
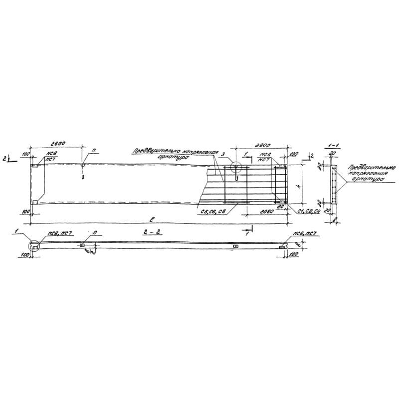
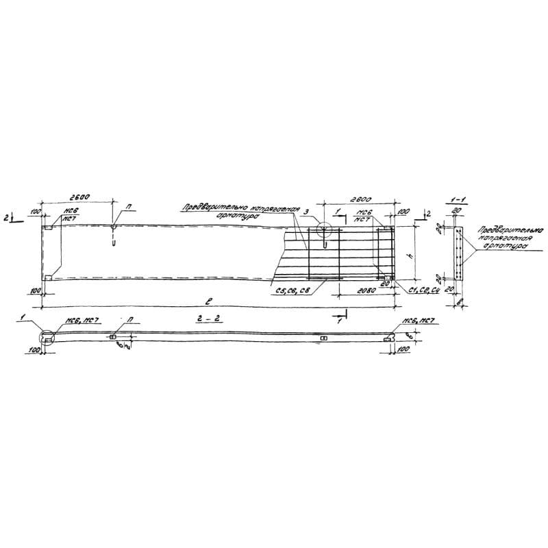
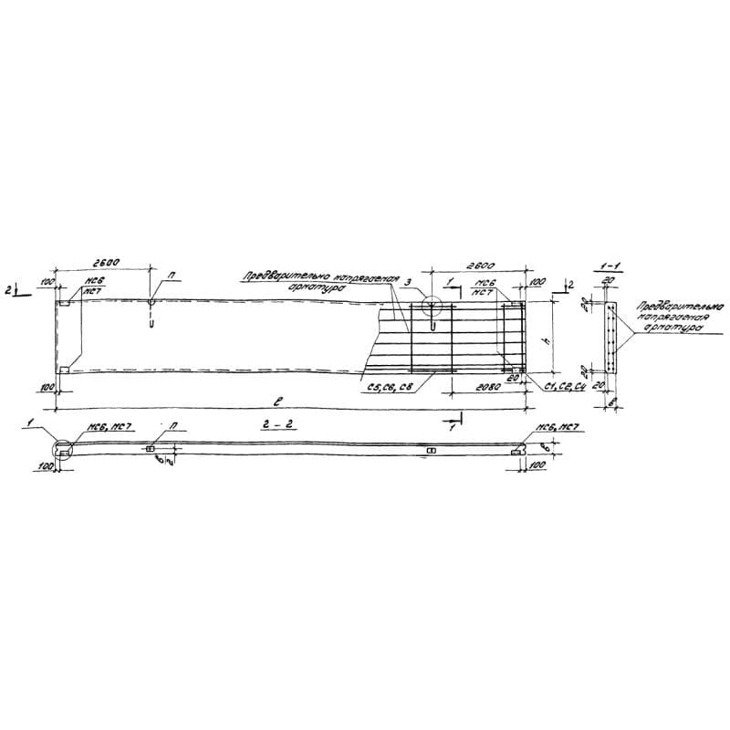
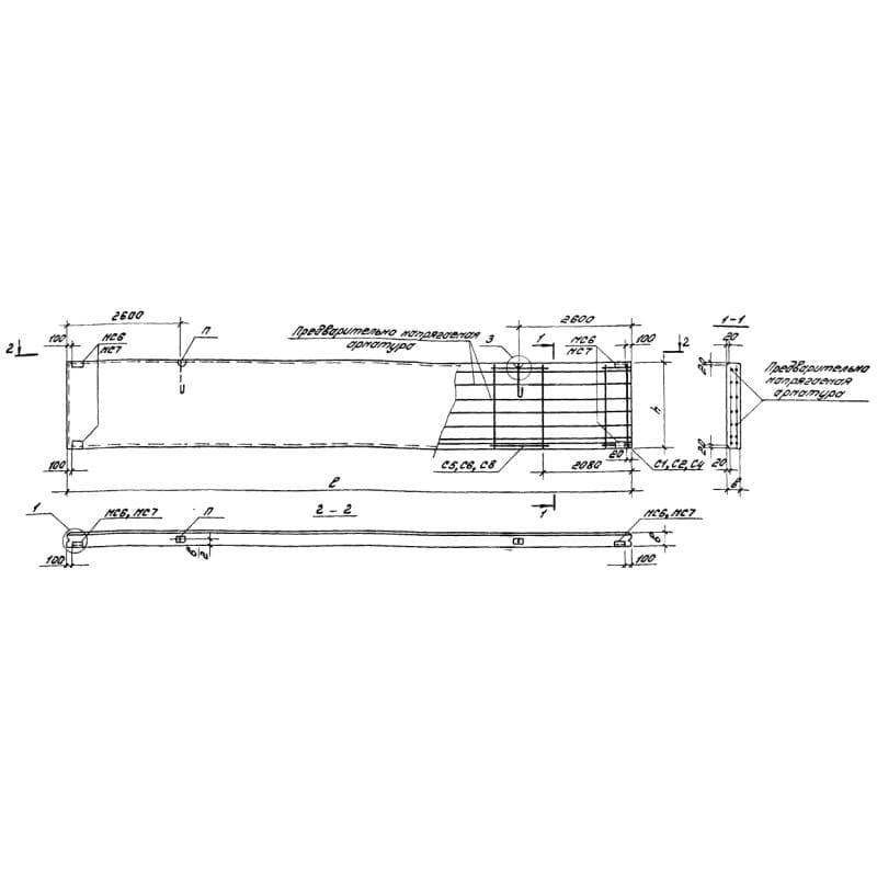
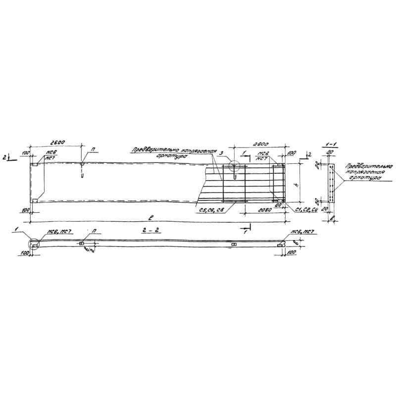
Серия 1.432.1-23с