Каталог по сериям
Выбрана серия: Серия 1.143-4
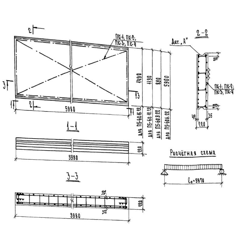
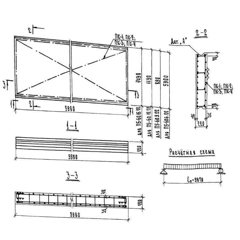
Серия 1.143-4

1190x220x5980П 5-60-12-22
Цена по запросу

1490x220x5980П 5-60-15-22
Цена по запросу

590x220x5980П 5-60-6-22
Цена по запросу

890x220x5980П 5-60-9-22
Цена по запросу

1190x220x2980П 6-30-12-22
Цена по запросу

1490x220x2980П 6-30-15-22
Цена по запросу

590x220x2980П 6-30-6-22
Цена по запросу

890x220x2980П 6-30-9-22
Цена по запросу

1190x220x3280П 6-33-12-22
Цена по запросу

1490x220x3280П 6-33-15-22
Цена по запросу

590x220x3280П 6-33-6-22
Цена по запросу

890x220x3280П 6-33-9-22
Цена по запросу