Каталог по сериям
Выбрана серия: Серия 1.138-10
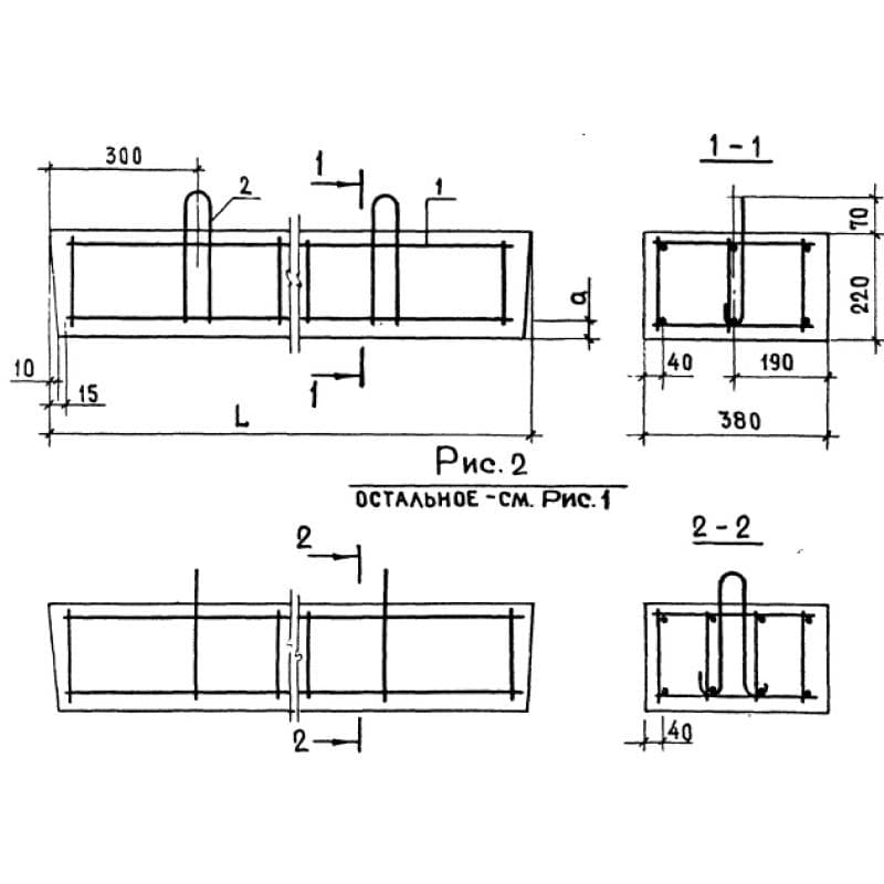
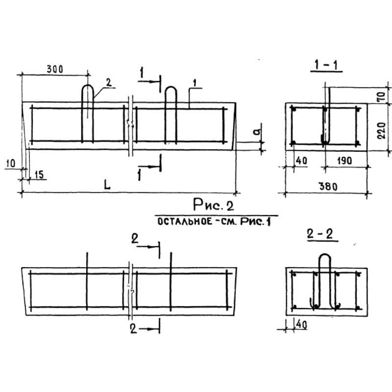
Серия 1.138-10

380x190x18102ПР 18-38-19-72 АVт
Цена по запросу

380x220x18102ПР 18-38-22-72 АIVт
Цена по запросу

380x220x18102ПР 18-38-22-72 АVт
Цена по запросу

510x190x18102ПР 18-51-19-73 АIVт
Цена по запросу

510x190x18102ПР 18-51-19-73 АVт
Цена по запросу

510x220x18102ПР 18-51-22-73 АIVт
Цена по запросу

510x220x18102ПР 18-51-22-73 АVт
Цена по запросу

380x190x20702ПР 20-38-19-72 АIVт
Цена по запросу

380x190x20702ПР 20-38-19-72 АVт
Цена по запросу

380x220x20702ПР 20-38-22-72 АIVт
Цена по запросу

380x220x20702ПР 20-38-22-72 АVт
Цена по запросу

510x190x20702ПР 20-51-19-73 АIVт
Цена по запросу