Каталог по сериям
Выбрана серия: Серия 1.138-10
Серия 1.138-10

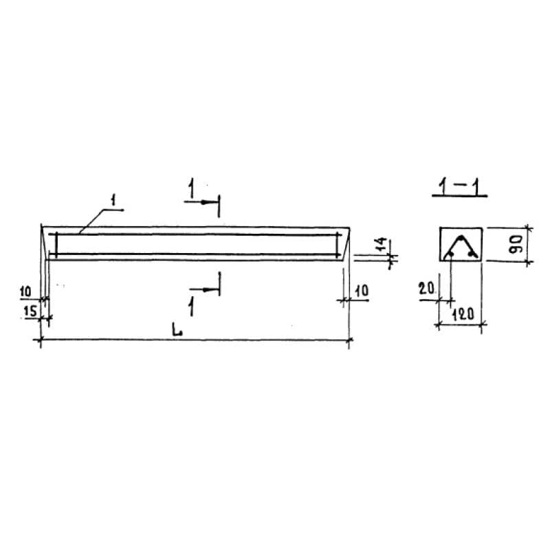
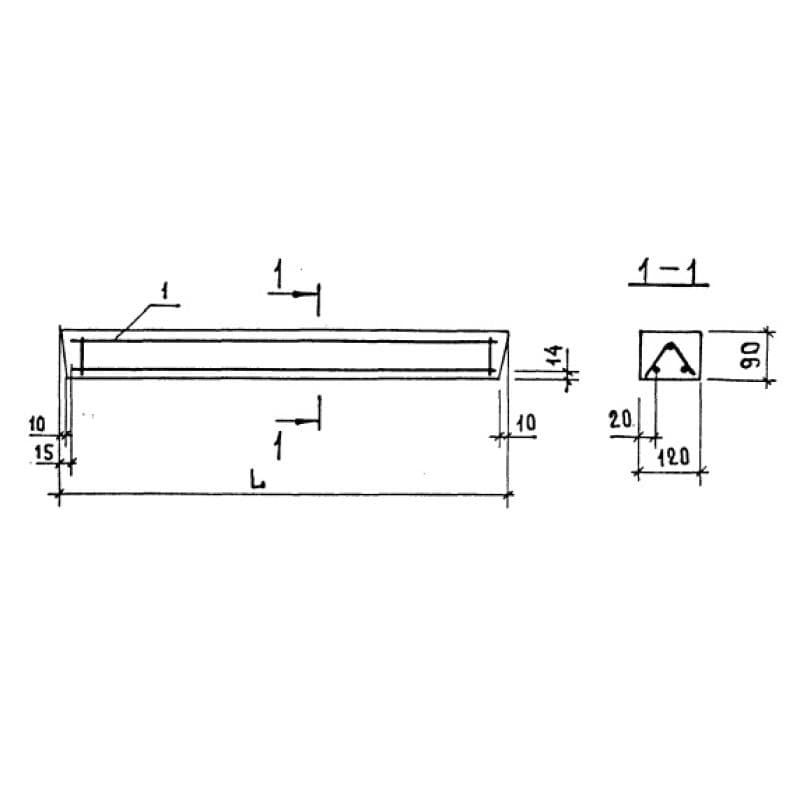
120x90x10301ПР 1-10-12-9
Цена по запросу

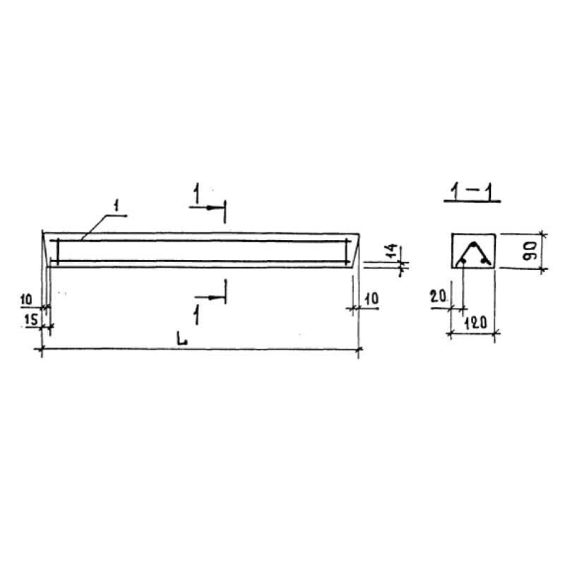
120x90x12901ПР 1-12-12-9
Цена по запросу

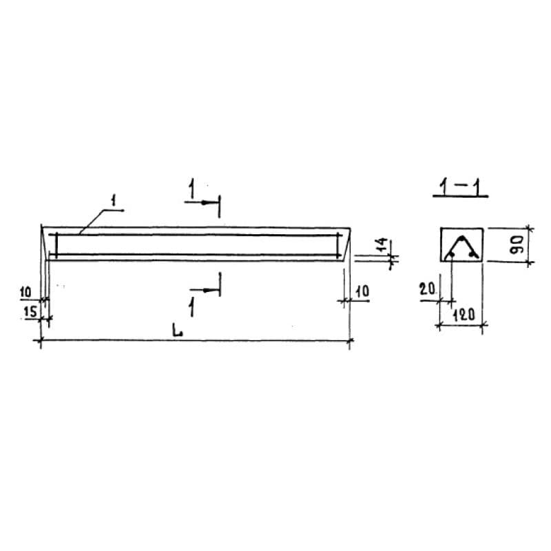
120x65x15501ПР 1-15-12-6
Цена по запросу

120x90x15501ПР 1-15-12-9
Цена по запросу

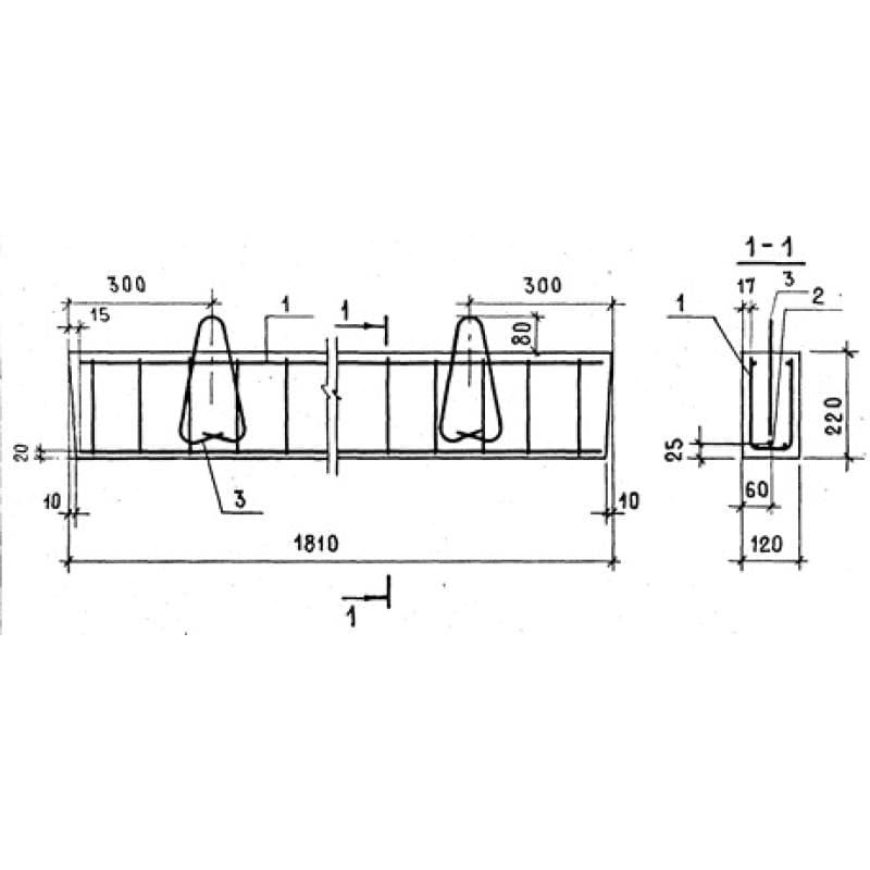
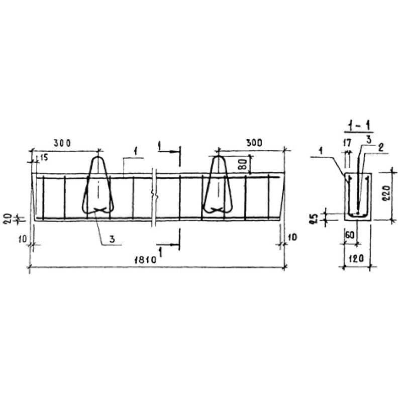
120x190x18101ПР 18-12-19-38 АIVт
Цена по запросу

120x190x18101ПР 18-12-19-38 АVт
Цена по запросу

120x220x18101ПР 18-12-22-38 АIVт
Цена по запросу

120x220x18101ПР 18-12-22-38 АVт
Цена по запросу

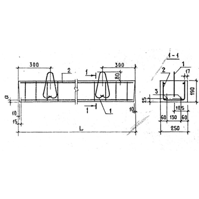
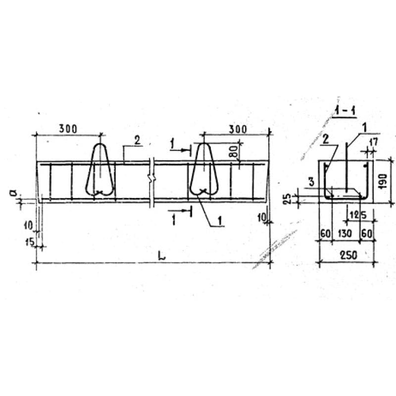
250x190x18101ПР 18-25-19-28 АIVт
Цена по запросу

250x190x18101ПР 18-25-19-28 АVт
Цена по запросу

120x90x16801ПР 2-16-12-9
Цена по запросу

250x190x20701ПР 20-25-19-28 АIVт
Цена по запросу