Каталог по сериям
Выбрана серия: Серия
Серия

1185x300x11970ПСЛ АIV-1-2-1,2-12 (1.432-10)
Цена по запросу

400x400x96002КСД 4-48-3,2
Цена по запросу

1190x220x4000БПК 40-12
Цена по запросу

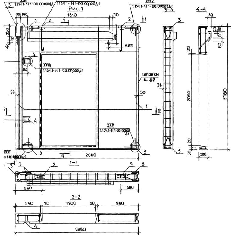
250x1130x980СБВ 10-11-8 я-10
Цена по запросу

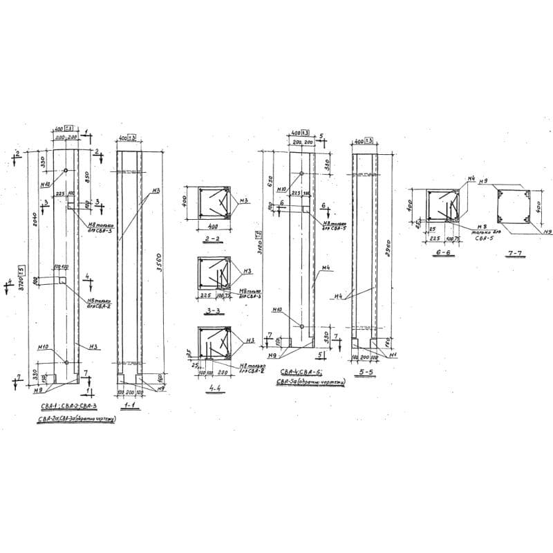
400x400x3720СВА 1 (1.435-3)
Цена по запросу

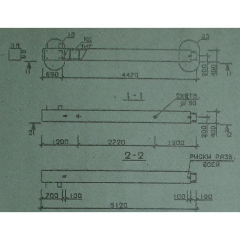
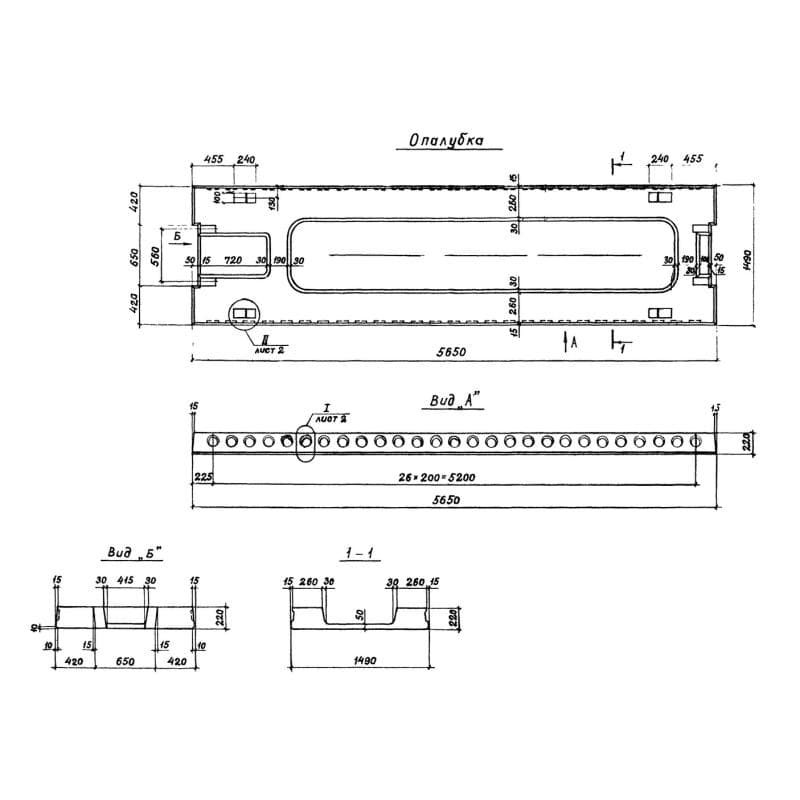
1490x220x5650ПРС 56-15-11 АтV
Цена по запросу

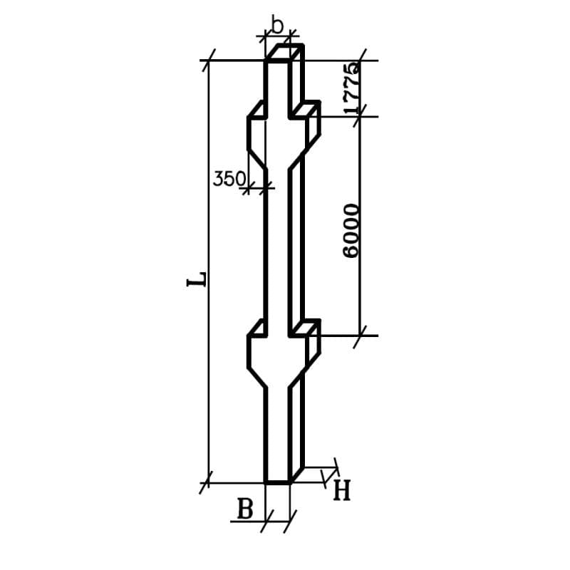
400x400x51205КВ 60-51-5 с
Цена по запросу

300x2100x11002ПСЦ 11-21-3,0 п пв (1.090.1-3пв)
Цена по запросу

650x800x10980Б 30-2 АIIIв
Цена по запросу

600x400x13625К 30а-4-2
Цена по запросу

200x2680x2780СБВ 27-28-2 т-43115
Цена по запросу

1190x220x5650ПК 56-12-6 АтIVс б
Цена по запросу