Каталог по сериям
Выбрана серия: Серия
Серия

250x220x3280ПР 33-2,5-2 пв
Цена по запросу

330x1275x149601БСД 15-2-1-6 к7
Цена по запросу

900x400x156009К 144-14
Цена по запросу

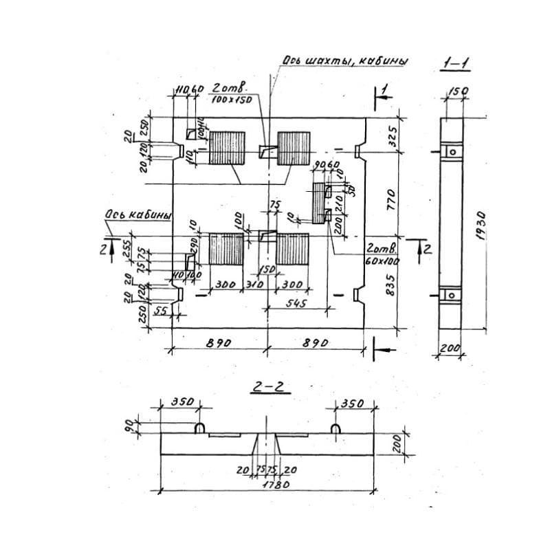
600x900x138004К 126-12
Цена по запросу

400x1920x29903НЧ 30-19-40-200 т
Цена по запросу

400x400x116503КН 33-34/44
Цена по запросу

400x500x112008КФ 112-4
Цена по запросу

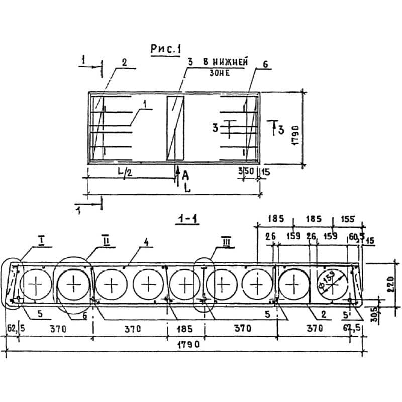
1790x220x5380ПК 54-18-6 АтVт
Цена по запросу

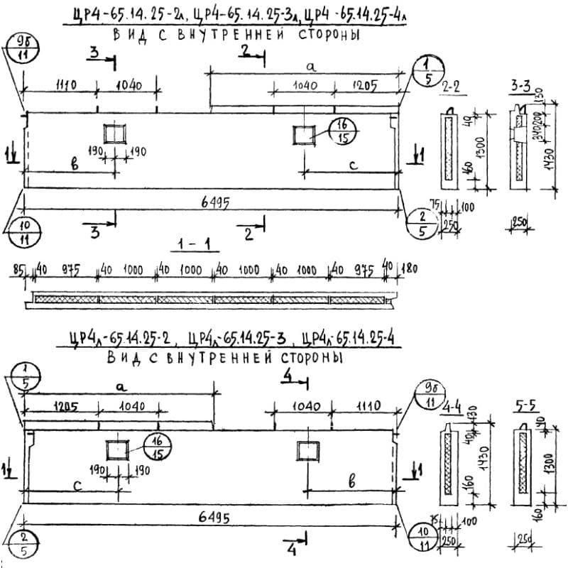
250x1430x6495ЦР 4л-65-14-25-3 (1.117-9)
Цена по запросу

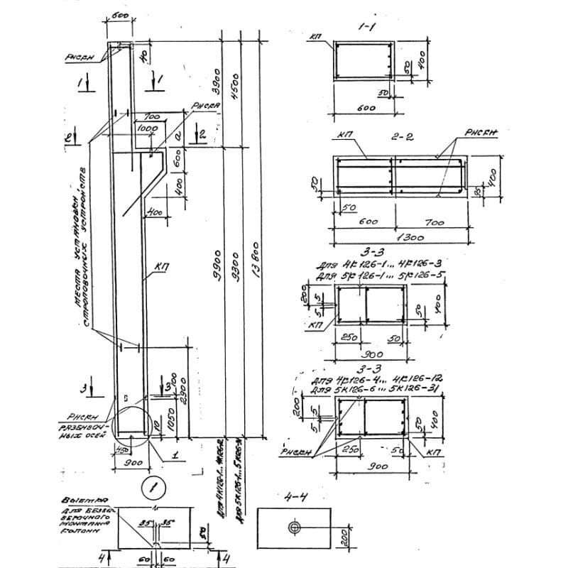
350x350x11000СН 11-35 (1.011-1)
Цена по запросу

1780x200x1930ПЛ 18-20-40,1 (1.189.1-11)
Цена по запросу

220x890x8960Б 9-7 АIV*
Цена по запросу