Каталог по сериям
Выбрана серия: Серия
Серия

700x500x169006КД 156-11,4
Цена по запросу

350x80x1200ПЛ 1
Цена по запросу

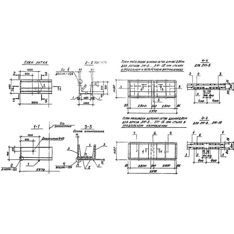
1480x700x5970Л 11-15 (3.006-2)
Цена по запросу

350x2100x17002ПСЦ 17-21-3,5 п пв (1.090.1-3пв)
Цена по запросу

180x2260x3900ПС 1 а (ВТИ-КЖ 01-83)
Цена по запросу

4500x1500x3900Ф 12-2-7-15 (1.412.1-6)
Цена по запросу

1190x220x2260ПК 23-12-3 ВрIт с9а (1.141.1-29с)
Цена по запросу

1190x220x7180ПК 72-12-6 АтV
Цена по запросу

550x800x11200Р 1-22 АIV-3 с
Цена по запросу

3900x4200x3300Ф 10-2-7-42 (1.412.1-6)
Цена по запросу

500x500x99003К 90-7 м3
Цена по запросу

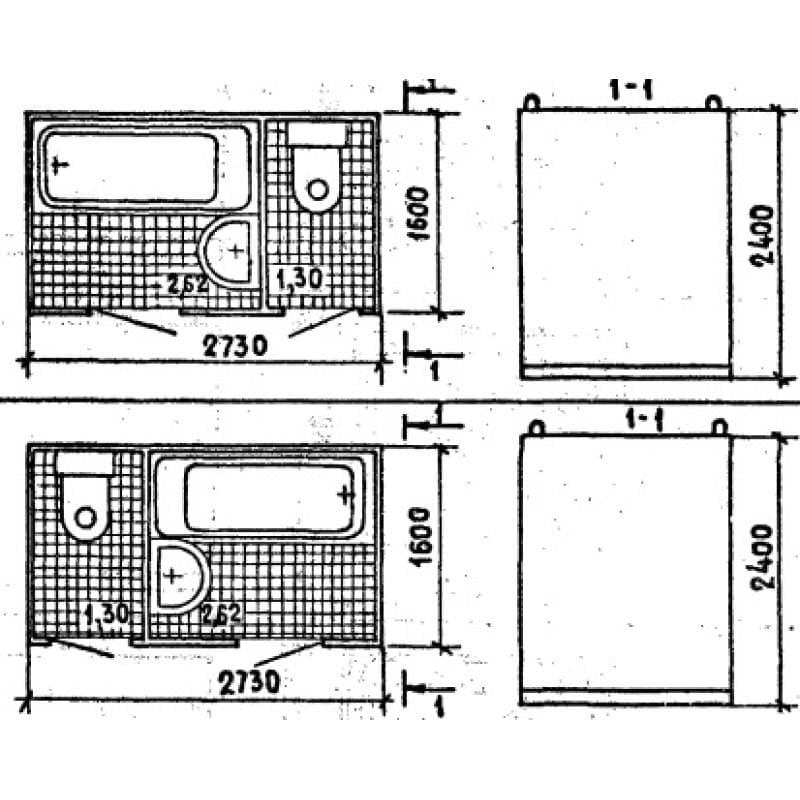
1600x2400x27301СК 24 прт-02 в (1.188-5)
Цена по запросу