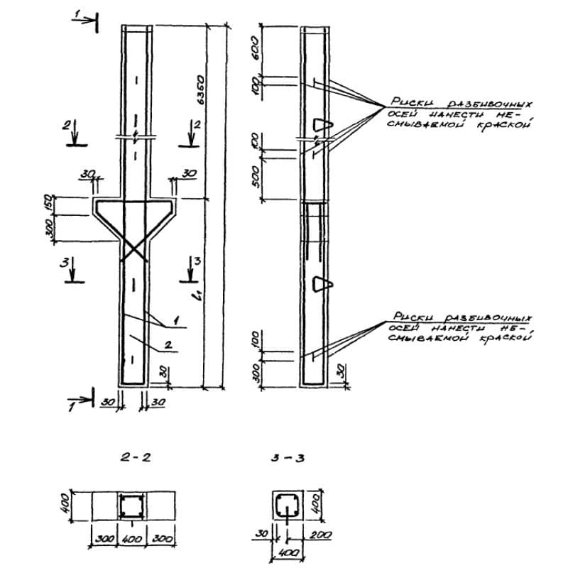
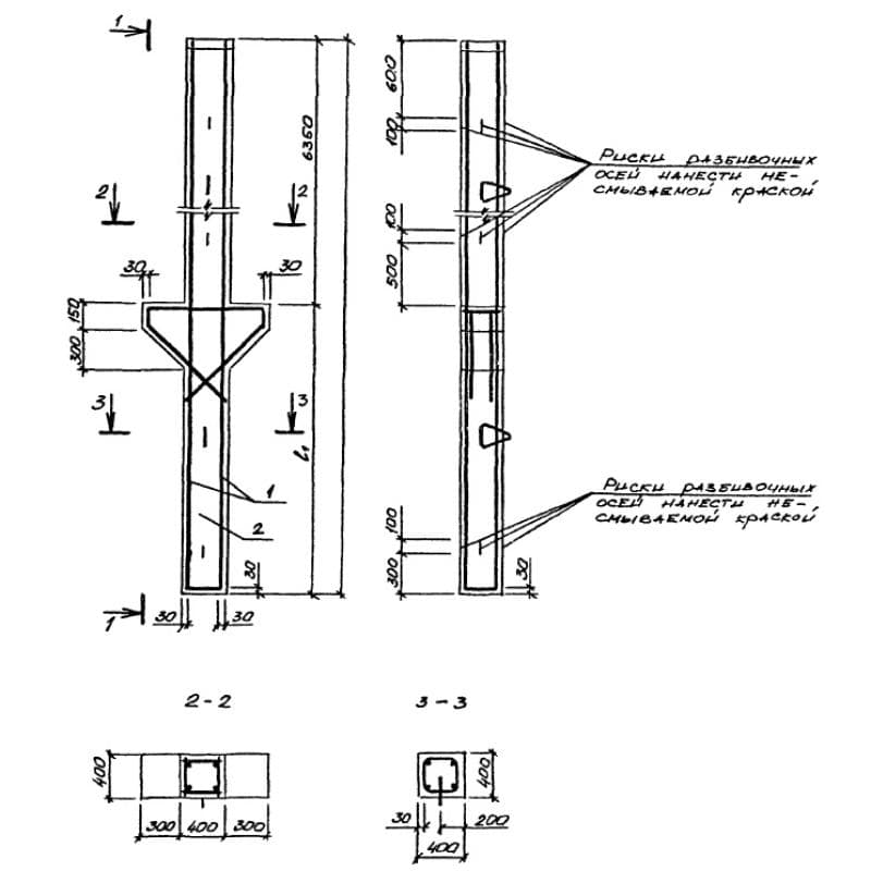
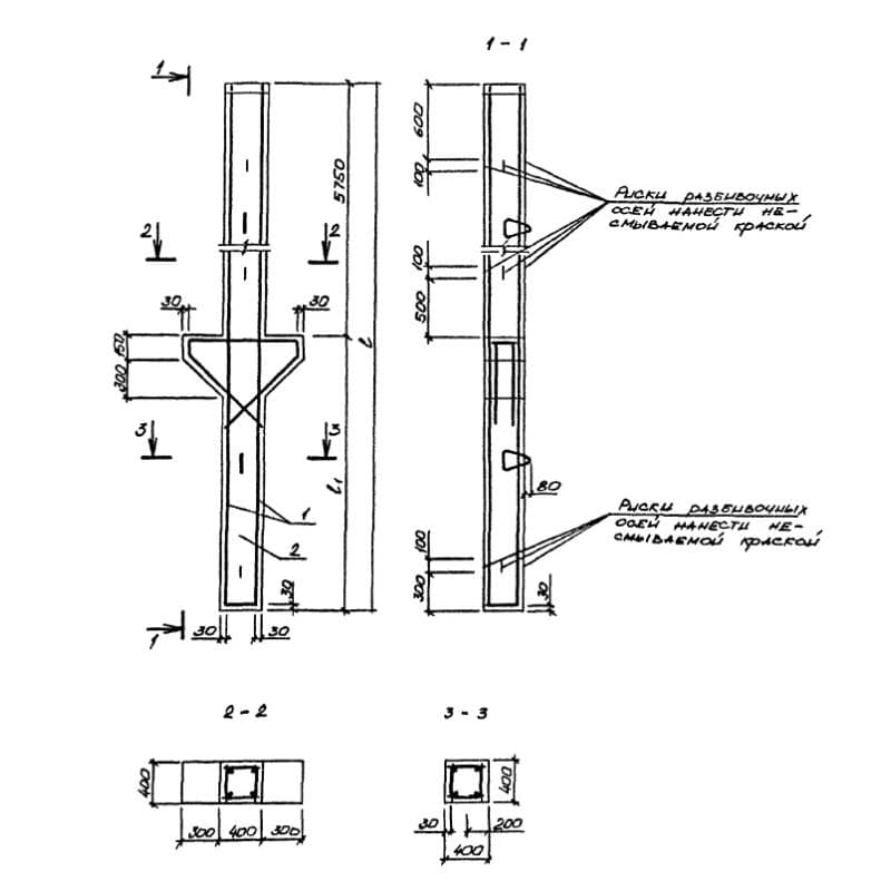
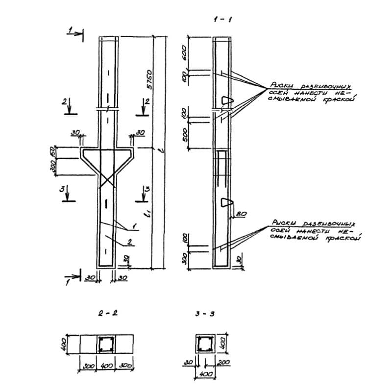
Каталог по сериям

Выбрана серия: Серия 1.411.1-10.93