Каталог по сериям
Выбрана серия: Серия 1.038.1-1
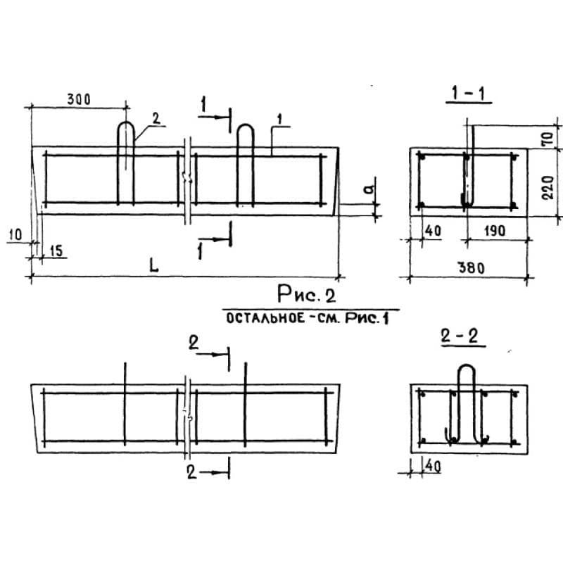
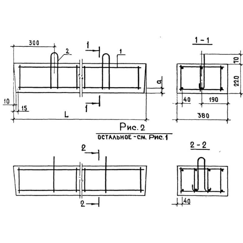
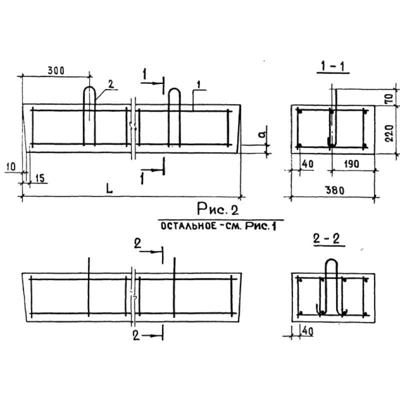
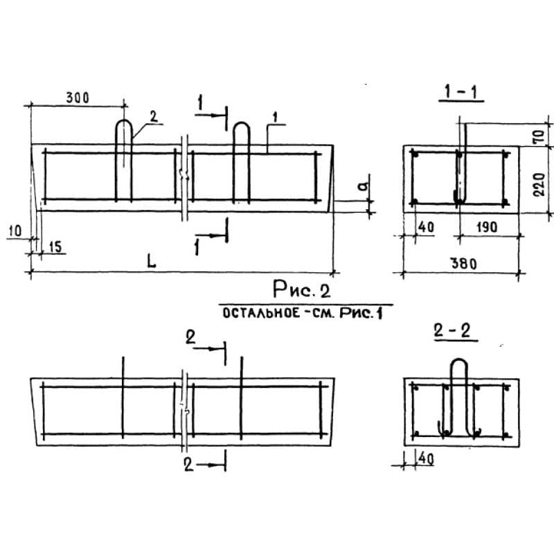
Серия 1.038.1-1

380x220x18103ПП 18-71 АтIVс
Цена по запросу

380x220x18103ПП 18-71 АтV
Цена по запросу

380x220x20703ПП 21-71
Цена по запросу

380x220x20703ПП 21-71 АтIVс
Цена по запросу

380x220x20703ПП 21-71 АтV
Цена по запросу

380x220x27203ПП 27-71
Цена по запросу

380x220x27203ПП 27-71 АтIVс
Цена по запросу

380x220x27203ПП 27-71 АтV
Цена по запросу

380x220x29803ПП 30-10
Цена по запросу

250x290x40203ПФ 40-10
Цена по запросу

250x290x41503ПФ 42-5
Цена по запросу

250x290x42803ПФ 43-10
Цена по запросу