Каталог по сериям
Выбрана серия: Серия 1.411.1-10.93
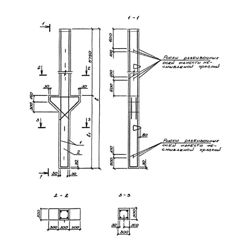
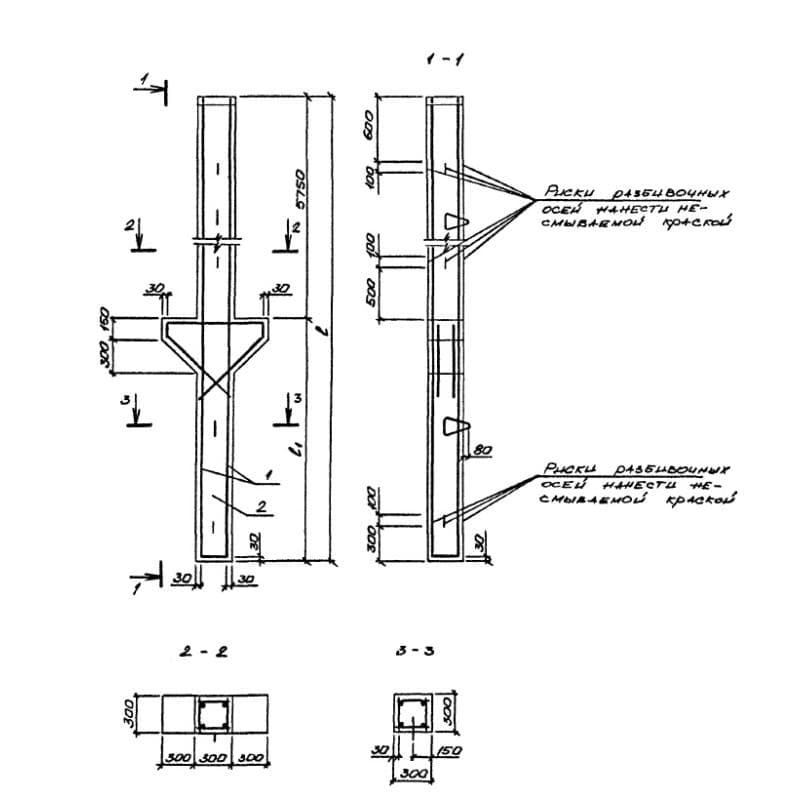
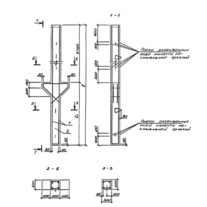
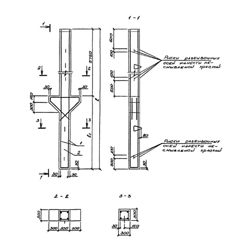
Серия 1.411.1-10.93

900x300x90001СД 90-48-30-3 (1.411.1-10.93)
Цена по запросу

900x300x90001СД 90-48-30-4 (1.411.1-10.93)
Цена по запросу

1000x400x90001СД 90-48-40-1 (1.411.1-10.93)
Цена по запросу

1000x400x90001СД 90-48-40-2 (1.411.1-10.93)
Цена по запросу

1000x400x90001СД 90-48-40-3 (1.411.1-10.93)
Цена по запросу

1000x400x90001СД 90-48-40-4 (1.411.1-10.93)
Цена по запросу

900x300x90001СД 90-54-30-1 (1.411.1-10.93)
Цена по запросу

900x300x90001СД 90-54-30-2 (1.411.1-10.93)
Цена по запросу

900x300x90001СД 90-54-30-3 (1.411.1-10.93)
Цена по запросу

900x300x90001СД 90-54-30-4 (1.411.1-10.93)
Цена по запросу

900x300x90001СД 90-54-30-5 (1.411.1-10.93)
Цена по запросу

1000x400x90001СД 90-54-40-1 (1.411.1-10.93)
Цена по запросу