Каталог по сериям
Выбрана серия: Серия 1.424.1-12
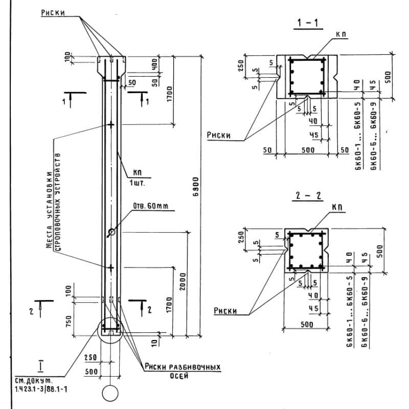
Серия 1.424.1-12

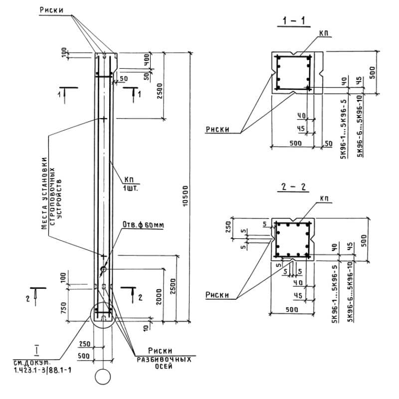
500x500x105005К 96-7 м4
Цена по запросу

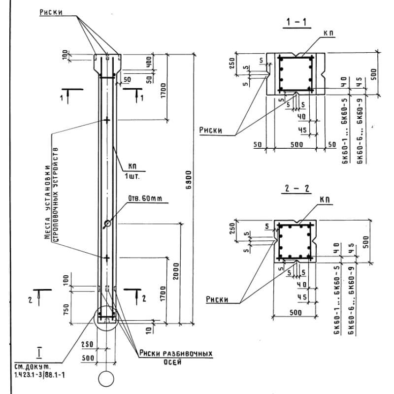
500x500x69006К 60-1 м2
Цена по запросу

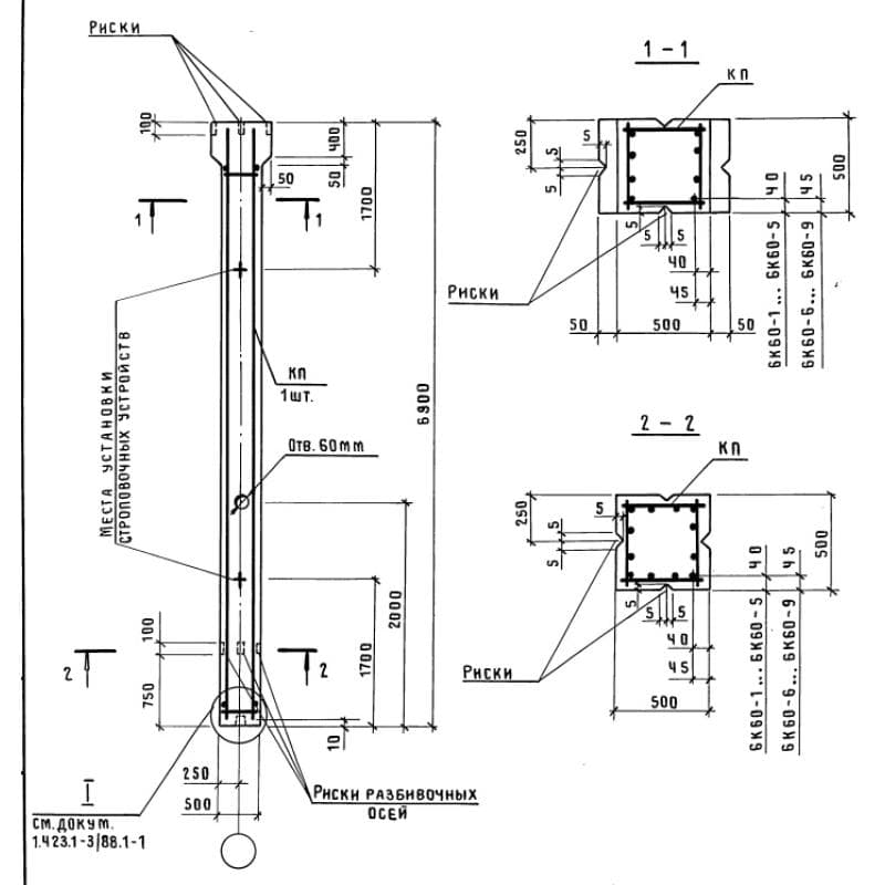
500x500x69006К 60-2 м2
Цена по запросу

500x500x69006К 60-2 м3
Цена по запросу

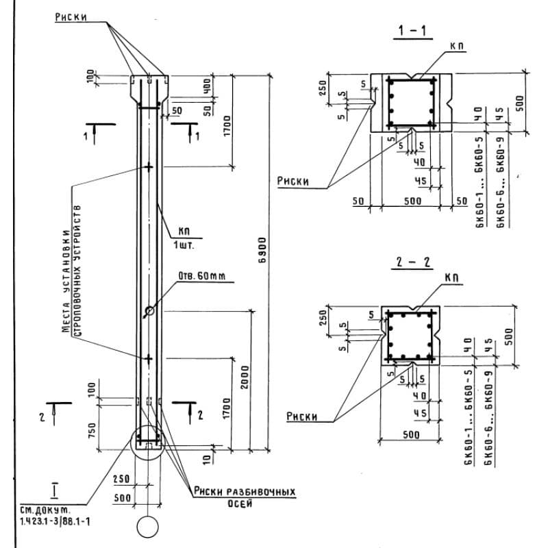
500x500x69006К 60-3 м2
Цена по запросу

500x500x69006К 60-3 м3
Цена по запросу

500x500x69006К 60-4 м2
Цена по запросу

500x500x69006К 60-4 м3
Цена по запросу

500x500x69006К 60-4 м3 с
Цена по запросу

500x500x69006К 60-5 м2
Цена по запросу

500x500x69006К 60-5 м3 с
Цена по запросу

500x500x69006К 60-6 м2
Цена по запросу