Каталог по сериям
Выбрана серия: Серия
Серия

80x585x5540ПГ 55-6-1 т
Цена по запросу

350x1185x27501ПС 27,5-12-3,5-6 л-1
Цена по запросу

2980x1000x179601КЖС 18г-2 АIIIв
Цена по запросу

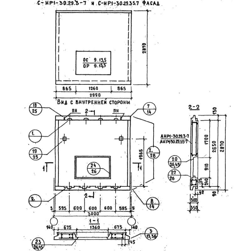
300x2870x2990СНР 1-30-29-3-7
Цена по запросу

160x2035x5700ПВЦ 57-20-13-1 т сп9
Цена по запросу

2500x1420x2480250ФК 1
Цена по запросу

935x400x50501П 6-1 АIVт
Цена по запросу

400x400x20000С 200-40 св вп
Цена по запросу

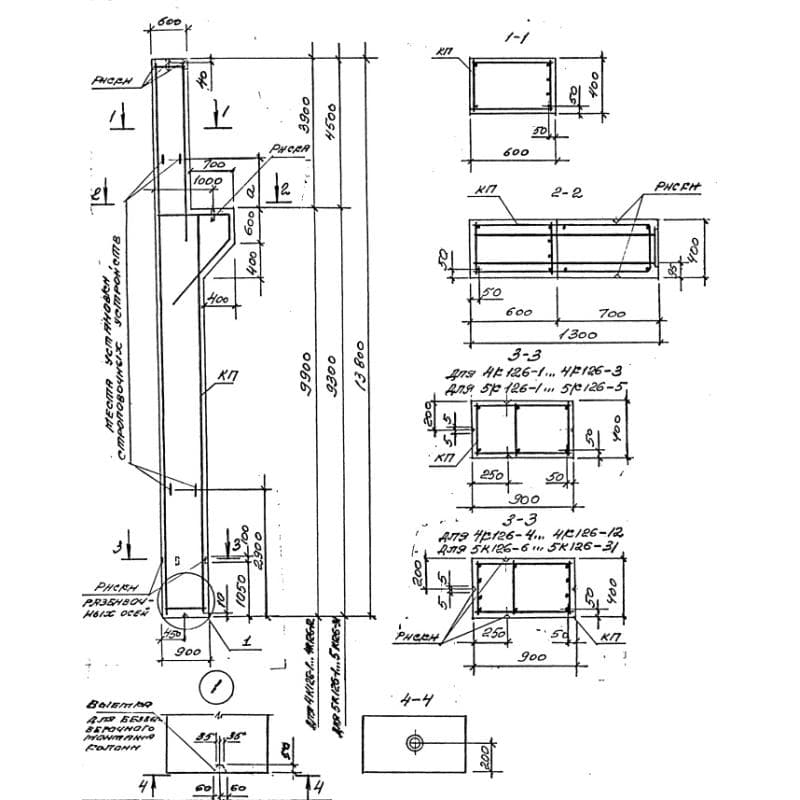
600x900x138004К 126-5
Цена по запросу

400x400x26905КН 20-27-4-2 спн (1.020.1-6сп)
Цена по запросу

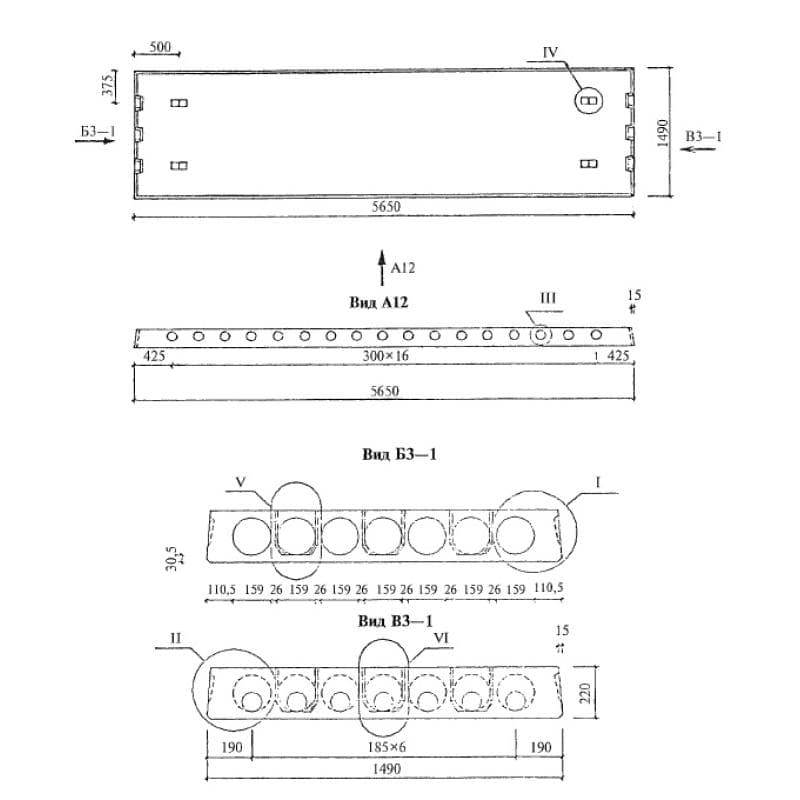
1490x220x56501ПК 56-15-12 РН 0-АIV
Цена по запросу

1190x220x5650ПК 56-12-11 АIIIвл-1
Цена по запросу