Каталог по сериям
Выбрана серия: Серия
Серия

1213x1213x5160БТСР 80-50-2
Цена по запросу

1490x300x59702ПГ 6-3 АтVскт н
Цена по запросу

2000x500x4000ЩО 9-450-1 (3.006-1)
Цена по запросу

250x3240x239402ФС 24-6/7 АтпV н
Цена по запросу

400x400x96002КС 4-48-3
Цена по запросу

300x300x50502БФ 6-13 АIV
Цена по запросу

400x400x54001КСО 54-2-32
Цена по запросу

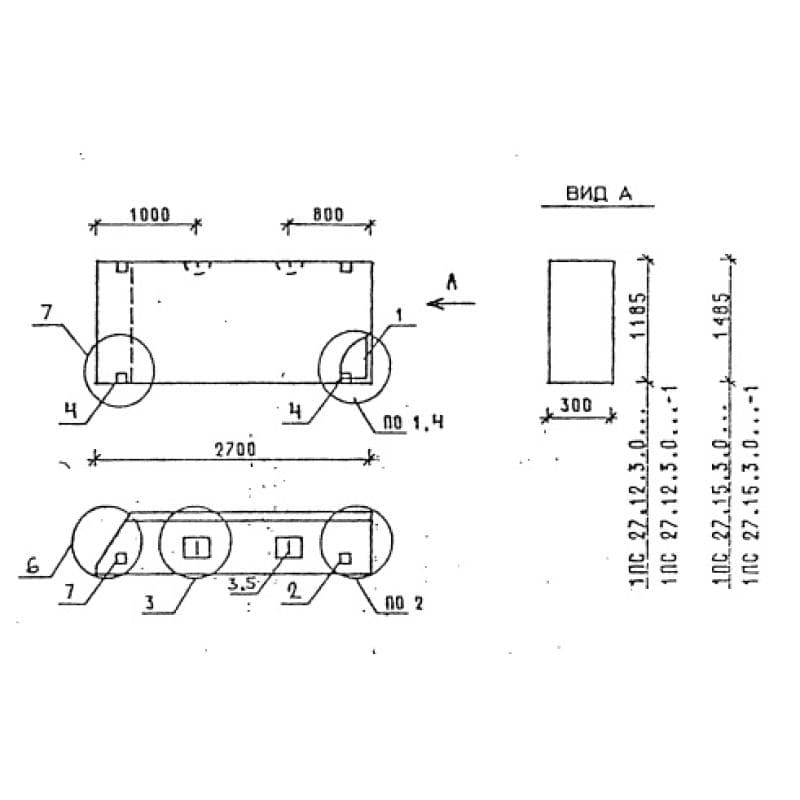
300x1285x27001ПС 27-13-3,0-6 л-1
Цена по запросу

300x880x12320ПС 123-9-30-5 п-442 (1.432.1-22)
Цена по запросу

200x1170x11970ПС 120-12-20-2 АIIIвл-112 с (1.432.1-23с)
Цена по запросу

350x1560x5100НР 2-51-15-35 (1.232 КЛ-2)
Цена по запросу

290x171x1050ЛС 11-17-1 лев
Цена по запросу