Каталог по сериям
Выбрана серия: Серия 1.432.1-18
Серия 1.432.1-18

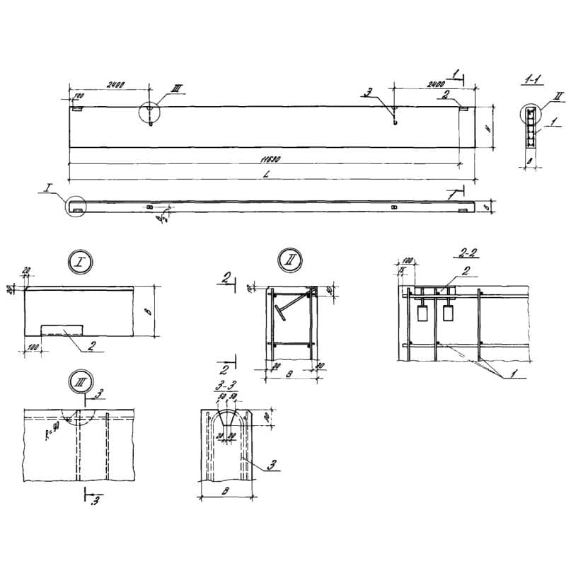
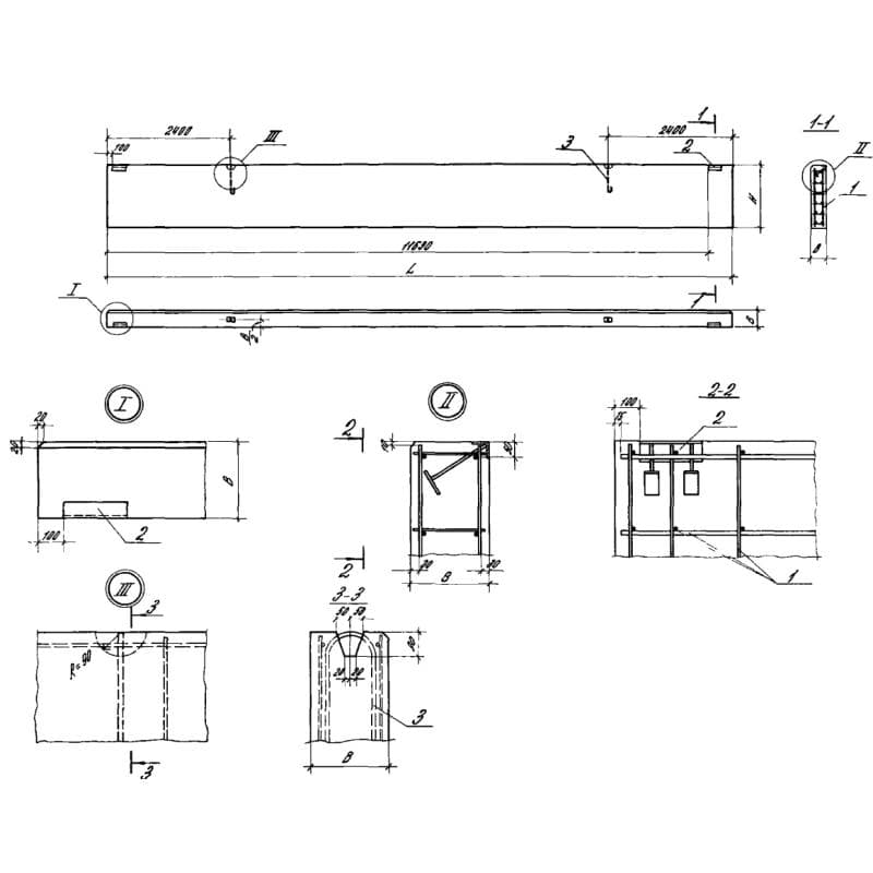
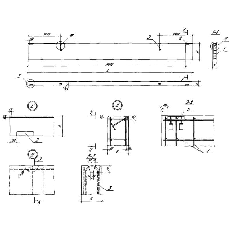
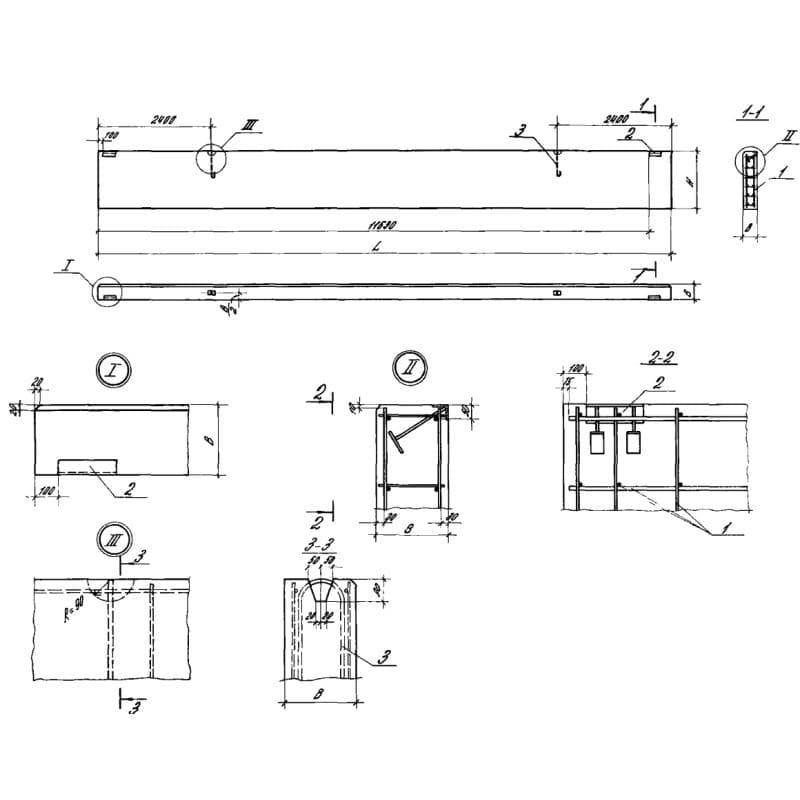
200x880x12220ПС 122-9-20-1 АIII п-11 (1.432.1-18)
Цена по запросу

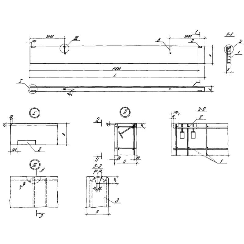
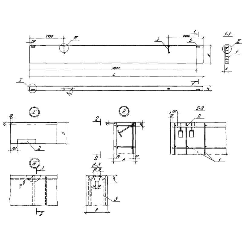
200x880x12220ПС 122-9-20-1 АIII п-12 (1.432.1-18)
Цена по запросу

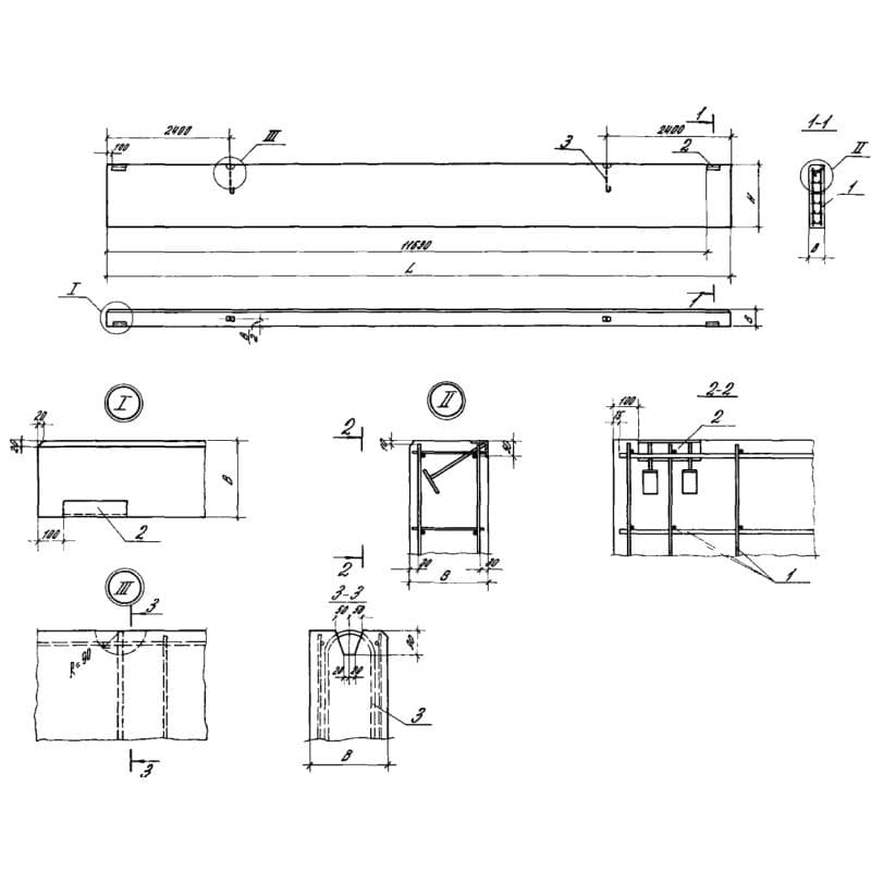
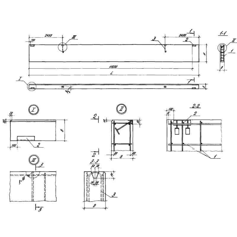
200x880x12220ПС 122-9-20-2 АIII п-11 (1.432.1-18)
Цена по запросу

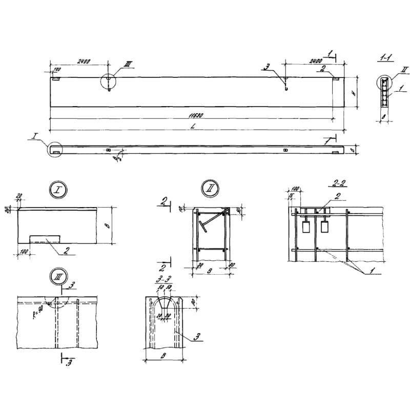
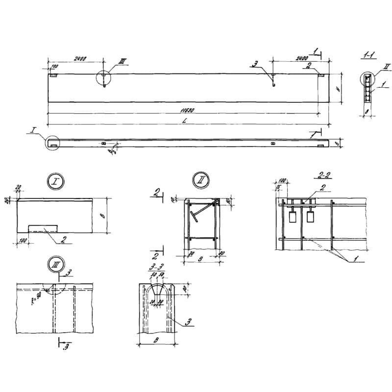
200x880x12220ПС 122-9-20-2 АIII п-12 (1.432.1-18)
Цена по запросу

200x880x12220ПС 122-9-20-2 АIII п-21 (1.432.1-18)
Цена по запросу

200x880x12220ПС 122-9-20-2 АIII п-22 (1.432.1-18)
Цена по запросу

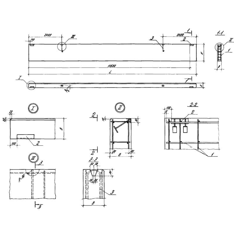
250x880x12220ПС 122-9-25-1 АIII п-11 (1.432.1-18)
Цена по запросу

250x880x12220ПС 122-9-25-1 АIII п-12 (1.432.1-18)
Цена по запросу

250x880x12220ПС 122-9-25-1 п-11 (1.432.1-18)
Цена по запросу

250x880x12220ПС 122-9-25-1 п-12 (1.432.1-18)
Цена по запросу

250x880x12220ПС 122-9-25-2 АIII п-11 (1.432.1-18)
Цена по запросу

250x880x12220ПС 122-9-25-2 АIII п-12 (1.432.1-18)
Цена по запросу