
Серия КЭ 01-06
Выпуски:
Выпуск I. Сборные железобетонные колонны одноэтажных производственных зданий. Рабочие чертежиВыпуск II. Сборные железобетонные колонны одноэтажных производственных зданий. Рабочие чертежиВыпуск III. Сборные железобетонные колонны одноэтажных производственных зданий. Рабочие чертежиВыпуск V. Сборные железобетонные колонны для одноэтажных производственных зданий с бескрановыми пролетами при сетке опор 12х12, 12х18 и 12х24. Рабочие чертежиВыпуск VI. Сборные железобетонные колонны для одноэтажных производственных зданий с крановыми пролетами при сетке опор 12х18 и 12х24. Рабочие чертежиВыпуск I. Сборные железобетонные колонны одноэтажных производственных зданий. Рабочие чертежиВыпуск II. Сборные железобетонные колонны одноэтажных производственных зданий. Рабочие чертежиВыпуск III. Сборные железобетонные колонны одноэтажных производственных зданий. Рабочие чертежиВыпуск V. Сборные железобетонные колонны для одноэтажных производственных зданий с бескрановыми пролетами при сетке опор 12х12, 12х18 и 12х24. Рабочие чертежиВыпуск VI. Сборные железобетонные колонны для одноэтажных производственных зданий с крановыми пролетами при сетке опор 12х18 и 12х24. Рабочие чертежи
Продукция по Серия КЭ 01-06
Серия КЭ 01-06

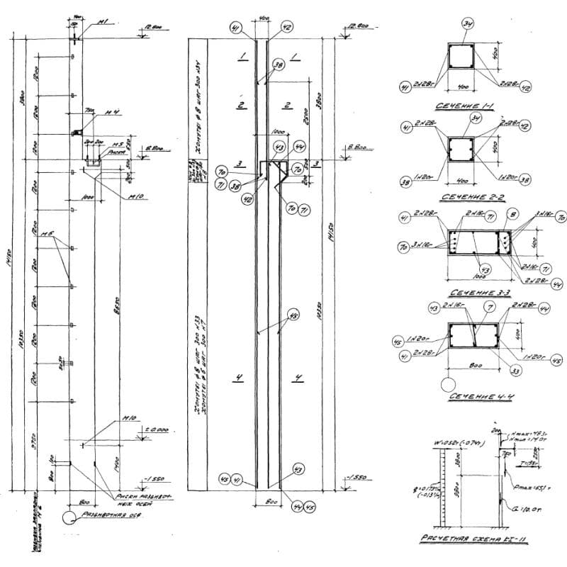
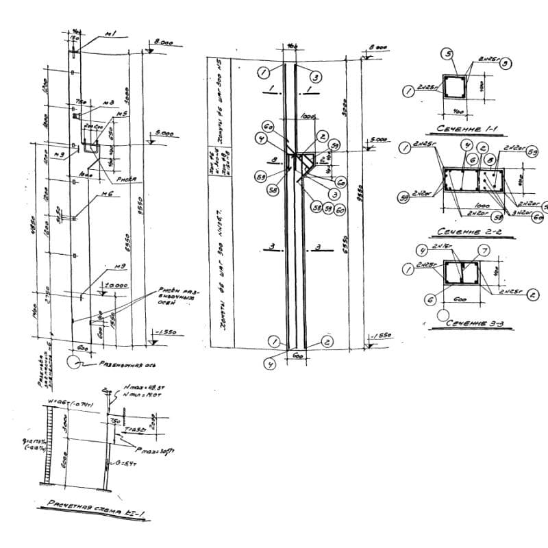
1000x400x9550К I-1 (КЭ 01-06)
Цена по запросу

1000x400x9550К I-1 б (КЭ 01-06)
Цена по запросу

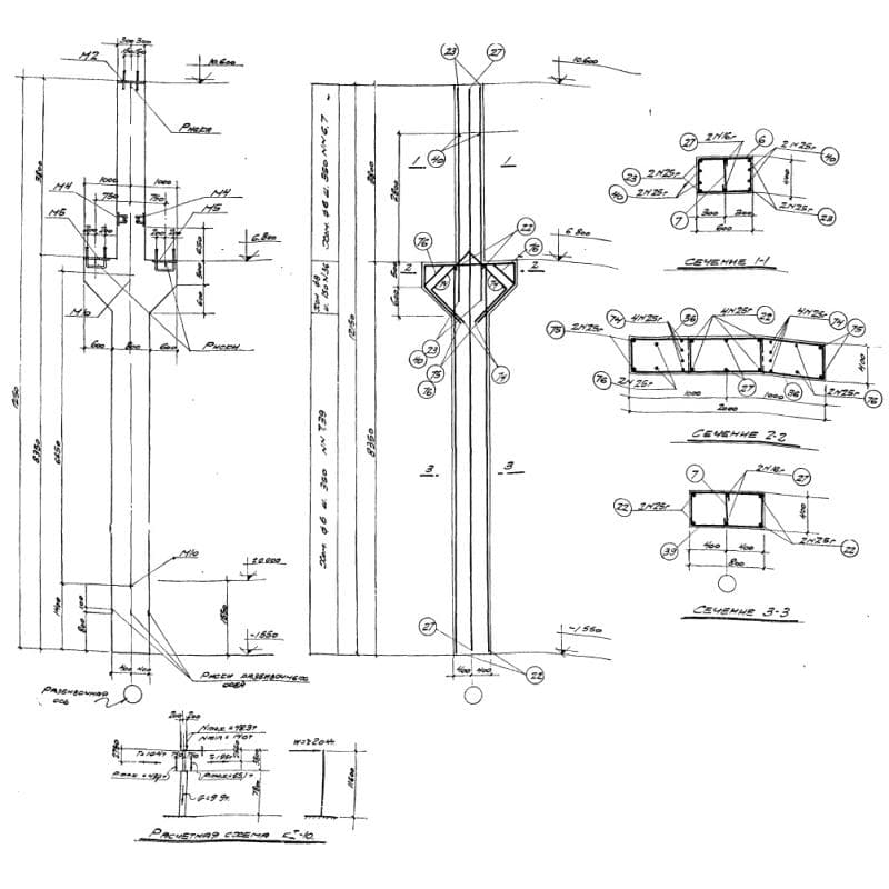
2000x400x12150К I-10 (КЭ 01-06)
Цена по запросу

2000x400x12150К I-10 а (КЭ 01-06)
Цена по запросу

2000x400x12150К I-10 б (КЭ 01-06)
Цена по запросу

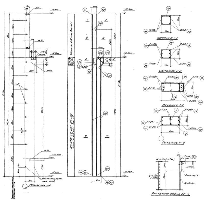
1000x400x14150К I-11 (КЭ 01-06)
Цена по запросу

1000x400x14150К I-11 б (КЭ 01-06)
Цена по запросу

2000x400x14150К I-12 (КЭ 01-06)
Цена по запросу

2000x400x14150К I-12 а (КЭ 01-06)
Цена по запросу

2000x400x14150К I-12 б (КЭ 01-06)
Цена по запросу

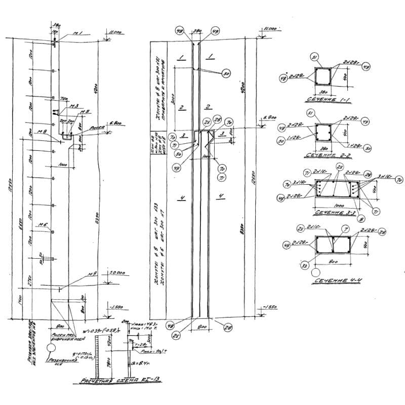
1000x400x12550К I-13 (КЭ 01-06)
Цена по запросу

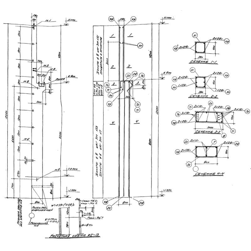
1000x400x12550К I-13 б (КЭ 01-06)
Цена по запросу