
Серия 3.501.1-146
Выпуски:
Выпуск 0. Материалы для проектирования. Рабочие чертежиВыпуск 1. Альбом 1. Балки пролетных строений. Рабочие чертежиВыпуск 1. Альбом 2. Балки пролетных строений. Рабочие чертежиВыпуск 2. Арматурные изделия. Рабочие чертежиВыпуск 3. Стальные изделия. Рабочие чертежиВыпуск 0. Материалы для проектирования. Рабочие чертежиВыпуск 1. Альбом 1. Балки пролетных строений. Рабочие чертежиВыпуск 1. Альбом 2. Балки пролетных строений. Рабочие чертежиВыпуск 2. Арматурные изделия. Рабочие чертежиВыпуск 3. Стальные изделия. Рабочие чертежи
Продукция по Серия 3.501.1-146
Серия 3.501.1-146

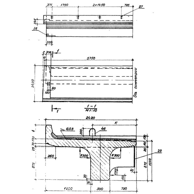
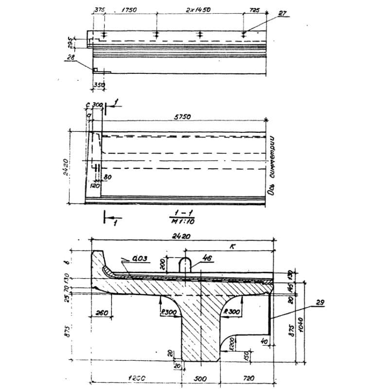
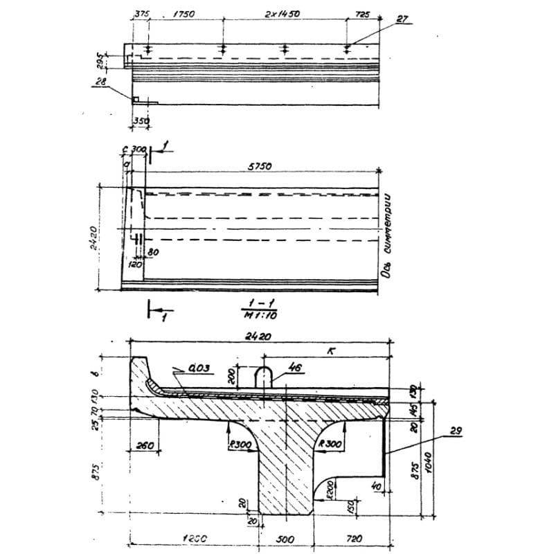
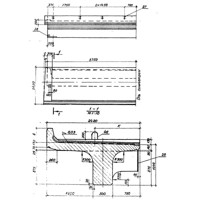
2420x1040x11500Б 115
Цена по запросу

2420x1040x11500Б 115 АII
Цена по запросу

2420x1040x11500Б 115 к1
Цена по запросу

2420x1040x11500Б 115 к1 АII
Цена по запросу

2420x1040x11500Б 115 к1 м
Цена по запросу

2420x1040x11500Б 115 к1 м АII
Цена по запросу

2420x1040x11500Б 115 к1 м1
Цена по запросу

2420x1040x11500Б 115 к1 м1 АII
Цена по запросу

2420x1040x11500Б 115 к2
Цена по запросу

2420x1040x11500Б 115 к2 АII
Цена по запросу

2420x1040x11500Б 115 к2 м
Цена по запросу

2420x1040x11500Б 115 к2 м АII
Цена по запросу