
Серия 86
Выпуски:
ТЭ 1. Техническая эксплуатацияЧасть 10. Раздел 10.1-1. Изделия заводского изготовления. Бетонные и железобетонные изделияЧасть 10. Раздел 10.1-2. Изделия заводского изготовления. Панели перекрытий с круглыми пустотамиЧасть 10. Раздел 10.1-2.1. Изделия заводского изготовления. Панели перекрытийЧасть 10. Раздел 10.1-2.3. Изделия заводского изготовления. Панели перекрытий железобетонные многопустотныеЧасть 10. Раздел 10.1-2.4. Изделия заводского изготовления. Плиты перекрытий железобетонные ребристые (сантехнические)Часть 10. Раздел 10.1-3. Изделия заводского изготовления. Балконные плитыЧасть 10. Раздел 10.2-1. Изделия заводского изготовления. Гипсобетонные и легкобетонные изделияЧасть 10. Раздел 10.3-1. Изделия заводского изготовления. Деревянные изделияЧасть 10. Раздел 10.4-1. Изделия заводского изготовления. Металлические изделияЧасть 10. Раздел 10.7-1. Изделия заводского изготовления. Мусоропровод МП1Часть 10. Раздел 10.9-1. Изделия заводского изготовления. Разные изделияЧасть 10. Раздел 10.9-10. Изделия заводского изготовления. Разные изделия (дополнение к разделам 10.1-1; 10.2-1; 10.4-1)Часть 10. Раздел 10.9-4. Изделия заводского изготовления. Разные изделияЧасть 10. Раздел 10.9-5. Изделия заводского изготовления. Разные изделия (дополнение к разделам 10.1-1; 10.2-1; 10.3-1; 10.4-1)Часть 10. Раздел 10.9-6. Изделия заводского изготовления. Разные изделия (дополнение к разделам 10.1-1; 10.2-1; 10.3-1; 10.4-1)Часть 10. Раздел 10.9-8. Изделия заводского изготовления. Разные изделия (дополнение к разделам 10.1-1; 10.3-1; 10.4-1)Часть 10. Раздел 10.9-9. Изделия заводского изготовления. Разные изделия (дополнение к разделам 10.1-1; 10.4-1)ТЭ 1. Техническая эксплуатацияЧасть 10. Раздел 10.1-1. Изделия заводского изготовления. Бетонные и железобетонные изделияЧасть 10. Раздел 10.1-2. Изделия заводского изготовления. Панели перекрытий с круглыми пустотамиЧасть 10. Раздел 10.1-2.1. Изделия заводского изготовления. Панели перекрытийЧасть 10. Раздел 10.1-2.3. Изделия заводского изготовления. Панели перекрытий железобетонные многопустотныеЧасть 10. Раздел 10.1-2.4. Изделия заводского изготовления. Плиты перекрытий железобетонные ребристые (сантехнические)Часть 10. Раздел 10.1-3. Изделия заводского изготовления. Балконные плитыЧасть 10. Раздел 10.2-1. Изделия заводского изготовления. Гипсобетонные и легкобетонные изделияЧасть 10. Раздел 10.3-1. Изделия заводского изготовления. Деревянные изделияЧасть 10. Раздел 10.4-1. Изделия заводского изготовления. Металлические изделияЧасть 10. Раздел 10.7-1. Изделия заводского изготовления. Мусоропровод МП1Часть 10. Раздел 10.9-1. Изделия заводского изготовления. Разные изделияЧасть 10. Раздел 10.9-10. Изделия заводского изготовления. Разные изделия (дополнение к разделам 10.1-1; 10.2-1; 10.4-1)Часть 10. Раздел 10.9-4. Изделия заводского изготовления. Разные изделияЧасть 10. Раздел 10.9-5. Изделия заводского изготовления. Разные изделия (дополнение к разделам 10.1-1; 10.2-1; 10.3-1; 10.4-1)Часть 10. Раздел 10.9-6. Изделия заводского изготовления. Разные изделия (дополнение к разделам 10.1-1; 10.2-1; 10.3-1; 10.4-1)Часть 10. Раздел 10.9-8. Изделия заводского изготовления. Разные изделия (дополнение к разделам 10.1-1; 10.3-1; 10.4-1)Часть 10. Раздел 10.9-9. Изделия заводского изготовления. Разные изделия (дополнение к разделам 10.1-1; 10.4-1)
Продукция по Серия 86
Серия 86

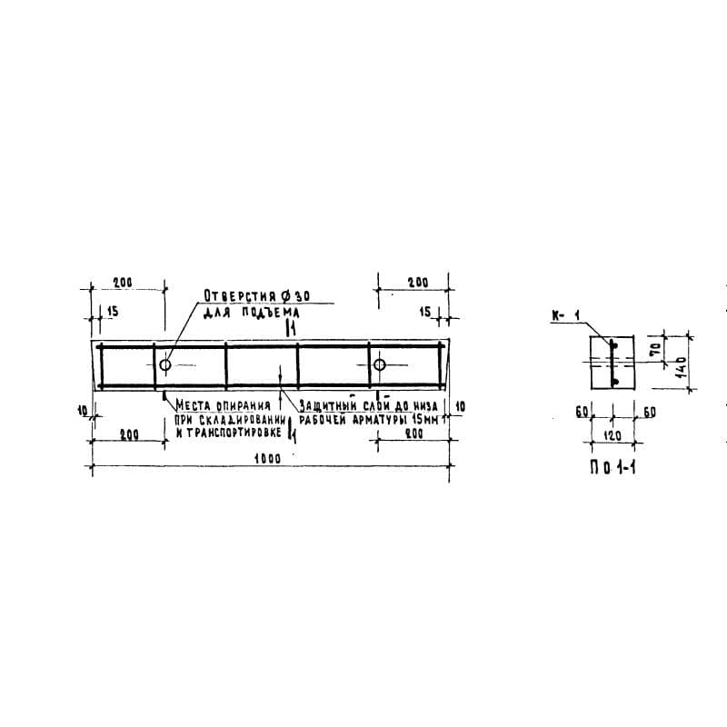
120x140x1000Б 10
Цена по запросу

450x120x3880БОЛ 39-4,5-1
Цена по запросу

450x120x3880БОЛ 39-4,5-2
Цена по запросу

670x120x3880БОЛ 39-7
Цена по запросу

670x120x3880БОЛ 39-7-1
Цена по запросу

900x120x3880БОЛ 39-9
Цена по запросу

120x450x4600БОЛ 46-4,5
Цена по запросу

120x450x4600БОЛ 46-4,5-1
Цена по запросу

120x450x4600БОЛ 46-4,5-2
Цена по запросу

120x670x4600БОЛ 46-7
Цена по запросу

120x670x4600БОЛ 46-7-1
Цена по запросу

120x900x4600БОЛ 46-9
Цена по запросу