
Серия ИЖ 745-01
Выпуски:
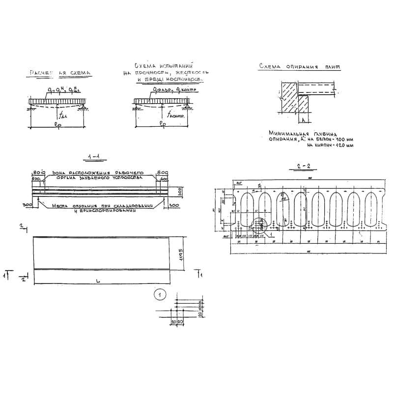
ИЖ 745-01. Плиты железобетонные многопустотные предварительно напряжённые стендового безопалубочного формования высотой 300 мм, шириной 1200 мм, армированные высокопрочной проволокой класса BрIIИЖ 745-01. Плиты железобетонные многопустотные предварительно напряжённые стендового безопалубочного формования высотой 300 мм, шириной 1200 мм, армированные высокопрочной проволокой класса BрII
Продукция по Серия ИЖ 745-01
Серия ИЖ 745-01

1195x300x101803ПБ 102-12-10
Цена по запросу

1195x300x101803ПБ 102-12-3
Цена по запросу

1195x300x101803ПБ 102-12-4,5
Цена по запросу

1195x300x101803ПБ 102-12-6
Цена по запросу

1195x300x101803ПБ 102-12-8
Цена по запросу

1195x300x107803ПБ 108-12-3
Цена по запросу

1195x300x107803ПБ 108-12-4,5
Цена по запросу

1195x300x107803ПБ 108-12-6
Цена по запросу

1195x300x107803ПБ 108-12-8
Цена по запросу

1195x300x113803ПБ 114-12-3
Цена по запросу

1195x300x113803ПБ 114-12-4,5
Цена по запросу

1195x300x113803ПБ 114-12-6
Цена по запросу