
Серия 3.504.1-23
Выпуски:
Выпуск 0. Материалы для проектированияВыпуск 1. Сваи-оболочки СОН. Рабочие чертежиВыпуск 2. Анкерные сваи АС. Рабочие чертежиВыпуск 3. Анкерные тяги. Рабочие чертежиВыпуск 0. Материалы для проектированияВыпуск 1. Сваи-оболочки СОН. Рабочие чертежиВыпуск 2. Анкерные сваи АС. Рабочие чертежиВыпуск 3. Анкерные тяги. Рабочие чертежи
Продукция по Серия 3.504.1-23
Серия 3.504.1-23

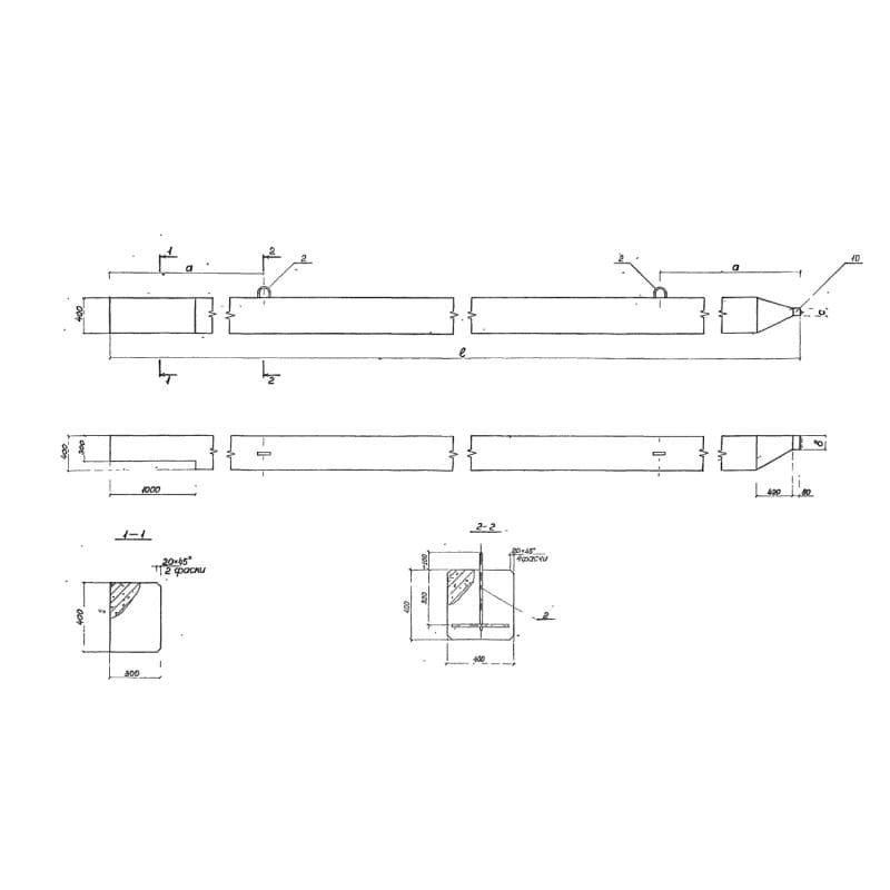
400x400x10000АС 100-40
Цена по запросу

400x400x10000АС 100-40 с
Цена по запросу

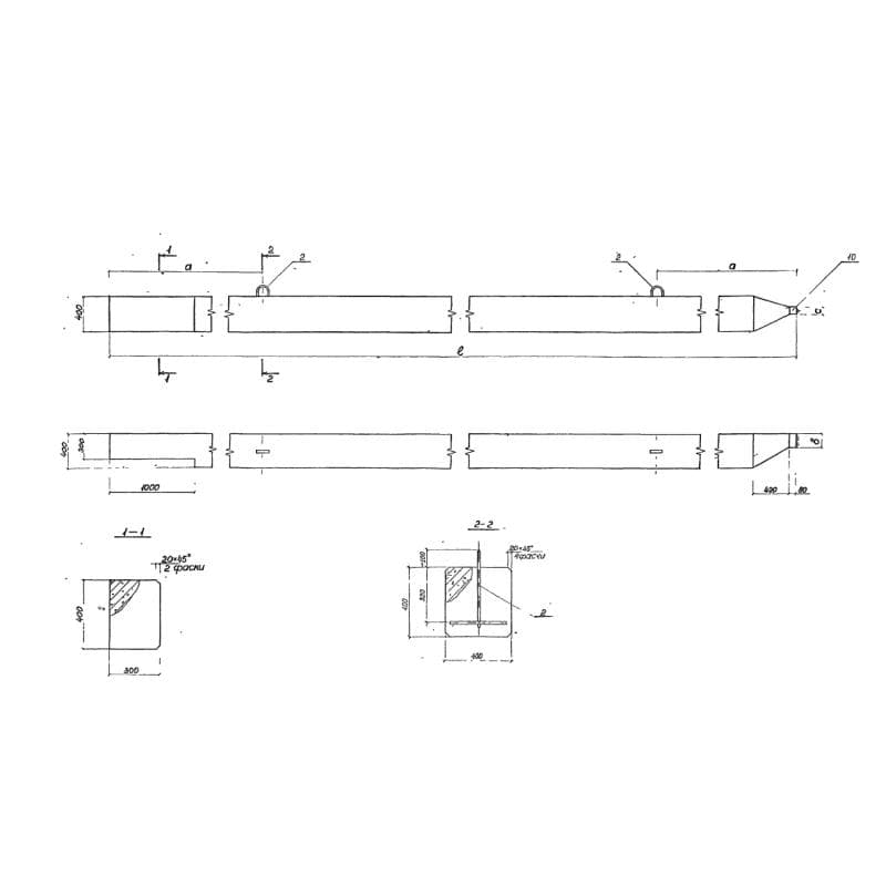
400x400x11000АС 110-40
Цена по запросу

400x400x11000АС 110-40 с
Цена по запросу

300x400x5000АС 50-30
Цена по запросу

300x400x5000АС 50-30 с
Цена по запросу

300x400x6000АС 60-30
Цена по запросу

300x400x6000АС 60-30 с
Цена по запросу

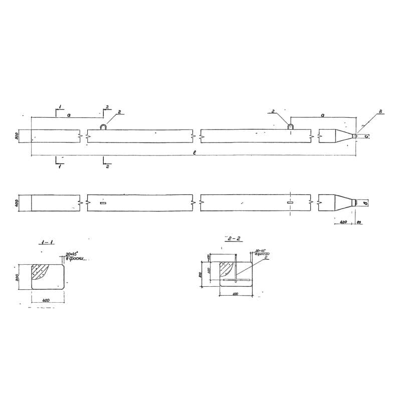
350x400x6000АС 60-35
Цена по запросу

350x400x6000АС 60-35 с
Цена по запросу

300x400x7000АС 70-30
Цена по запросу

300x400x7000АС 70-30 с
Цена по запросу