2,1ФСП 24-09,45 АIV

2,1ФСП 24-09,45 АIV
О товаре
Цена по запросу
ОПИСАНИЕ
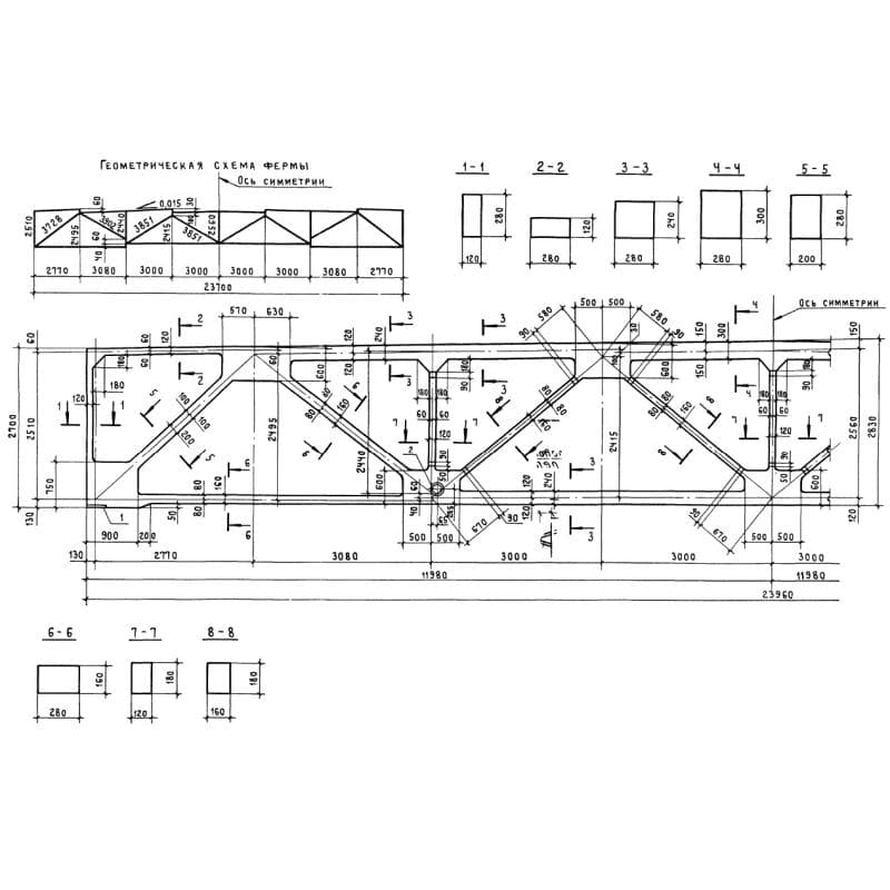
Ферма 2,1ФСП 24-09,45 АIV представляет собой высокопрочное железобетонное изделие своеобразной формы пролетом 18 и 24 метра для покрытия зданий с малоуклонной кровлей. Конструкции запроектированы трех типов, а именно фермы пролетом 18 и 24 метра с опорными стойками и крайними панелями верхнего пояса, фермы без одной опорной стойки и панели верхнего пояса, а так же третий тип-без двух опорных стоек и крайних панелей верхнего пояса, служащие для установки в средних пролетах сооружения. Данные железобетонные элементы являются надежной опорой для кровельных покрытий. Нормативный документ Серия 1.463.1-17 допускает применение конструкций с зенитными и светоаэрационными бесфонарными установками, а так же в зданиях с отоплением и без отопления, в несейсмических и в сейсмических районах с сейсмичностью восемь баллов, в неагрессивных, агрессивных и в средне агрессивных средах согласно действующему документу.
Расшифровка маркировки
На торцевой грани любого железобетонного изделия можно встретить сочетание буквенно-цифровых групп. Марка строительного элемента наносится черной несмываемой и влагоустойчивой краской при помощи трафаретов и штампов. Согласно Серии 1.463.1-17 марка 2,1ФСП 24-09,45 АIV имеет следующую расшифровку:
1. 2 - порядковый номер опалубки;
2. 1 - наличие 2х опорных стоек и крайних панелей верхнего пояса (2-имеется 1 стойка и крайняя панель верхнего пояса; 3-отсутввуют 2 опорные стойки и крайние панели);
3. ФСП - ферма стропильная полигональная;
4. 24 - номинальный пролет, указывается в метрах;
5. 9 - несущая способность;
6. 45 - класс бетона;
7. AIV - класс армирования.
Дополнительно могут стоять индексы после марки, которые характеризуют водонепроницаемость бетона и наличие закладных деталей. Обязательно должен стоять штамп ОТК.
Материалы и производство
Производство фермы 2,1ФСП 24-09,45 АIV осуществляется на заводе в многоярусных специальных стальных камерах в полном соответствии с требованиями Серии 1.463.1-17. В данном нормативном документе изложены особенности изготовления элементов, правила приемки и транспортировки, а так же наглядно представлены рабочие чертежи ферм. В качестве основного материала запроектирован тяжелый бетон классов от B35 до B60. Значительную прочность конструкциям придает армирование. В качестве напрягаемой арматуры используется стержневая сталь класса AIII-в, AIV и AV по требованию ГОСТ 5781-82. Что касается ненапрягаемой арматуры, то применяют арматурную сталь класса A-III, A-II и обыкновенную проволоку класса Bp-I по ГОСТ 5481-82. Марка стали устанавливается в зависимости от климатических особенностей зоны, где будет осуществляться застройка. Изготовитель обязательно должен провести работу по защите всех элементов от коррозии, так как фермы могут применяться в различных климатических условиях. Предел огнестойкости железобетонных конструкций составляет обычно 1-1,5 часа. Все готовые изделия проходят проверочные испытания, которые проводятся согласно ГОСТ 8829-85 и Серии 1.463.1-17. По результатам всех осмотров и проверок, железобетонные конструкции снабжаются специализированной технической документацией.
Транспортировка и хранение
Складирование и транспортировка 2,1ФСП 24-09,45 АIV осуществляется в соответствии с требованиями ГОСТ 20213-89. Хранятся железобетонные изделия на крытых складских площадках. Элементы укладывают на ровное основание в вертикальном положении, с использованием деревянных подкладок. Транспортировка осуществляется в соответствии с нормативным документом Серия 1.463.1-17 и с соблюдением техники безопасности.