2ПСН 28-18-3,0 я (1.020-1)

2ПСН 28-18-3,0 я (1.020-1)
О товаре
Цена по запросу
ОПИСАНИЕ
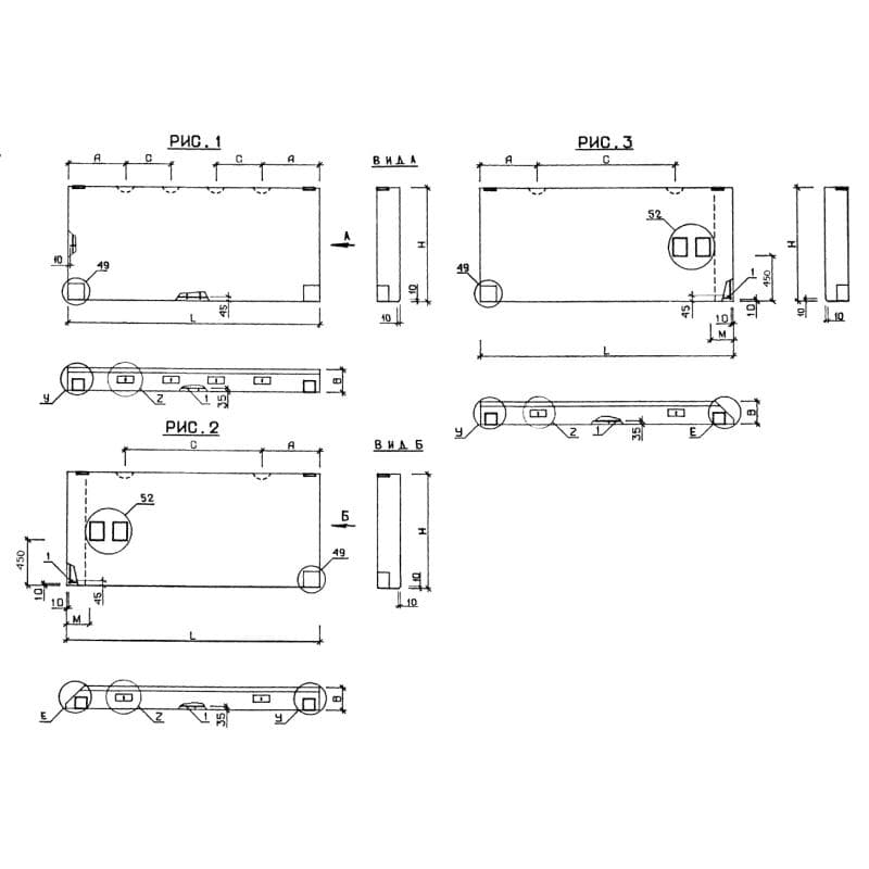
Панели наружных стен навесные 2ПСН 28-18-3,0 я (1.020-1) - это плоские однослойные элементы, армированные сталью. Железобетонные изделия нашли свое применение при строительстве многоэтажных общественных и производственных зданий. Панели обладают отличными эксплуатационными характеристиками, а так же служат для эстетических целей. Индустриальные конструкции отличается высокой прочностью и надежностью, просты при монтаже и их допускается использовать в различных климатических зонах. Рабочие чертежи представлены в Серии 1.020-1.
Расшифровка маркировки
На торцевой стороне каждого индустриального изделия можно обнаружить маркировочный шифр, состоящий из букв и цифр. Данное обозначение раскрывает основные характеристики железобетонного изделия. Совокупность индексов в маркировке 2ПСН 28-18-3,0 я (1.020-1) имеет следующее значение:
1. 2ПСН - тип элемента - панель навесная для внутренних углов левая (1ПСН - рядовая; 3ПСН - панель для внутренних углов правая; 4ПСН - простеночная панель; 5ПСН - навесная панель для наружных углов сооружения);
2. 28 - длина;
3. 18 - высота;
4. 3,0 - ширина;
5. я - вид бетона - на ячеистых заполнителях бетон.
Рядом с маркой ставят печать отдела технического контроля, логотип производителя, дату производства.
Основные характеристики и изготовление
Процесс изготовления панелей наружных стен навесных 2ПСН 28-18-3,0 я (1.020-1) осуществляется в заводских условиях с использованием новейших технологий и с соблюдением всех норм Серии 1.020-1. Панели запроектированы из легких бетонов на пористых заполнителях, из ячеистых бетонов согласно ГОСТ 18105-72 и ГОСТ 12852-67. Марка бетона по морозостойкости и водонепроницаемости зависит от климатических особенностей района эксплуатации. Панели из легких бетонов производятся с наружными и внутренними отделочными слоями, а элементы из ячеистых бетонов, только с наружным защитным слоем. Конструкции приобретают значительную прочность благодаря армированию пространственными каркасами и сетками. Согласно регламенту используются арматурная сталь класса A-III. Качество арматурных сеток и каркасов сравнивается с требованиями ГОСТ 10922-92. Все закладные детали должны пройти антикоррозионную обработку. Для удобства монтажа используются строповочные петли из горячекатаной стали класса A-I. Контроль за качеством выпущенных панелей осуществляется отделом технического контроля. Элементы проверяются на прочность, жесткость и трещиностойкость. Внимательно проверяется геометрия и внешний вид бетонной поверхности по ГОСТ 10922-75. После всех испытаний и проверок индустриальные конструкции получают паспорт качества, в котором указывается основная информация о материале и о предприятии - производителе.
Транспортировка и хранение
Хранение железобетонных панелей 2ПСН 28-18-3,0 я (1.020-1) осуществляется на специальной складской площадке в вертикальном положении в кассетах с применением инвертарных подкладок и прокладок, которые защищают от повреждений. Транспортировка осуществляется на панелевозах, при этом все индустриальные конструкции необходимо надежно закрепить фиксаторами. Следует так же организовать удобный подъезд транспорта, погрузочно-разгрузочные работы проводятся с особой осторожностью и с соблюдением правил техники безопасности. Очень важно беречь строительные изделия от механических повреждений, после которых панели будут не пригодны к дальнейшей эксплуатации. Каждая готовая партия железобетонных конструкций отправляется к заказчику с документами.