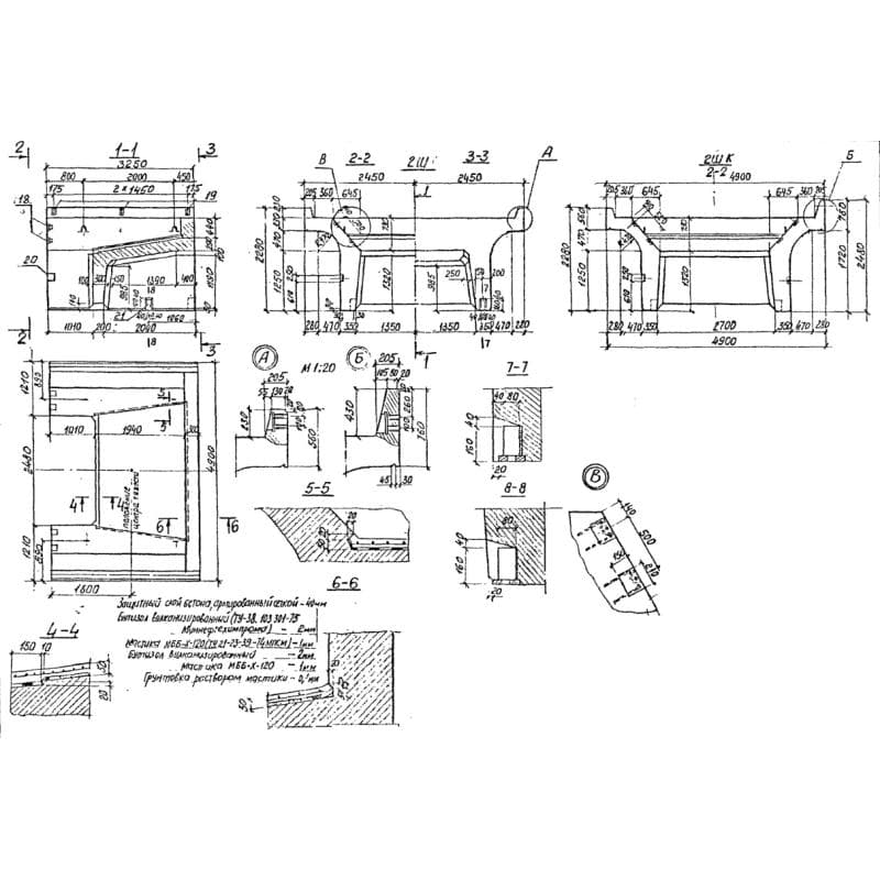
2ШК

wpo8njxe8gglbiw
2ШК

О товаре

Длина:4900
Ширина:3250
Высота:2480
Вес:22800
ГОСТ, Серия:-
Объем бетона:9,1 м3
Геометрический объем:39,494 м3

Цена по запросу

ОПИСАНИЕ

Блоки шкафных стенок 2ШК – это железобетонные изделия, без которых просто не обойтись при строительстве железных дорог. Конструктивно они представляют собой довольно массивные стенки неправильной формы со специальными выступами и техническими выемками для соединения с прочими элементами свайных опор. Основные рабочие чертежи, расчеты, таблицы для сверки, технические условия и прочие материалы для проектирования, на которые следует ориентироваться при выпуске подобных блоков, содержатся в действующей Серии 3.501.1-150.

1. Варианты маркировки

Официально установленные стандарты написания маркировочных обозначений для ЖБ шкафных блоков, предписывают изображать марку данных изделий несколькими основными способами:

1. 2Ш;

2. 2ШК;

3. 2ШКн.

2. Основная сфера применения

Блоки шкафных стенок 2ШК являются обязательными конструктивными элементами сборных опорных свай для укрепления железнодорожных насыпей. Подобные системы применяются на железнодорожных мостах однопутного типа. Устанавливаться могут как на прямых, так и на изогнутых (минимальным радиусом в 300 м) участках пути. Некоторые виды подобных конструкций могут применяться и для укрепления постоянно или периодически действующих водопропускных систем. При этом опоры должны располагаться вне возможных областей образования наледей. Что касается климатических районов, то рассматриваемые нами ЖБ элементы активно применяются практически в любых условиях, включая умеренные, суровые и особо суровые. Они также могут выдерживать сейсмическую активность в 7, 8 и даже 9 баллов по шкале Рихтера в зависимости от марки бетона и армирования.

3. Обозначения маркировки изделия

Правила маркирования шкафных блоков приняты по ГОСТ 23009-78. Марка определяет тип блока и его основные характеристики (например, условия применения). Расшифровать обозначения 2ШК довольно просто:

1. 2 - типоразмер;

2. ШН – шкаф-насадка;

3. К - расположение моста на кривой.

При маркировании готовой продукции помимо самой марки указываются также дополнительные размерные характеристики изделий:

Длина = 4900;

Ширина = 3250;

Высота = 2480;

Вес = 22800;

Объем бетона = 9,1;

Геометрический объем = 39,494.

Также на боковых гранях готовой продукции указывается дата выпуска партии и название или логотип компании-производителя.

4. Изготовление и основные характеристики

Само изготовление, как и прочие аспекты выпуска шкафных блоков, регламентируется техническими условиями Серии 3.501.1-150. Согласно с данным нормативом при производстве используется бетон класса прочности на сжатие В30. Его эксплуатационные показатели варьируются в зависимости от климатического режима, в котором будет применяться изделие. Так, для умеренных и суровых условий (-40 и выше) марка бетона по морозостойкости берется F200, а предназначенные для особо суровой погоды блоки шкафных стенок 2ШК могут выдерживать вплоть до 300 полных циклов замораживания. Марка водонепроницаемости в основном отвечает уровню W8, а марка W6 применяется только в более-менее умеренном климате. Кроме того для гидрофобизации изделий их в готовом виде покрывают специальными веществами. А для повышения сопротивляемости элементов резким перепадам температур при замешивании бетонной смеси используется высококлассный портландцемент и натуральные щебенчато-песчаные заполнители.

Для армирования элементов опор применяется арматурная сталь классов А-П, Ас-П, А-ІІІ и А-І. Металлические детали также подвергаются дополнительной обработке антикоррозийными защитными средствами. Вместе со всеми необходимыми закладными изделиями для соединения с соседними ЖБ конструкциями они монтируются в специальные опалубочные формы, а затем заливаются бетоном. После этапа формовки (часто с использованием вибрационного оборудования) наступает стадия термической обработки, которая длится вплоть до обретения готовыми блоками отпускного уровня прочности. Затем изделия освобождают от форм и отправляют на приемку – заключительные испытания качества и соответствия готовых стройматериалов проекту.

5. Транспортировка и хранение

Шкафные блоки для опорных свай 2ШК хранятся штабелями на подготовленной выровненной основе. Они аккуратно укладываются на специальные инвентарные прокладки таким образом, чтобы хорошо просматривалась марка, указанная на боковых гранях каждого изделия. Все погрузочные работы выполняются исключительно посредством специальной подъемной техники, которая максимально равномерно распределяет вес между стальными строповыми петлями, заранее внедренными в тело блоков. Транспортировка конструкций данного типа проходит в зафиксированном обездвиженном состоянии, что позволяет уберечь железобетонные материалы от любых механических повреждений при тряске.