2БСП 7,5-5 АтIVс (1.849.1-2)

2БСП 7,5-5 АтIVс (1.849.1-2)
О товаре
Цена по запросу
ОПИСАНИЕ
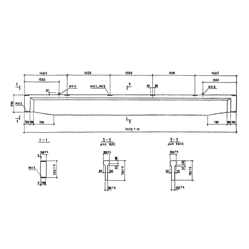
Балка 2БСП 7,5-5 АтIVс (1.849.1-2) - это прямоугольное изделие с тавровым сечением, в котором соединены в единое целое стальная арматура и бетон. В современном строительстве самым распространенным типом опор являются железобетонные балки. Происходит это благодаря тому что 2БСП 7,5-5 АтIVс (1.849.1-2) способствует равномерному и правильному распределению нагрузки от сооружения, что задает постройке надежность и долговечность. Регламент изготовления данных изделий предписывает применение конструкций для чердачных перекрытий в постройках аграрного назначения, с неагрессивной, слабо- или среднеагрессивной степенью воздействия газовых сред.
Расшифровка маркировки
Простота работы с железобетонной продукцией обусловлена наличием у каждого изделия универсальной марки, суть которой состоит в содержании краткой информации о строительном элементе, представленной в буквенно-числовом формате. Рассматривая расшифровку 2БСП 7,5-5 АтIVс (1.849.1-2), можно узнать следующие данные:
1. 2 - порядковый номер типоразмера;
2. БСП - название элемента - балка для чердачных перекрытий;
3. 7,5 - величина пролета в метрах;
4. 5 - нагрузка;
5. AтIVc - класс продольной рабочей арматуры.
Марки наносятся на торцевые грани готовых балок, таким образом, чтобы они были видны при хранении. Также помимо маркировки на строительном элементе могут быть указаны вес, дата выпуска, товарный символ завода и штамп ОТК.
Материалы и производство
Технология процесса изготовления, а также основные применяемые материалы для производства 2БСП 7,5-5 АтIVс (1.849.1-2), прописаны в Серии 1.849.1-2. Производство конструкций предусмотрено в условиях заводов ЖБИ или на оборудованных полигонах, там балки изготавливают в вертикальном положении, в специальных формах. Основным используемым материалом для производства таких изделий является тяжелый бетон класса по прочности на сжатие В25. Марки бетонной смеси по водонепроницаемости и морозостойкости могут зависеть от особенностей последующей эксплуатации, а также температурных режимов в районе строительной площадки, поэтому автор в конкретных проектах назначает ее в индивидуальном порядке.
Для того чтобы строительный элемент в построенном здания легко и успешно справлялся с динамическими и статистическими нагрузками, помимо использования особо плотного бетона 2БСП 7,5-5 АтIVс (1.849.1-2) армируют. Армирование определяют как укрепление бетонной конструкции посредством добавления в нее стальных элементов, соединенных при помощи сварки. Так для армирования 2БСП 7,5-5 АтIVс (1.849.1-2) используются сварные каркасы и сетки, предусмотренные из стержневой стали класса А-III и Ат-IVс, с применением проволоки класса Вр-I. Для соединения балок с другими смежными конструкциями, тело изделия оснащается закладными деталями, поверхность которых защищена антикоррозийным покрытием.
На готовой балке запрещается наличие выступающей арматуры, а размеры возможных неровностей поверхности (раковины, наплывы бетонной смеси, впадины) не должны превышать пределов установленной категории лицевой поверхности А6. Приемка изделий осуществляется на основании ГОСТ 13015.1-81 и Серии их изготовления.
Хранение и транспортировка
Балки необходимо складировать и перевозить в горизонтальном положении, с установкой их на инвентарь из сухой древесины. Толщина инвентаря должна быть не менее 10 см, ширина - не менее 15 см, а длина - не менее 30 сантиметров. Подъем конструкций важно осуществлять исключительно за монтажные петли. Перевозят 2БСП 7,5-5 АтIVс (1.849.1-2) на специализированных автотранспортных средствах или на железнодорожных платформах, оборудованных турникетами. Надежное закрепление изделий при перевозке предотвратит возможное смещение или опрокидывание.