2ФПС 12-1 АIIIв с7

2ФПС 12-1 АIIIв с7
О товаре
Цена по запросу
ОПИСАНИЕ
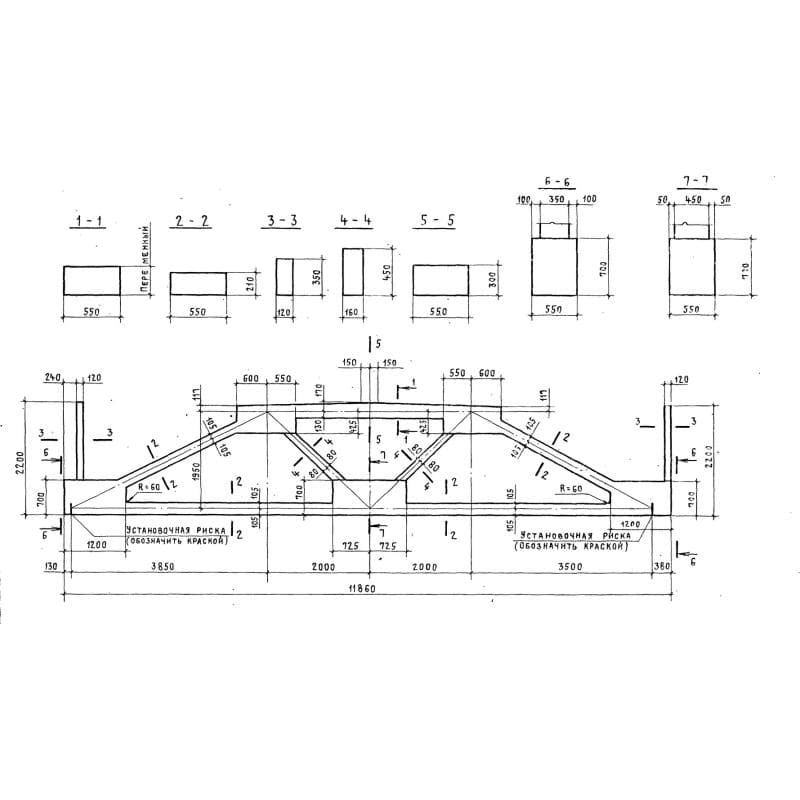
Фермы 2ФПС 12-1 АIIIв с7 – высокопрочные железобетонные изделия специфической формы. По внешнему виду напоминают треугольник со срезанной вершиной, выполненный из нескольких балок прямоугольного сечения. Конструкции запроектированы двух видов для установки в середине здания; и для эксплуатации у температурных швов и торцов с привязкой стропильных элементов и колонн к поперечным разбивочным осям 500 мм.
Унифицированные железобетонные фермы применяются при строительстве зданий и сооружений различного назначения. Их используют для обустройства надежной опоры будущему покрытию со скатной кровлей в отапливаемых объектах. Допускается использование в районах с сейсмичностью до 8 баллов по шкале Рихтера и неотапливаемых сооружениях при температуре наружного воздуха не ниже -40 градусов. Разрешено использовать вспомогательное подвесное оборудование (краны) и фонари. Для этого в конструкцию при формовке внедряются дополнительные закладные для надежного крепления к металлическим распоркам и размещения необходимого по проекту оборудования.
Расшифровка маркировки
Маркировочные обозначения для железобетонных изделий разрабатывались в соответствии с требованиями ГОСТ 23009-78. Они состоят из цифр и букв и позволяют упростить процесс поиска необходимых по типовому проекту элементов. Согласно Серии ПК 01-110/81 маркировочные знаки на боковой поверхности 2ФПС 12-1 АIIIв с7 расшифровываются следующим образом:
1. 2 – индекс, указывающий на применение конструкции в проекте здания (1 – средние ячейки, 2 – температурные швы и торцы здания);
2. ФПС – тип конструкции – ферма подстропильная, предназначенная для скатной кровли;
3. 12 – длина пролета;
4. 1 – несущая способность;
5. AIIIB – класс напрягаемой арматуры;
6. с7 – дополнительные характеристики (с – сейсмичность в баллах, н – бетон нормальной проницаемости для слабоагрессивной среды, п – бетоны повышенной проницаемости для средне агрессивной среды).
Материалы и производство
Оснастка и опалубочные формы должны обеспечивать геометрические пропорции в соответствии с рабочими чертежами Серии ПК 01-110/81. За основу берется бетон марок: М450 и М600. Марки бетона по водонепроницаемости и морозостойкости подбираются по рекомендациям СНиП II-21-75 и СНиП II-28-73 и зависят от особенностей режима эксплуатации и условий климата.
Для армирования изделий используется высокопрочная стержневая арматурная сталь периодического профиля классов: AV, AIV и AVI по ГОСТ 5781-81 и термически упрочненная сталь классов: ATIVc, ATV и ATVI по ГОСТ 10884-81. Дополнительно применяются спиральные канаты К7 по ГОСТ 13840-68. Для особых условий строительства подойдет стойкая против коррозионного растрескивания сталь класса ATVck. Для неагрессивной среды - сталь класса AIIIB. Закладные детали изготавливаются из стали различных марок в зависимости от эксплуатационных условий (СНиП II-21-75). Открытые металлические поверхности закладных обрабатываются антикоррозионными составами.
Отпускная прочность должна быть не ниже 80% от проектной в летнее время, и 100% в зимнее.Предел огнестойкости конструкций составляет 0,8 часа.Прошедшие контрольные испытания изделия снабжаются соответствующими паспортами качества с указанием проектных характеристик.
Транспортировка и хранение
Складирование и транспортировку следует осуществлять с соблюдением правил и норм безопасности, излаженных в СНиП III-4-80. Они должны производиться в вертикальном (рабочем) положении. Обязательно опирание на две деревянные подкладки, располагать которые следует под опорными узлами.