СВ 110-3,5 (ТУ 5863-007-00113557-94)





СВ 110-3,5 (ТУ 5863-007-00113557-94)
О товаре
Цена по запросу
ОПИСАНИЕ
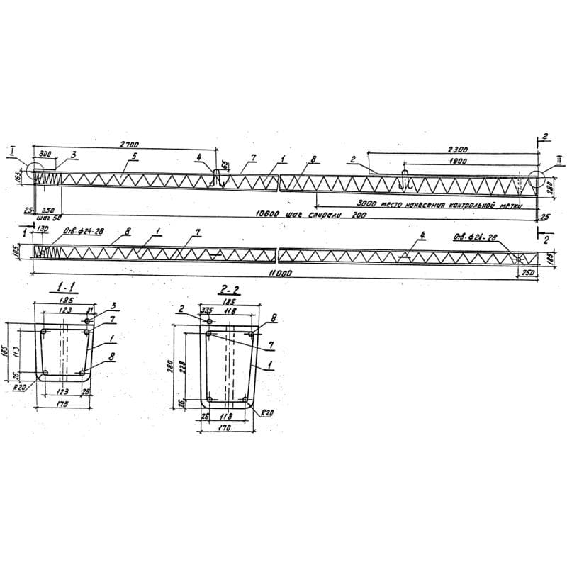
Стойка СВ 110-3,5 (ТУ 5863-007-00113557-94) - это высокопрочная конструкция, созданная путем соединения стали и тяжелого бетона в единый монолит. Изделие представлено простой прямоугольной формы, сужающейся от основания. Данный длинномерный строительный элемент используется в энергетическом строительстве при сооружении линий электропередач 0,38-10кВ, в которых является опорой. Стойки могут применяться со следующими климатическими условиями:
1. температура воздуха до минус пятидесяти пяти градусов по Цельсию;
2. неагрессивная степень воздействия газовой среды;
3. различная степень воздействия в грунтах и грунтовых водах;
4. сейсмичность строительной площадки до девяти баллов включительно.
Расшифровка маркировки
Обширность номенклатурного списка железобетонных изделий обуславливает наделение каждого из них буквенно-числовой маркой. Обычно маркировка содержит в себе информацию о конструктивных особенностях и параметрах строительного элемента в сжатом формате. Так, если рассматривать СВ 110-3,5 (ТУ 5863-007-00113557-94), то можно узнать следующие данные о стойке:
1. СВ - название - стойка вибрированная;
2. 110 - длина в дм;
3. 3,5 - расчетный изгибающий момент в тс*м.
Марка указывается контрастной водостойкой краской на теле готового изделия. Дополнительно могут быть прописаны норматив, масса, штамп ОТК, название завода.
Материалы и производство
В регламенте ТУ 5863-007-00113557-94 предоставлены материалы для проектирования и приложены рабочие чертежи для изготовления железобетонных стоек. В качестве основного материала для СВ 110-3,5 (ТУ 5863-007-00113557-94) может использоваться тяжелый бетон классов по прочности на сжатие В25 и В30, средней плотности 2200-2500 кг/м3. Главными составляющими таких растворов являются портландцемент, сульфатостойкий цемент, заполнители максимальной крупностью два сантиметра и вода. Проектная марка бетонной смеси по морозостойкости назначается не ниже F200, по водонепроницаемости не менее W6.
Армирование будущего строительного элемента является неотъемлемой частью производственного процесса, так как монолит укрепленный арматурой способен выдерживать различные нагрузки. Стойки по ТУ 5863-007-00113557-94 могут изготавливаться как с предварительным напряжением стали, так и без него. Разнообразные классы рабочей арматуры, применяемые для стоек, прописаны в нормативе. Соединение по длине арматурных стержней выполняется стыковой сваркой. Для упрощения погрузочных и разгрузочных работы в тело СВ 110-3,5 (ТУ 5863-007-00113557-94) закладываются монтажные петли, изготавливаемые из стали класса А-I марок СТ3сп2 и Ст3пс2.
Готовые стойки проверяются на соответствие поверхности изделий категории А7, также помимо этого СВ 110-3,5 (ТУ 5863-007-00113557-94) проходят контрольные испытания на прочность, жесткость и трещиностойкость. Если элемент успешно проходит все проверки, ему присваивается документ о качестве, оформленный по ГОСТ 13015.2-81.
Хранение и транспортировка
Данные длинномерные изделия рекомендуется складировать в рассортированном по маркам виде, в штабелях. Штабель составляется с применением деревянного инвентаря, в высоту не более чем из 9 стоек. Прокладки важно размещать таких образом, чтобы они располагались одна над другой по вертикали на расстоянии двух метров от торцов изделий. При размещении СВ 110-3,5 (ТУ 5863-007-00113557-94) необходимо обеспечить их сохранность, а также возможность беспрепятственного захвата конструкций и их свободный подъем для погрузки. Перевозка железобетонной продукции осуществляется всеми видами транспорта, с применением фиксирующих устройств и креплений, а также с учетом всех правил и мер безопасности.