2С 24 е

2С 24 е
О товаре
Цена по запросу
ОПИСАНИЕ
Столбы оград 2С 24 е это монолитные железобетонные изделия продолговатой формы с постоянным квадратным сечением. Размер стороны сечения идентичен для всех наименований номенклатурного ряда и составляет 140 мм. Данные стройматериалы представляют собой элементы оград, которыми обносят промышленные сооружения и площадки различных предприятий. Выпуск таких столбов и сопутствующих им изделий регламентируется действующим типовым проектом Серия 3.017-3. Проект включает указания к производству столбов высотой в 1,8, 2,4 и 3,0 метра. Пожалуй, о высоких требованиях к эксплуатационным характеристикам таких изделий можно не упоминать: именно монолитные бетонные заборы изолируют индустриальные территории от любопытных глаз и посторонних гостей, а также обеспечивают изоляцию улицы от производственного шума и пыли. В связи с этим каждый элемент таких оград должен отвечать высочайшим стандартам прочности и надежности.
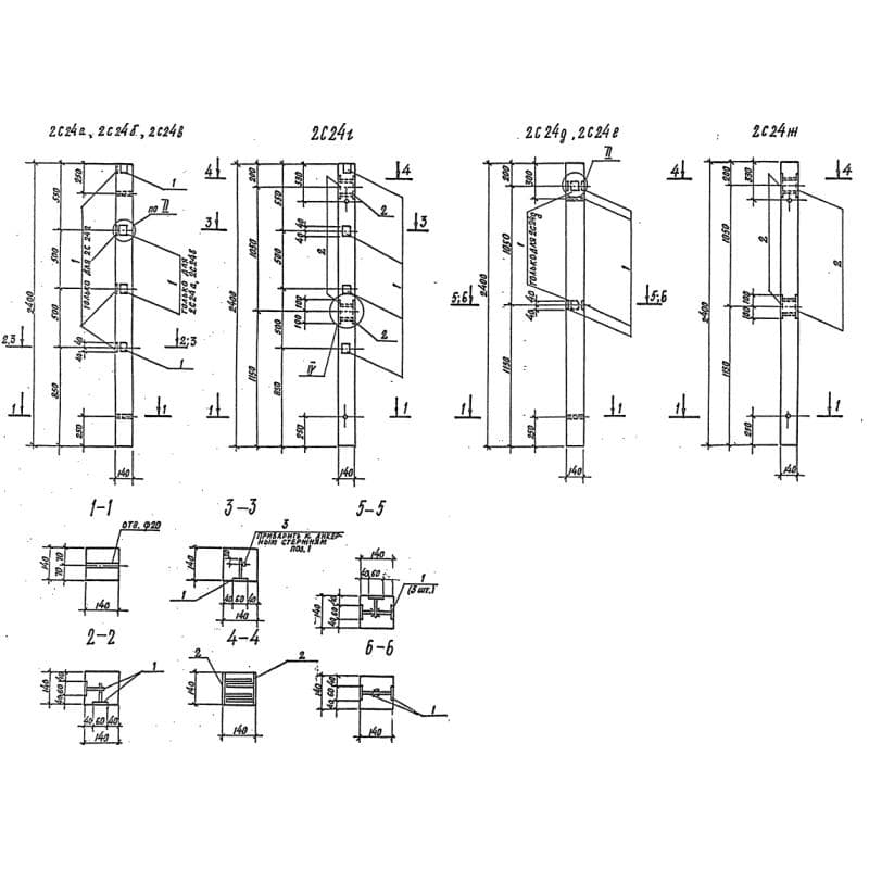
1. Варианты маркировки
Маркировка унифицированных железобетонных изделий осуществляется согласно с правилами, прописанными в Регламенте ГОСТ 23009-78. Она представляет собой определенную последовательность условных обозначений и требуется для удобства сортировки на складах. Марка столбов оград может изображаться такими способами:
1. 2С 24 а;
2. 2С 24 б;
3. 2С 24 в;
4. 2С 24 г;
5. 2С 24 д;
6. 2С 24 е;
7. 2С 24 ж;
8 2С 24 и;
9. 2С 24 к;
1. 2С 24 л.
2. Основная сфера применения
Как уже было сказано выше, столбы 2С 24 е служат для возведения прочных железобетонных оград вокруг промышленных предприятий. Условиями для применения таких материалов являются: наличие сухих непучинистых грунтов, не склонных к проседанию, сейсмическая активность не выше 6 баллов по шкале Рихтера, отсутствие вечной мерзлоты и ветровая нагрузка І-IV районов. Установленные в правильное положение ограды воспринимают два типа нагрузок: вертикальные - от собственного веса и горизонтальные - от порывов ветра. Изделия данного типа также могут использоваться на местности с уклоном, не превышающим допустимого. Они отлично справляются с вредоносными воздействиями внешней среды и показывают себя как надежный способ изоляции предприятий.
3. Обозначения маркировки изделия
Маркировка железобетонных изделий является важным этапом выпуска. Также как и остальные условия производства, она регламентируется соответствующим типовым проектом. Основные требования к таким обозначениям – лаконичность и содержательность, гарантирующие удобство при сортировке продукции и ознакомлении с технической документацией. Буквенно-цифровые обозначения, составляющие марку столбы 2С 24 е, расшифровываются следующим образом:
1. 2 – порядковый номер типоразмера;
2. С – столб железобетонный;
3. 24 – длина в дм.;
4. е – разновидность изделия по закладным деталям.
Полные размерные характеристики могут указываться при нанесении маркировочных обозначений непосредственно на изделие, однако чаще они опускаются. Для данного наименования ключевыми являются следующие показатели:
Длина = 2400;
Ширина = 140;
Высота = 140;
Вес = 130;
Объем бетона = 0,05;
Геометрический объем = 0,047.
4. Изготовление и основные характеристики
Требования к производственному процессу, прописанные в Серии 3.017-3, сводятся к наличию современного заводского оборудования, лабораторий для проведения приемо-сдаточных испытаний и всего необходимого для создания изделий, полностью отвечающих высоким стандартам качества. Основу любого ЖБИ образовывает металлический каркас. Для столбов опор С применяется сталь класса А-ІІІ, холодно-тянутая проволока класса Вр-І, а также рабочая арматура классов А-І и Вр-І. Для надежной защиты изделий от коррозийных процессов все элементы армирования включая закладные детали покрываются несколькими слоями защитной эмали по грунту из специального лака. Сетки и каркасы изготавливаются методом контактно-точечной сварки – готовый столб представляет собой крепкий монолит, способный выдерживать большие нагрузки. Что касается цементного слоя, то бетон отвечает классу В15 по прочности на сжатие. Его показатели морозостойкости и водонепроницаемости напрямую зависят от погодных условий в районе будущей эксплуатации. Столбы используются вместе с соответствующими панелями и устанавливаются в фундамент стаканного типа, а потому точность геометрической формы очень важна. Максимального соответствия с рабочими чертежами позволяет добиться технология виброформования. Показатели прочности, трещиностойкости, внешние характеристики и правильность геометрии тщательно проверяются в ходе заключительного этапа производства – приемки.
5. Транспортировка и хранение
Столбы оград 2С 24 е хранят и перевозят в горизонтальном положении. При складировании нижние изделия укладывают на деревянные прокладки высотой в 40 мм. Прокладки между столбами располагаются в одной плоскости с нижними изолирующими материалами и обладают теми же размерами. Для погрузочных работ применяются специальные траверсы с подвесками, а перед транспортировкой все элементы должны быть надежно закреплены от смещения во всех направлениях.