ПБ 23-12-8







ПБ 23-12-8
О товаре
Цена по запросу
ОПИСАНИЕ
Плиты перекрытия многопустотные ПБ 23-12-8 относятся к разряду железобетонных изделий, которые применяются в гражданском строительстве. За счет использования бетона и стали в одном изделии, плитные элементы стойки к температурным перепадам и прочим атмосферным воздействиям. ПБ 23-12-8 – это плиты особой формы, который в теле имеют многочисленные пустоты, что позволяет облегчить общий вес здания и получить высокие эксплуатационные характеристики плитных элементов.
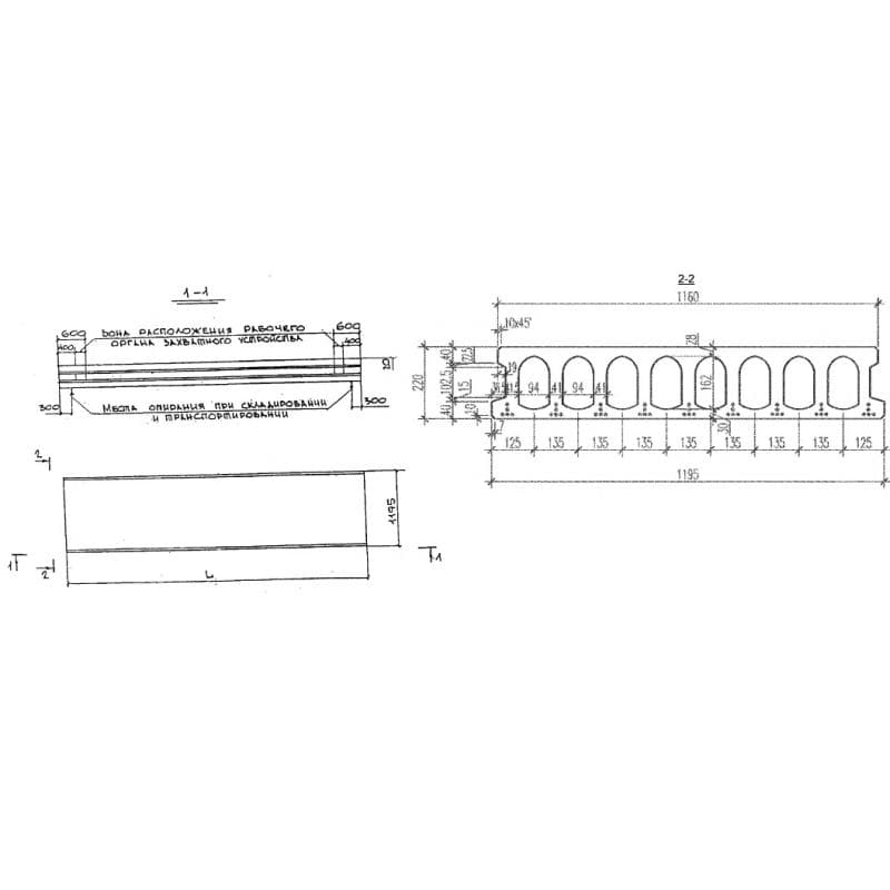
1.Варианты написания маркировки.
Плиты перекрытия с пустотами ПБ 23-12-8 маркируют согласно действующей Серии ИЖ 568, согласно которой указывают тип изделия и его размерные ряды, а также расчетные нагрузки. Варианты написания марки могут быть следующими:
1. ПБ 23-12-10;
2. ПБ 23-12-12;
3. ПБ 23-12-12,5 тп;
4. ПБ 23-12-13;
5. ПБ 23-12-8 п
6. ПБ 23-12-16.
2.Основная сфера применения изделий.
Многопустотные плиты ПБ 23-12-8 – это оптимальный вариант для перекрытия этажей жилых и административных строений. Могут быть использованы в кирпичных, бетонных, блочных или других домах. По сути, плита с пустотами образует ребро жесткости, с помощью которого готовое здание приобретает больше прочности и устойчивости. Железобетонные изделия ПБ 23-12-8 используют как перекрытия несущей части зданий или технических сооружений. Так как плиты используются в жилых домах, то вся продукция сопровождается Сертификатами санитарно-эпидемиологического надзора, поэтому использование таких плит для людей – полностью безопасно для здоровья.
Плиты железобетонные ПБ 23-12-8 имеют многочисленные пустоты особой формы, поэтому готовый объект приобретает повышенные свойства звуко- и теплоизоляции. Все это делает их незаменимыми элементами в многоэтажном строительстве домов. Могут быть использованы также при строительстве общественных и производственных зданий. Пустотные плиты позволяют проводить сквозь них проводку и другие инженерные коммуникации. Все технологии производства и требования относительно плит с многочисленными пустотами закреплены в Стандарте – Серия ИЖ 568. Несмотря на наличие пустот, плиты не теряют своей прочности, но при этом имеют меньший вес, что позволяет обустраивать более легкие типы фундаментов. Все это существенно удешевляет строительство домов.
3.Обозначение маркировки изделий.
Производство многопустотных плит из железобетона ПБ 23-12-8 закреплено в Серии ИЖ 568. В основную маркировку входит указание тип изделия ПБ – плиты перекрытия (изготавливается методом непрерывного безопалубочного формования), в цифровую группу входят следующие обозначения:
1. 23-длина, измеряется в дм
2.12 -ширина, измеряется в дм;
3. 8 – расчетная нагрузка сверх собственной массы в кН/м2;
4. Собственный вес плиты исчисляется как нагрузка в 300 кгс/м2. Масса изделия составляет 848 ;
5. I и II класс по огнестойкости.
Масса, марка и дата выпуска плиты должны быть нанесены на торцевую грань изделия несмываемой черной краской, также могут быть указан товарный знак производителя. Габаритные размеры плиты – 2280х1195х220 , где указаны длина, ширина и высота. Геометрический объем изделия состовляет – 0,5994 , объем бетона на изготовление одного изделия – 0,339 .
4.Материалы для изготовления и характеристики.
Изготавливают многопустотные плиты ПБ 23-12-8 методом непрерывного формования, с помощью которого получают косые торцы. Для изделий берется высокомарочный бетон, с помощью которого готовое изделие получается очень прочным и долговечным. Марка по прочности на сжатие должна соответствовать М400 и класс по прочности – не менее чем В30.
За счет использования качественного сырья, как гравийный щебень и песок мелких фракций, готовые плиты ПБ приобретают свойства по морозостойкости и водонепроницаемости. Так как эксплуатация железобетонных плит производится в условиях низких температур, то марка по морозостойкости должна соответствовать уровню F150, водонепроницаемость – не менее W2. Данные параметры позволяют плитам ПБ 23-12-8 воспринимать как статические, так и динамические нагрузки от вышерасположенных конструкций.
Для повышения прочности ПБ 23-12-8 армируют стальными сетками из стальной проволоки с предварительным напряжением класса Вр-II. Армирование позволяет повысить стойкость плит к прогибам. Также в тело плиты внедряют монтажные петли. Все элементы должны быть обработаны антикоррозионными составами. Общий расход стали на армирование одного элемента составляет 20,3 кг.
5.Складирование и перевозка.
Погрузочно-разгрузочные работы должны производиться с использованием спецтехники при помощи траверс и страховочных приспособлений. Транспортируют плиты ПБ 23-12-8 с пустотами тягачами с прицепами. Хранение производится в стопках, все изделия должны быть уложены в горизонтальное положение, слои прокладывают деревянными досками толщиной не менее 30 мм.