3БСО 12-5 АVI (1.462.1-1/81)

3БСО 12-5 АVI (1.462.1-1/81)
О товаре
Цена по запросу
ОПИСАНИЕ
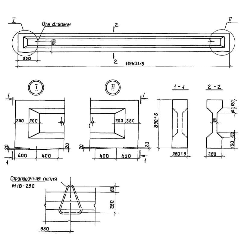
Балка железобетонная 3БСО 12-5 АVI (1.462.1-1/81) - это предварительно напряженное прямоугольное изделие с двутавровым сечением. Данные балки запроектированы по Серии 1.462.1-1/81 и являются усовершенствованной разработкой, так как обладают повышенным расчетным сопротивлением арматуры. Согласно Серии изготовления, строительные элементы делятся на четыре типа. Предназначены конструкции для применения в одноэтажных сооружениях как отапливаемых, так и с отсутствием отопления. При этом там должны быть двенадцати метровые пролеты и крыши ровные или со скатным уклоном. 3БСО 12-5 АVI (1.462.1-1/81) могут применяться в зданиях с сейсмической активностью до девяти баллов включительно. Допустимые степени газовых сред на строительных площадках: неагрессивная, средне- и слабоагрессивная. Период огнестойкости балок составляет 30 минут.
Расшифровка маркировки изделия
Балка 3БСО 12-5 АVI (1.462.1-1/81) имеет сложную маркировку, представленную в буквенно-числовой форме. Каждый символ имеет свое определенное значение, связанное с характеристиками и свойствами железобетонной конструкции. Так, если рассматривать расшифровку 3БСО 12-5 АVI (1.462.1-1/81), то можно увидеть следующее:
1. 3 - типоразмер балки;
2. БСО - тип конструкции (для односкатной крыши);
3. 12 - размер пролета в м;
4. 5 - несущая способность;
5. АVI - применяемая рабочая арматура.
Маркировка наносится на боковую часть готового изделия темной краской, стойкой к воздействиям окружающей среды. Здесь также может прописываться масса балки, товарный символ завода, дата выпуска.
Материалы и производство
Железобетонные балки 3БСО 12-5 АVI (1.462.1-1/81) изготавливают в заводских условиях, на основании Серии 1.462.1-1/81. Производство осуществляется в специальных стальных формах, которые в свою очередь, должны удовлетворять требованиям определенного регламента. Для производственного процесса за основу берется бетон класса прочности на сжатие не менее В50. Марки бетонной массы по морозостойкости и водонепроницаемости устанавливается автором проекта в индивидуальном порядке, и прописываются непосредственно в проектах.
Увеличение показателя прочности у будущего строительного элемента происходит в процессе армирования. Армирование балок предусмотрено с натяжением арматуры на упоры стенда или силовую форму. Применяемый класс арматурных изделий зависит от степени воздействия газовой среды. Проектное расположение арматурных частей фиксируется прокладками плотного цементно-песчаного раствора или с помощью пластмассовых фиксаторов. Натяжение арматуры происходит механическим способом. В стенке балок запроектированы два отверстия для строповки, они также могут заменяться замкнутыми монтажными петлями треугольной формы.
По итогу производства 3БСО 12-5 АVI (1.462.1-1/81) должны быть приняты техническим контролем предприятия поштучно. Балки, аттестованные по высшей категории качества, обозначают государственным знаком качества согласно ГОСТ 1.9-67.
Хранение и транспортировка
Балки складируются в рабочем положении на плотном выровненном основании, с опиранием на подкладки из сухой древесины. Данный инвентарь размещается в пределах опорных узлов. При складировании должна быть обеспечена возможность захвата и подъема каждой балки. Транспортирование 3БСО 12-5 АVI (1.462.1-1/81) необходимо производить в их рабочем положении, специализированным транспортом. Захват изделий краном при погрузочно-разгрузочных и монтажных работах осуществляется, за предназначенные для этой цели, строповочные отверстия.