2БСП 7,5-4 АIII

2БСП 7,5-4 АIII
О товаре
Цена по запросу
ОПИСАНИЕ
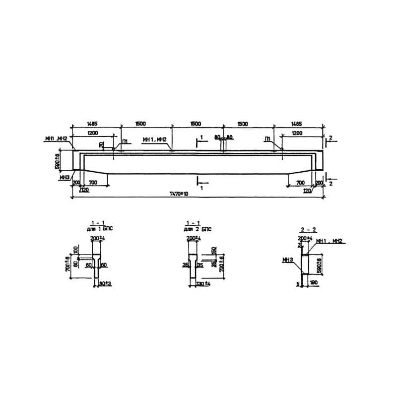
Балка 2БСП 7,5-4 АIII - представляет собой прямоугольную вытянутую конструкцию с поперечным тавровым сечением, которая отличается высокой прочностью. Предназначена она для чердачных перекрытий сельскохозяйственных производственных зданий и сооружений со стенами, выполненными из кирпича, с неагрессивной, слабо- и среднеагрессвной газовой средой и влажностью внутреннего воздуха не превышающей 85%. Нормативным документом изготовления предусмотрено два типа балок: с толщиной стенки 80 и 130 мм, которые отличаются между собой несущей способностью. Регламентировано их использовать в I-IV снеговых районах, с сейсмичностью не выше 6 баллов и температурой воздуха не ниже -50 градусов.
Расшифровка маркировки
Маркируются железобетонные балки согласно рабочим чертежам и имеют вид буквенных и цифровых шифров, разделяемых между собой дефисом. Из маркировки 2БСП 7,5-4 АIII можно узнать следующую информацию:
1. 2 - тип балки (толщина стенки 130 мм);
2. БСП - балка для чердачных перекрытий сельскохозяйственных зданий;
3. 7,5 - пролет (м);
4. 4 - индекс несущей способности;
5. АIII - класс рабочей арматуры.
Так же в конце маркировки может указываться индекс «п» указывающий на использование бетона с пониженной проницаемостью.
Марка изделия и завода-производителя, дата изготовления и вес должны быть нанесены несмываемой краской на торцевых гранях готовых балок, видимых при хранении.
Материалы и производство
Изготовление железобетонных балок 2БСП 7,5-4 АIII регламентировано в заводских условиях или оборудованных полигонах со строгим выполнением всех требований и стандартов, прописанных в Серии 1.849.1-5.93. За основу данных конструкций берется тяжелый бетон класса В25. В зависимости от степени агрессивности газовой среды, бетон принимается автором проекта с нормальной или пониженной проницаемостью в соответствии с указаниями ГОСТ 26633-91. Марки бетона по морозостойкости и водонепроницаемости напрямую зависят от режима эксплуатации и климатических условий в зоне строительства и прописываются в проектной документации в каждом конкретном случае.
Для увеличения несущей способности и трещиностойкости регламентировано армировать балки сварными сетками и каркасами, выполненными при помощи контактной точечной сварки. В качестве арматуры запроектированы стержневая сталь класса АIII и проволока периодического профиля ВрI. Так же для сопряжения с другими строительными конструкциями в балке предусмотрено наличие закладных элементов из стали АI, АIII, наружные поверхности которых должны предварительно быть зачищены от наплывов бетона и ржавых пятен и иметь слой антикоррозийного покрытия согласно СНиП 2.03.11-85.
Готовые балки принимаются по результатам входного, операционного и приемочного контроля, включающие в себя испытания на прочность, жесткость, раскрытие трещин, по показателям точности линейных параметров, положения арматурных элементов.
Транспортировка и хранение
Балки 2БСП 7,5-4 АIII, принятые отделом технического контроля завода-изготовителя, надлежит складировать в горизонтальном положении с обязательным использованием деревянных инвентарных прокладок. Подъем изделий допускается выполнять только при помощи траверс за монтажные петли, разгрузка со свободным падением и перетаскивание волоком запрещены.
Перевозка балок к месту монтажа должна осуществляться специальным автомобильным транспортом или железнодорожными платформами, оснащенными оборудованием для надежной фиксации конструкций в кузове транспорта.