2ПГУ 27/14-26

2ПГУ 27/14-26
О товаре
Цена по запросу
ОПИСАНИЕ
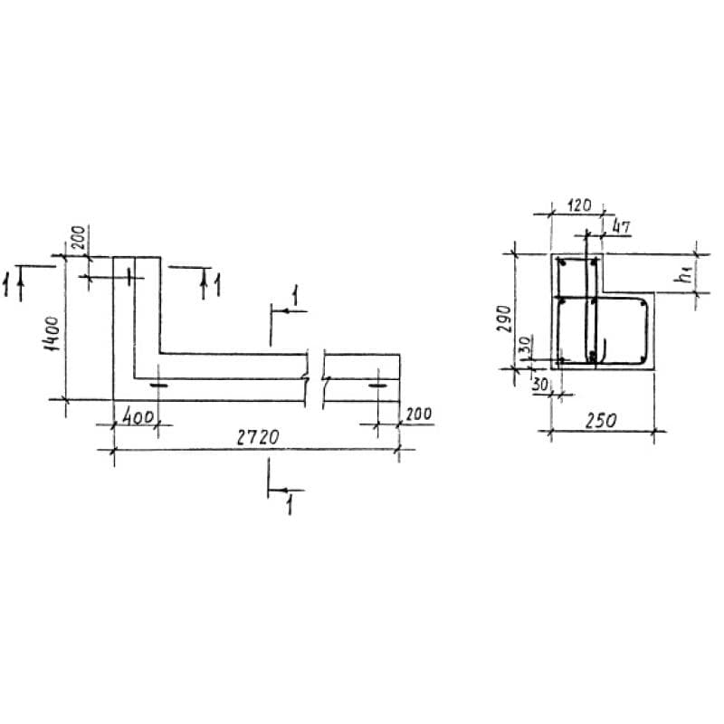
Перемычка угловая несущая 2ПГУ 27/14-26 - это универсальное железобетонное изделие, применяемое при возведении жилых и общественных зданий с кирпичными стенами. Данные конструкции предусмотрены, как балки с заделанными концами и ломаной в плане осью. Перемычки обладают высокой прочностью, они способны выдерживать значительные нагрузки, так как в процессе производства используется надежное проверенное сырье, которое неоднократно уже применялось и заслужило доверие производителя. Конструкции обычно используются в обычных климатических районах. Существует специальный нормативный документ, Серия 1.038.1-1, которая содержит подробную информацию не только о процессе производства данных деталей, но и так же представлены наглядно рабочие чертежи,
Расшифровка маркировки
Маркировочные знаки должны содержать все готовые железобетонные изделия. Обычно полная характеристика марки содержится в нормативном документе, в нашем случае, таким документом выступает Серия 1.038.1.1. На примере 2ПГУ 27/14-26 рассмотрим расшифровку каждой буквы и цифры:
1. 2 - тип поперечного сечения;
2. ПГУ - перемычка угловая;
3. 27 - индекс длинной стороны перемычки;
4. 14 - индекс короткой стороны перемычки;
5. 26 - несущая способность.
Марка наносится на боковую поверхность строительного изделия яркой несмываемой краской, которая устойчива к воде. В документах и на изделии должна быть так же указана дата выпуска, номер партии, вес конструкции, наименование завода производителя и штамп ОТК.
Материалы и производство
Серия 1.038.1-1 предусматривает ряд правил по производству перемычек угловых несущих 2ПГУ 27/14-26. В качестве надежной основы запроектирован бетон класса B15 и В20. Морозостойкость и водонепроницаемость бетона не указана конкретно, так как марка определяется на основании температурных условий зоны строительства. Чтобы конструкции обрели достаточно высокую прочность, они армируются пространственными каркасами с замкнутой поперечной арматурой, которые изготавливаются в кондукторах. Согласно Серии 1.038.1-1 и ГОСТ 5781-82 для арматурных сеток и каркасов выбрана горячекатаная сталь класса A-III и обыкновенная проволока класса Bp-I. Для быстрого и удобного монтажа, а так же для подъема элементов на высоту предусматриваются строповочные петли и отверстия. Детали проходят антикоррозионную обработку специальным раствором, который препятствует появлению ржавчины. Конечная прочность бетона должна составлять не менее 70% в летнее время и не менее 90% зимой. После того как изделия достигнут необходимую отпускную прочность, они готовятся к контрольным проверкам и испытаниям. Качество поверхностей, внешность, геометрические параметры должны соответствовать проектным чертежам. Те перемычки, что подтвердили свое качество, снабжаются паспортом качества, в котором указано используемое сырье, дата выпуска и должна стоять печать отдела технического контроля предприятия производителя.
Транспортировка и хранение
Складирование и транспортировку перемычек угловых несущих 2ПГУ 27/14-26 следует осуществлять, соблюдая все требования Серии 1.038.1-1. Изделия хранятся на специальных крытых территориях, где заранее должен быть хорошо подготовлен подьездной путь для автомобильного транспорта. Укладывают перемычки в штабеля высотой не более 2,5 метров на ровное основание с использованием деревянных подкладок. Погрузка и выгрузка производится с помощью специализированной техники. В транспорте детали следует надежно зафиксировать, избегая сдвигов изделий во время транспортировки.