1ПК 41-12-8 АIII с8а (1.141.1-31с)

tel3f19cfj5qjho
1ПК 41-12-8 АIII с8а (1.141.1-31с)

О товаре

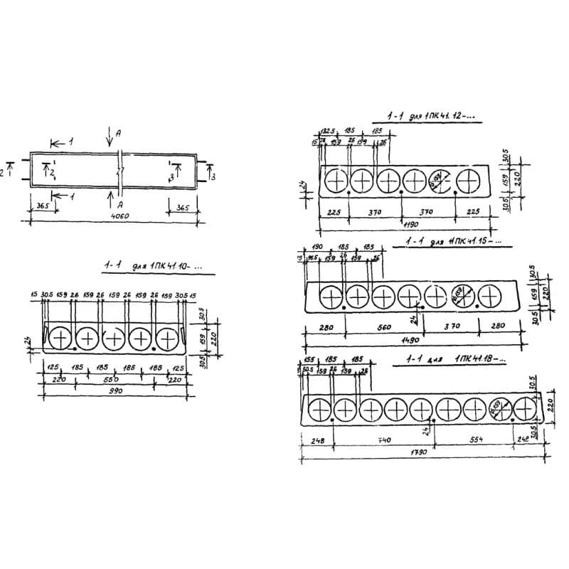
Длина:4060
Ширина:1190
Высота:220
Вес:1470
ГОСТ, Серия:-
Объем бетона:0,59 м3
Геометрический объем:1,0629 м3

Цена по запросу

ОПИСАНИЕ

Плита перекрытия 1ПК 41-12-8 АIII с8а (1.141.1-31с) представляет собой высокопрочную прямоугольную конструкцию, выполненную из тяжелого бетона и усиленную эффективным армированием. Особенность плиты состоит в наличии круглых пустот, проходящих по всей ее длине, которые предназначены для придания особой прочности изделию и уменьшения веса. Основная функция данных строительных элементов - формирование межэтажного пространства в жилых домах и общественных зданиях со стенами, выполненными из кирпича, крупных блоков или естественного камня. Серией изготовления 1.141.1-31с представлены многопустотные плиты для строительства в областях с неагрессивной средой с сейсмической активностью от 7 до 9 баллов включительно.

Плиты 1ПК 41-12-8 АIII с8а (1.141.1-31с) относятся к 3 категории трещиностойкости, в связи с этим регламентировано их использовать в сооружениях с центральным отоплением, нормально функционирующей вентиляцией и качественно проведенной гидроизоляцией в санузлах, душевых и ванных комнатах.

Расшифровка маркировки

Условное обозначение многопустотных плит состоит из нескольких числовых и буквенных групп, отображающих тип изделия, геометрические размеры, арматуру, а так же особые условия эксплуатации. Из маркировки 1ПК 41-12-8 АIII с8а (1.141.1-31с) можно узнать, что:

1. 1ПК - плита перекрытия многопустотная;

2. 41 - длина;

3. 12 - ширина;

4. 8 - нагрузка;

5. АIII - класс арматуры;

6. с8 - сейсмичность в районе строительства 8 баллов;

7. а - усиленные открытые торцы бетонными вкладышами.

Линейные параметры даны округленные до целого числа в дм.

На всей поставляемой железобетонной продукции должны проставляться маркировочные надписи, в которых указываются: марка конструкции, краткое наименование производителя, дата выпуска, печать ОТК.

Материалы и производство

При изготовлении плит перекрытия 1ПК 41-12-8 АIII с8а (1.141.1-31с) следует руководствоваться стандартами и требованиями Серии 3.006 КР-1. Номенклатурный список плит включает в себя изделия из тяжелого бетона с классами по прочности на сжатие В15, В25. Марка бетона по морозостойкости и водонепроницаемости назначается в соответствии со СНиП 2.03.01-84 с учетом эксплуатационных условий. Вкладыши для заделки торцов должны выполняться из такой же бетонной смеси, что и плита.

В зависимости от необходимых параметров несущей способности конструкций и технической оснащенности завода производителя, многопустотные плиты могут армироваться сетками из стали классов АIII, АII, ВрI, а так же предварительно напрягаемой стержневой арматурой классов АтV, АтIVс. Прочая арматура, входящая в состав таких строительных элементов, запроектирована из проволоки класса ВрI.

Готовые конструкции проходят приемочный контроль на основании проверок по показателям прочности, жесткости, раскрытию трещин. Нижние потолочные поверхности плит должны соответствовать категории А2. А фактические линейные параметры должны отвечать показателям 5 или 6 класса точности согласно ГОСТ 21779-82.

Транспортировка и хранение

Складирование многопустотных плит перекрытия 1ПК 41-12-8 АIII с8а (1.141.1-31с) требуется осуществлять в рабочем положении, уложенные в штабеля. Между рядами изделий надлежит устанавливать инвентарные прокладки, которые предотвращают от разрушения нижние плиты и обеспечивают штабелю устойчивость.

Погрузо-разгрузочные работы необходимо проводить специальным транспортом с помощью самобалансирующих траверс за четыре петли.

При перевозке плиты перекрытия должны быть надежно закреплены в кузове транспорта, для исключения возможного опрокидывания, смещения и трения.