2КО 8-60(72)-3

2КО 8-60(72)-3
О товаре
Цена по запросу
ОПИСАНИЕ
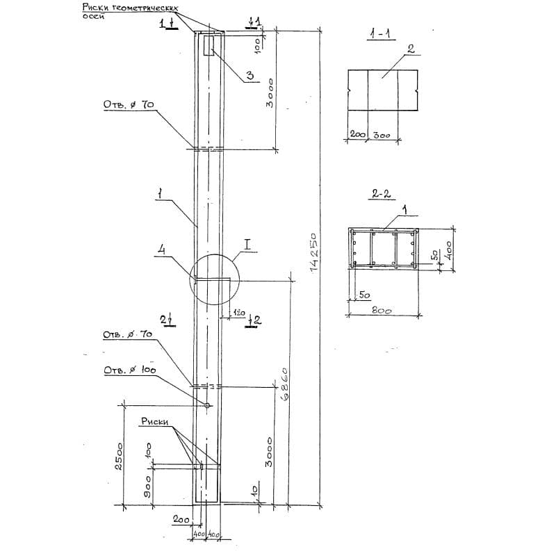
Железобетонная колонна 2КО 8-60(72)-3 - это унифицированное строительное изделие, широко применяемое при возведении бескрановых зданий с высотой этажа 10.8, 12.0, 13.2 и 14.4 м. Визуально конструкция представлена прямоугольной формы с наличием строповочных петель, предназначенных для удобства монтажа. Имеются выпуски арматуры, которые необходимы для сопряжения с другими элементами. Колонны изготавливаются из прочных проверенных материалов, поэтому надежность, долговечность зданию будет обеспечена. Предел огнестойкости конструкций составляет не менее 4 часов. Чтобы наглядно увидеть внешний вид данной строительной конструкции следует ознакомиться с нормативным документом Серия 1.420.1-32.
Расшифровка маркировки
Строительные изделия обладают индивидуальной маркой, которую наносят на боковую сторону каждого элемента влагоустойчивой масляной краской. Согласно ГОСТ 23009-78 и Серии 1420.1-32, маркировочная надпись 2КО 8-60(72)-3 имеет следующее значение:
1. 2К - тип изделия - двухэтажная колонна;
2. О - крайняя;
3. 8 - сечение;
4. 60(72) - для высот верхнего этажа;
5. 3 - тип армирования.
Маркировочные обозначения наносятся с помощью штампов, либо трафаретов, с применением влагоустойчивой масляной краски. На одной из боковых сторон наносится штамп ОТК, а так же дата выпуска, логотип предприятия и вес конструкции в килограммах.
Материалы и производство
Железобетонные колонны 2КО 8-60(72)-3 выпускаются в стальных формах в полном соблюдении всех требований Серии 1420.1-32. В данном документе прописаны основные этапы производства, а так же содержаться рабочие чертежи. Конструкции запроектированы из бетона класса B15-B30. Прочность изделиям придает качественное армирование. Рабочая арматура принята из горячекатаной арматурной стали класса A-III по ГОСТ 5781-82. Что касается поперечной арматуры, то она запроектирована из горячекатаной гладкой стали класса A-I и проволоки класса Bp-I. В теле железобетонных изделий предусматриваются строповочные отверстия, либо монтажные петли, которые облегчают процесс установки. Марка применяемой арматуры зависит от климатических особенностей района строительства, от конкретного проекта. Все элементы должны быть обработаны специальным раствором от коррозии. Отпускная прочность бетона должна составлять не менее 70% от проектной марки. Приемка готовой продукции осуществляется партиями согласно ГОСТ 13015.1-81 и в соответствии с рабочими чертежами Серии 1429.1-32. Внимательно проверяют качество поверхности изделий, она должна быть ровной, гладкой, без трещин и вмятин. Железобетонные конструкции, которые полностью соответствуют всем заявленным требованиям на прочность, трещиностьйкость, получают технический паспорт, в котором указана информация о сырье и о заводе изготовителе.
Транспортировка и хранение
Железобетонные колонны 2КО 8-60(72)-3 хранят в горизонтальном положении в штабелях высотой не более двух метров с применением деревянных подкладок высотой не менее 40 мм. Строительные изделия с браком должны храниться отдельно. Транспортировка осуществляется, как на автомобильном транспорте, так и на железнодорожных платформах с применением специального крепежного оборудования, чтобы избежать различных повреждений во время движения транспорта. Чтобы погрузочно-разгрузочные работы проходили в ускоренном режиме, заранее следует подготовить подъездной путь. Все манипуляции с колоннами должны проводиться с особой осторожностью и с обязательным соблюдением правил техники безопасности согласно Серии 1.420.1-32.