2ПБ 21-3 п

s902fhesp6b8kia
2ПБ 21-3 п
2ПБ 21-3 п
2ПБ 21-3 п
2ПБ 21-3 п
2ПБ 21-3 п

О товаре

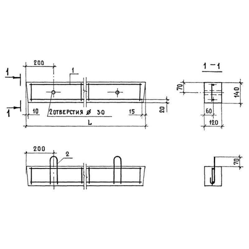
Длина:2070
Ширина:120
Высота:140
Вес:88
ГОСТ, Серия:-
Объем бетона:0,035 м3
Геометрический объем:0,0348 м3

Цена по запросу

ОПИСАНИЕ

Перемычки брусковые 2ПБ 21-3 п являютяся специальными элементами для перекрытия в жилых зданий или технических сооружений из кирпича различных проемов. Благодаря 2ПБ 21-3 п в такие проемы можно вставлять двери и окна без последствий обрушения конструкции. Железобетонные бруски используют при обустройстве ненесущих стен с целью создания надежных и долговечных конструкций.

Железобетонные элементы 2ПБ 21-3 п имеют специальные монтажные петли, что существенно облегчает их монтаж на объект. Прочность сооружения достигается путем воспринятия основных нагрузок на перемычки от вышерасположенных стен и прочих элементов, гарантируя тем самым надежность всего строения. Стоит отметить, что это абсолютно негорючие и экологически чистые изделия, поэтому применение в жилых домах полностью безопасно и экономически оправдано.

1.Варианты написания маркировки.

Данные железобетонные брусковые перемычки 2ПБ 21-3 п маркируют согласно Серии 1.038.1-1, согласно которой указывают порядковый номер группы, тип изделия и его размерные ряды. Марка может быть написана разными вариантами:

1. 2ПБ 21-3;

2. 2ПБ 21-3 п.

2.Основная сфера применения.

Брусковые перемычки 2ПБ 21-3 п применяют в гражданском и административном строительстве при обустройстве оконных и дверных проемов размером от 1,2 до 2, 8 метров. Стены из кирпича для данной марки перемычек должны иметь толщину не более 65 см. Перемычка рассчитана на то, чтобы воспринимать вес от вышерасположенных стен, кровельной конструкции, а также на нагрузки от собственного веса.

Железобетонные изделия рассчитываются также на работу под статическими и динамическими нагрузками при изгибающих и сжимающих деформациях. На перемычки 2ПБ 21-3 п опирание перекрытий не предусмотрено, при этом расчетная нагрузка составляет 400 кгс/м (данная нагрузка не рассчитана на работу в конструкции несущих стен). Таким образом, брусковая перемычка – это основная опора, используемая для укрепления стен в оконных и дверных проемах. При укладке брусков все швы заполняют цементным раствором.

Железобетонные элементы 2ПБ 21-3 п могут быть использованы в различных агрессивных средах. За счет того, что данные изделия изготовлены из армированного железобетона, их можно применять в условиях воздействия агрессивной среды, как сильный ветер, низкие температуры, а также с расчетной сейсмоактивностью до 7 баллов по шкале Рихтера.

3.Обозначение маркировки изделий.

Условная маркировка брусковой перемычки 2ПБ 21-3 п производится согласно Серии 1. 038.1-1 и включают обозначение, по которому можно определить тип изделия и его основные размерные группы, а также технические характеристики и основное предназначение.

Расшифровка 2ПБ 21-3 п включает в себя:

1. 2 – порядковый номер поперечного сечения бруска;

2. ПБ – перемычка брусковая;

3. 21 – размерная группа, расчетная длина, в дм.;

4. 3 – расчетная нагрузка в кн/м. В маркировке указывается с округлением до целого числа, для удобства написания;

5. Дополнительно могут быть указаны следующие параметры: "П" – наличие строповочных петель в изделии; "А" – анкерные выпуски, для крепления балконов; геометрический объем одного изделия – 0,0348 , объем бетона- 0,035 .

Перемычки 2ПБ 21-3 п имеет следующие габаритные размеры – 2070х120х140 , где соответственно указаны длина или номинальная высота изделия, ширина и высота (сечение прямоугольное). Маркировку наносят на боковые грани специальной краской и дополнительно указывают дату изготовления партии и массу изделия (88).

4.Материалы для изготовления и основные характеристики.

Основными материалами для изготовления брусковых перемычек 2ПБ 21-3 п являются тяжелые бетоны. За счет высоких марок достигается большая прочность готовых изделий. Так, используют бетон марки М200 с классом по прочности на сжатие не менее чем В15. Данные материалы характеризуются также высокой морозостойкостью (используются марки на 150 циклов замораживания-размораживания) и определенной водонепроницаемостью – марка W2, изделие воздействию водной среды, как правило, не подвергается. Плотность такого бетона составляет порядка 2200-2500 кг/м3. Бетонная брусковая перемычка относится к разряду несгораемых конструкций, которые имеют предел огнестойкости в 1 час.

Армируют железобетонные бруски 2ПБ 21-3 п горячекатаной или предварительно напряженной арматурой класса АIII диаметром 12 мм. Для этого изготавливается стальной каркас тип КР22 контактно-точечной сваркой. Это позволяет достичь примерно 70% нормируемой прочности бетона для изготовления железобетонных перемычек. Для удобства монтажа бруски имеют закладные детали или строповочные отверстия. Все элементы проходят антикоррозионную обработку.

5.Хранение и транспортировка.

Транспортировка перемычек 2ПБ 21-3 п производится при помощи спецтранспорта в контейнерах в уложенном горизонтальном положении. Во избежание растрескивания брусков, их прокладывают деревянными досками. Хранят изделия в штабелях высотой до 2,5 метров. Прокладочный материал укладывается по концам перемычек.