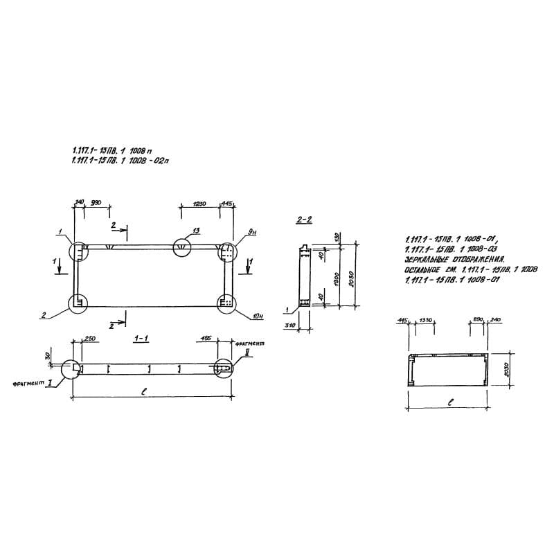
1НЦ 65-20-31-150 лпв-4,1

qfxuc3fd7symi72
1НЦ 65-20-31-150 лпв-4,1

О товаре

Длина:6505
Ширина:310
Высота:2030
Вес:6180
ГОСТ, Серия:-
Объем бетона:2,47 м3
Геометрический объем:4,0936 м3

Цена по запросу

ОПИСАНИЕ

Панели наружных цокольных стен 1НЦ 65-20-31-150 лпв-4,1 унифицированные изделия прямоугольной формы. В углах присутствуют специальные выпуски, служащие для сопряжения панелей при монтаже. Максимально допустимые размеры не должны превышать 7,2 м на 2,03 м. Характерной особенностью ряда панелей, выпускаемых по Серии 1.117.1-15пв, является наличие проемов для окон жилых и подвальных помещений.

Легкобетонные однослойные панели широко применяются для возведения крупнопанельных домов 5-9 этажей в высоту, базируемых на ленточном фундаменте. Шаг поперечных стен строящихся объектов не должен превышать 3,0 и 3,6 м, высота подполья не более 1,8 м. Благодаря конструктивным особенностям изделия пригодны для использования в неравномерно сжимаемых грунтах, подрабатываемых территориях и посадочных грунтах.

Расшифровка маркировки

Для упрощения сортировки и поиска на лицевой части высокопрочных цокольных панелей наносится маркировка. В расшифрованном виде 1НЦ 65-20-31-150 лпв-4,1 имеет следующее значение:

1. 1НЦ цельная однослойная стеновая панель;

2. 65 длина;

3. 20 высота;

4. 31 толщина;

5. 150 марка бетона по прочности на сжатие;

6. л производится из легкого бетона;

7. пвдля сложных условий строительства;

8. 4,1 тип примыкания к другим строительным конструкциям.

Марка проставляется на самом изделии несмываемой краской и в спецификациях к готовой продукции.

Материалы и производство

Изготовление осуществляется фасадной стороной вниз. Этапы подробно прописаны в Серии 1.117.1-15пв. В качестве армирующего каркаса применяются сварные сетки, заранее объединяемые в блоки на специальных кондукторах. Сварные блоки должны строго соответствовать качеству по ГОСТ 10922-75.

Бетонная смесь для стеновых панелей 1НЦ 65-20-31-150 лпв-4,1 отличается плотной структурой. Межзерновая пористость заполнителя не более 3%. Базисной маркой выступает М150 по прочности на сжатие. Допускается использование аглопорита, шлаковой пемзы и керамзита. Минимальная марка по морозостойкости F35.

Соприкасающиеся с грунтом элементы должны в обязательном порядке обрабатываться гидроизоляционным слоем. Верхние панели с противодождевым барьером в виде гребня необходимо обрабатывать специальной мастикой. Фасадная сторона может подвергаться декоративной отделке или прокрашиваться пигментными добавками на ранней стадии производства легкобетонных цокольных панелей 1НЦ 65-20-31-150 лпв-4,1.

Соответствие точным геометрическим параметрам должно проверятся по ГОСТ 21780-83. После прохождения контрольных испытаний на партию выписывается документация с подробным указанием физических характеристик и подтверждением соответствия материалов требованиям нормативов.

Транспортировка и хранение

Легкобетонные цокольные панели 1НЦ 65-20-31-150 лпв-4,1 требуют соблюдения правил хранения и транспортировки, соответствующих ГОСТ 11024-84. На складских площадках изделия размещаются в кассетах, положение которых должно быть вертикальным. Допускается хранение в наклоне. Под низ каждого изделия необходимо прокладывать деревянную опору, толщиной минимум 3 см.

В период погрузочно-разгрузочных работ важно использовать траверсы, позволяющие обеспечить вертикальное положение цокольных панелей. Страповка должна осуществляться исключительно за петли, находящиеся в верхней части конструкции.

В процессе транспортировки и хранения важно избегать повреждений защитного слоя тепло- и гидроизоляции. Целостность поверхностей гарантирует продолжительный эксплуатационный срок элемента.