1ЛП 30-22-4 ЛШ (ГОСТ 9818-2015)

1ЛП 30-22-4 ЛШ (ГОСТ 9818-2015)
О товаре
Цена по запросу
ОПИСАНИЕ
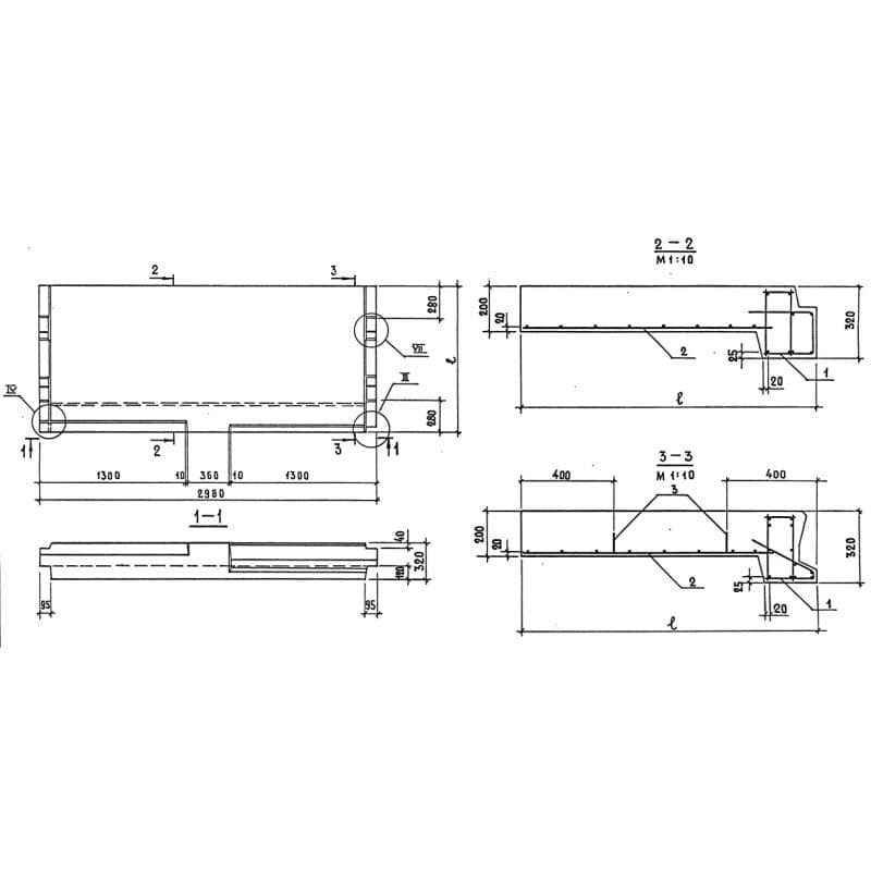
Лестничные площадки плоские 1ЛП 30-22-4 ЛШ (ГОСТ 9818-2015) – универсальные строительные элементы, конструктивно представлены в виде плоской прямоугольной плиты. Площадки служат для формирования лестничных пролетов, они располагаются, как правило, на разных уровнях перпендикулярно между собой. Элементы имеют специальные выступы, предназначенные для опирания на них маршей. Данный вид изделий является неотъемлемым элементом при строительстве кирпичных и панельных многоэтажных жилых и общественных зданий. Конструкции применяются совместно с маршами и другими элементами лестниц. Они рассчитаны на значительные нагрузки до 480 кг/м2. Благодаря своей прочности, надежности, а также довольно легкой установке конструкции, изделия пользуются огромной популярностью в строительной сфере.
Расшифровка маркировки
На поверхность каждого готового железобетонного изделия наносятся маркировочные обозначения. Согласно ГОСТ 9818-2015 символы 1ЛП 30-22-4 ЛШ (ГОСТ 9818-2015) имеют следующую расшифровку:
1. 1 – тип площадки, плоская;
2. ЛП – лестничная площадка;
3. 30 – длина;
4. 22 – ширина;
5. 4 – нагрузка.
Буквенные индексы означают: «Л» – легкий бетон; «К» – наличие консолей; «Ш» – шлифованная бетонная поверхность. Дополнительно указывается дата выпуска, номер партии, масса элемента, информация о производителе, а так же штамп отдела технического контроля. Для нанесения маркировочных знаков используются черная влагоустойчивая краска, штампы и трафареты.
Основные характеристики и изготовление
Процесс производства лестничных площадок регламентируется ГОСТ 9818-2015. Железобетонные изделия изготавливаются методом вибропрессования. На каждом этапе производства осуществляется строгий контроль за качеством используемого сырья. В качестве основного материала выступает бетон марки М200 по прочности на сжатие. Марки бетона по морозостойкости и водонепроницаемости назначаются индивидуально под каждый новый проект исходя из климатических особенностей района эксплуатации. Все элементы подвергаются армированию, что придают изделиям значительную прочность. Применяют стержневую арматуру из стали A-I, A-III, а также дополнительно используют обыкновенную прочную проволоку Bp-I. Сварные каркасы и сетки должны строго соответствовать всем требованиям, которые указаны в СН 393-69. Изделия обязательно должны содержать в теле монтажные петли, для удобства монтажа. Все металлические элементы проходят антикоррозийную защиту. Принимают продукцию партиями, все изделия должны быть изготовлены по технологии вибропрессования, из материалов одного качества. Они должны соответствовать не только стандартам по прочности, жесткости и устойчивости к агрессивным внешним воздействиям, но также и требованиям к аккуратной наружности, все геометрические характеристики сравнивают с рабочими чертежами по ГОСТ 9818-2015. Строительные изделия, которые прошли все контрольные испытания, получают необходимые документы, подтверждающие их готовность к отпуску.
Транспортировка и хранение
Лестничные площадки 1ЛП 30-22-4 ЛШ (ГОСТ 9818-2015) хранят на оборудованных складах. Железобетонные изделия укладывают в штабеля высотой не более 2,5 метра, с применением деревянных подкладок. Все элементы должны иметь маркировочные надписи, которые отчетливо просматриваются. Перевозят изделия на специальном грузовом транспорте, так же транспортировка допустима на железнодорожном транспорте. Строительные конструкции должны быть надежно закреплены, чтобы избежать повреждения. Погрузочно-разгрузочные работы следует осуществлять с помощью монтажных петель. Сбрасывать изделия строго запрещено. На всех этапах работы с лестничными площадками, обязательно соблюдать технику безопасности.