2ПСТ 6-18-3,5 л

2ПСТ 6-18-3,5 л
О товаре
Цена по запросу
ОПИСАНИЕ
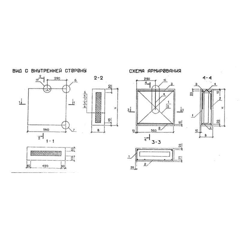
Панель стеновая трехслойная 2ПСТ 6-18-3,5 л – это железобетонная конструкция, имеющая эффективный утеплитель на жестких связях. Данная панель в сплошном разрезе имеет три слоя: снаружи и внутри они выполнены из легкого бетона с армированием, внутренний слой является утеплителем. Последний слой представлен из минеральной ваты с синтетическим связующем. Слияние слоев реализуется благодаря жестким бетонным ребрам. Толщина слоев может изменяться для достижения лучших показателей теплостойкости. Трехслойные панели могут использоваться непосредственно в качестве самонесущих стен и навесных стен. Данные панели нашли свое применение в быстром и эффективном строительстве, трехслойные панели применяются для быстровозводимых зданий, как жилого, так и административного значения.
Расшифровка маркировки
Марка панели трехслойной содержит основные характеристики, содержащиеся в цифровых и буквенных индекса, образующие три группы обозначений.
1. 2ПСТ- тип конструкции, панель простеночная;
2 .6-длина;
3. 18- высота;
4. 3,5-ширина;
5. Л-легкий бетон;
Информация по маркировке, массе, дате выпуска прописывается специальной несмываемой краской на торцевой не лицевой грани.
Материалы и производство
Производство панелей трехслойных прописано в Серии 1.232.1-7. Наружный и внутренний слои железобетонной панели изготавливаются из легкого бетона на пористых заполнителях марки бетона М150, с морозостойкостью F25. Армирование данных слоев регламентировано в виде плоских и гнутых арматурных сеток. Армирование ребер- в виде плоских каркасов. В качестве арматуры для трехслойных панелей выступает стержневая арматура класса А III и арматурная проволока класса Вр-I. Все слои панели при изготовлении «сливаются» в одно целое при помощи специальных диагональных стяжек, пропущенных через особый теплоизоляционный слой. Назначение соединительных связей в трехслойных панелях- это непосредственно обеспечение целостности панели при изготовлении, хранении, транспортировке, монтаже и эксплуатации. Согласно серии панель запроектирована с наружным защитно-декоративным слоем и отделочным внутренним слоем. Качество готовой панели должно соответствовать требованиям ГОСТ 13015.0-83. Основные преимущества, которыми должна отличаться трехслойная стеновая панель:
- Стойкость к образованию трещин;
- Прочность;
- Климатическая стойкость;
- Хорошая звуко- и теплостойкость;
Изделие в обязательном порядке проходит тестирование на наличие всех вышеперечисленных свойств.
Хранение и транспортировка
Хранить стеновые трехслойные панели, выполненные из легкого бетона, необходимо непосредственно в определенном положении (вертикально, в наклоне) в специальных кассетах. транспортировать также в рабочем (вертикальном) положении на железнодорожных платформах, на полуприцепах-панелевозах кассетного и платформенного типа с небольшим наклоном. Необходимо исключать взаимодействие лицевой поверхности панелей с кузовом транспортного средства. Каждая панель устанавливается на деревянные прокладки высотой не менее 3-х см. При одновременной транспортировке нескольких панелей с облицованным наружным слоем между ними должны устанавливаться прокладки толщиной не менее 70 мм, исключающие соприкосновение панелей друг с другом. При соблюдении всех перечисленных правил транспортирования и хранения, обеспечивается долговечность конструкции и соответствие правилам техники безопасности.