2ВДП 26-36

2ВДП 26-36
О товаре
Цена по запросу
ОПИСАНИЕ
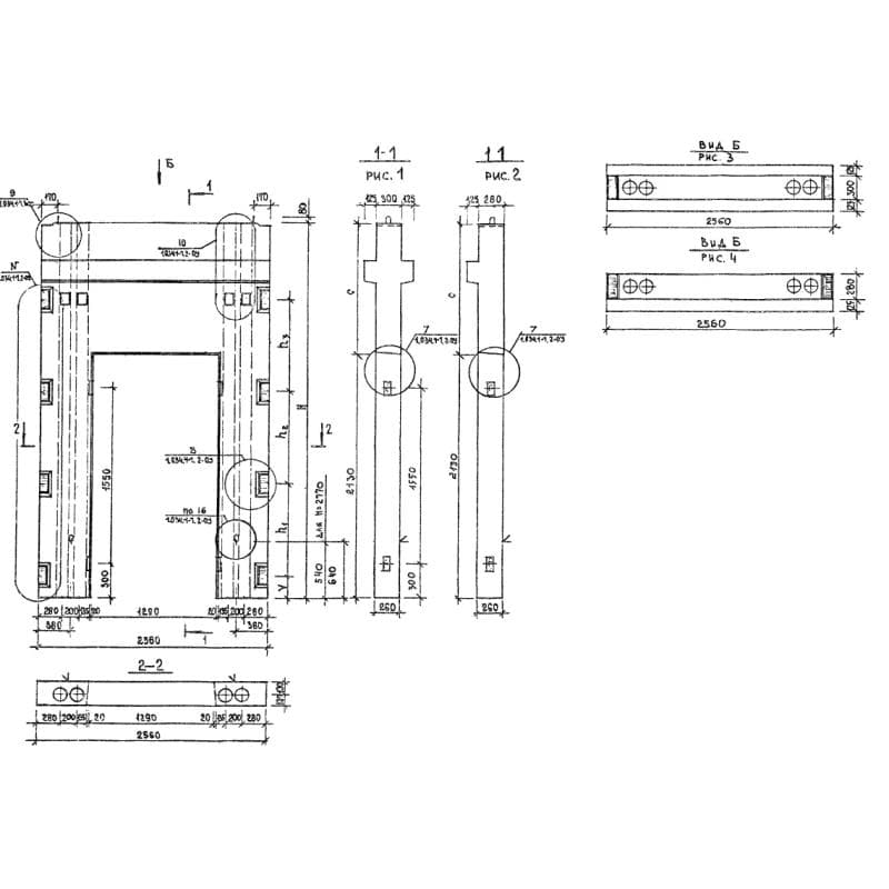
Вентиляционные блоки – диафрагмы жесткости 2ВДП 26-36 – высокопрочные железобетонные изделия прямоугольной формы. Внутри конструкции проходят по всей длине сквозные пустоты диаметром 159 мм. Запроектированные по Серии 1.034.1-1 блоки могут иметь дополнительные конструктивные особенности: консоли (одну или две), расположенных в верхней части и проемы, предназначенные для дверей.
Индустриальные вентиляционные блоки – диафрагмы жесткости применяются при строительстве многоэтажных общественных зданий, производственных комплексов и вспомогательных сооружений промышленных предприятий. Максимально допустимая высота здания до 12 этажей. Изделия обеспечивают вентиляцию помещений, препятствую накоплению влажности и развитию плесени. Кроме того они придают общему каркасу здания дополнительную жесткость и увеличивают несущую способность. Конструктивные особенности позволяют использовать элементы в качестве стеновых элементов, а наличие консолей дает возможность опирать плиты перекрытий на изделия без необходимости использования других дополнительных конструкций. Элементы с проемами устанавливаются в межкомнатных стенах и позволяют обозначить месторасположения дверного проема. Изделия обладают высокой прочностью и долговечностью. Конструкции разрабатывались с учетом требований СНиП II-21-75. Все изделия оборудованы нишами для приточной или вытяжной вентиляции.
Расшифровка маркировки
Маркировочные обозначения наносятся на поверхность железобетонных конструкций для упрощения поиска и подбора необходимых по типовому проекту элементов. Знаки состоят из цифр и букв, содержащих ключевые характеристики элементов. Совокупность символов 2ВДП 26-36 имеет расшифровку:
1. 2 - количество консолей (1-одна; 2-две);
2. ВДП – тип конструкции – вентиляционный блок – диафрагма жесткости с проемом;
3. 26 – длина;
4. 36 – высота.
В передней части маркировочного обозначения может прописываться цифровой индекс, указывающий на число консолей (1 – одна, 2 – две). При наличии в буквенном обозначении индекса «П», подразумевается наличие проема в теле изделия.
Материалы и производство
Процесс производства вентиляционных блоков – диафрагм жесткости 2ВДП 26-36 прописан в Серии 1.034.1-1. По условиям документа изготовление изделий следует осуществлять из тяжелого бетона марки М300 по прочности на сжатие. Водонепроницаемость и морозостойкость необходимо подбирать по конкретным эксплуатационным условиям, прописанным в типовом проекте.
Для армирования изделий используется стержневая сталь класса AIII по ГОСТ 5781-82 и холоднотянутая проволока класса Bp-I по ГОСТ 6727-80. Сбор сеток осуществляется контактной точечной сваркой. Для производства монтажных петель используется гладкая сталь класса AI и Ac-II марки ВСт3сп по ГОСТ 380-71 и марки 10ГТ. Если монтаж изделий должен производиться при температуре -40, то нельзя использовать сталь марки ВСт3пс2. Обязательна антикоррозионная обработка металлических компонентов.
Предел огнестойкости конструкций не менее 2,5 часа. К отгрузке потребителю допускаются только прошедшие приемо-сдаточные испытания конструкции.
Транспортировка и хранение
Складирование и транспортировка элементов должны осуществляться в вертикальном положении в специальных кассетах. Вентиляционные блоки – диафрагмы жесткости допускается укладывать горизонтально при отсутствии консолей с обязательным прокладыванием между рядами изолирующих материалов на расстоянии 500 мм от торцевых сторон конструкции. Максимально допустимая высота штабеля не должна превышать 2,5 м.