2ЛП 25-16-4 кК (ГОСТ 9818-2015)

2ЛП 25-16-4 кК (ГОСТ 9818-2015)
О товаре
Цена по запросу
ОПИСАНИЕ
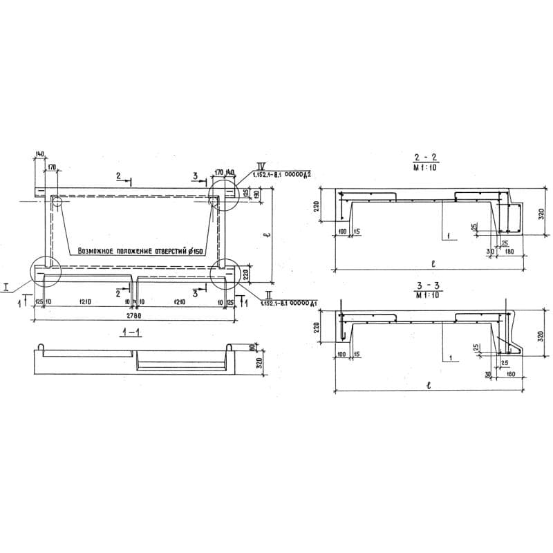
Лестничные площадки ребристые 2ЛП 25-16-4 кК (ГОСТ 9818-2015) – строительные материалы, запроектированные из прочного тяжелого бетона, имеющие прямоугольную форму с углублениями, служащими для сопряжения элементов с другими лестничными конструкциями. Предназначены для формирования пролетов на лестничных клетках из маршей ЛМ без фризовых ступеней, также допускается наличие отверстий под мусоропровод. Наличие консоли у конструкции позволяет ей плотно прилегать к стене сооружения. Железобетонные элементы используются при строительстве кирпичных, панельных многоэтажных жилых зданий, сооружений гражданского и общественного назначения. Лестные площадки данного вида обладают отличной выносливостью, они выдерживают значительные нагрузки, так как при их производстве используются проверенные материалы высочайшего качества.
Расшифровка маркировки
Всем без исключения строительным элементам наносятся специальные маркировочные надписи, которые позволяют отлично ориентироваться на складе и подбирать необходимую железобетонную продукцию. Маркировочные обозначения, при помощи трафарета, штампа и несмываемой влагоустойчивой краски наносят на каждое изделие. Маркировка 2ЛП 25-16-4 кК (ГОСТ 9818-2015) расшифровывается на основании ГОСТ 9818-2015 где:
1. 2 – ребристая;
2. ЛП – лестничная площадка;
3. 25 – длина;
4. 16 – ширина;
5. 4 – нагрузка;
6. к – наличие консолей.
Дополнительные буквенные индексы означают: «Л» – легкий бетон; «К» – отделка керамической плиткой; «Ш» – шлифованная бетонная поверхность; «м» – наличие мусоропровода.
Маркировочные символы должны долгое время сохраняться на изделии и быть устойчивы к воздействию температурных перепадов и атмосферных осадков. Указывают дату выпуска, номер партии, логотип предприятия, массу и штамп ОТК.
Основные характеристики и изготовление
Железобетонные изделия производятся в соответствии с требованиями ГОСТ 9818-2015, регламентирующий порядок изготовления и входящее в состав сырье. В качестве основного прочного материала используется тяжелый бетон марки М200 по прочности на сжатие. Марка водонепроницаемость и морозостойкость подбираются исходя из климатических особенностей района строительства. Для изготовления арматурных каркасов и сеток запроектирована сталь класса AIII, а так же применяется проволока класса Bp-I. Марка арматурной стали для производства закладных деталей и монтажных петель подбирается исходя из расчетной температуры монтажа железобетонных изделий. В теле конструкций запроектированы четыре монтажные петли. Все металлические элементы должны в обязательном порядке иметь антикоррозийную защиту. Важным этапом являются контрольные проверочные испытания. Их проходят образцы из каждой партии в соответствии с рекомендациями ГОСТ 9818-2015. На лестничные площадки, прошедшие контроль, заводом производителем железобетонных конструкций выдается соответствующая документация, подтверждающая готовность изделий к отпуску и качественные показатели.
Транспортировка и хранение
Складирование и транспортировка лестничных площадок ребристых 2ЛП 25-16-4 кК (ГОСТ 9818-2015) осуществляется в горизонтальном положении. Изделия укладывают в штабеля, высота штабелей не должна превышать двух метров. Между рядами прокладывают деревянные подкладки, которые защищают элементы от трения. Погрузочно-разгрузочный комплекс работ следует осуществлять с применением специализированной техники, которая оснащена специальными крепежными механизмами. Лестничные площадки необходимо надежно закрепить. Подъем необходимо производить за монтажные петли. Подъездной путь должен быть хорошо оборудован. Запрещается навал, сброс железобетонных изделий при погрузочно-разгрузочных работах. Очень важно соблюдать правила техники безопасности и аккуратность, чтобы сохранить целостность всего строительного материала.