1ПВ 12-1 АтVт-14 (1.465.1-3/80)

dbdoq9nbg64k98y
1ПВ 12-1 АтVт-14 (1.465.1-3/80)

О товаре

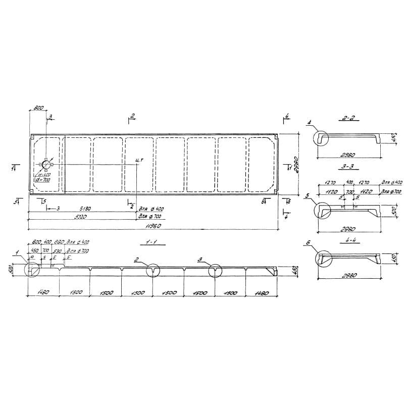
Длина:11960
Ширина:2980
Высота:520
Вес:7400
ГОСТ, Серия:-
Объем бетона:2,95 м3
Геометрический объем:18,5332 м3

Цена по запросу

ОПИСАНИЕ

Плита ребристая 1ПВ 12-1 АтVт-14 (1.465.1-3/80) - это высокопрочное изделие, созданное путем сочетания бетона и напрягаемой арматуры в единый монолит. Отличительной особенностью конструкции является наличие выступающих над поверхностью плиты поперечных и продольных ребер жесткости, благодаря которым изделие способно выдерживать колоссальные нагрузки, не изменяя при этом своего вида. Также между ребрами строительного элемента имеются плоские полки. Согласно регламенту изготовления изделий Серии 1.465.1-3/80, некоторые плиты, входящие в её номенклатурный перечень, могут иметь отверстия, которые используются для пропуска вентиляционного оборудования, установки зенитных фонарей или для обустройства легкосбрасываемой кровли. Основным предназначением данных конструкций является создания высоконадежного перекрытия. Используется изделие для одноэтажных отапливаемых и неотапливаемых зданий, с различными воздействиями газовых сред, в районах с температурой наружного воздуха в зимнее время до -40 градусов по Цельсию и с сейсмической активностью до 8 баллов.

Расшифровка маркировки

Основные характеристики железобетонного изделия, а также его габариты, содержаться в буквенно-числовой марке, в кратком сжатом виде. Чтение маркировки 1ПВ 12-1 АтVт-14 (1.465.1-3/80) позволяет узнать следующую информацию:

1. 1 - типоразмер;

2. ПВ - тип конструкции (с проемом в полке для пропуска вентиляционного оборудования);

3. 12 - длина в метрах;

4. 1 - нагрузка;

5. АтV - класс арматуры (напрягаемой);

6. т - бетон тяжелый;

7. 14 - диаметр отверстия в дециметрах.

При помощи штампа или трафарета контрастно водостойкой краской на наружную грань торцевого ребра строительного элемента наносится следующая информация: штамп ОТК, дата выпуска, масса в тоннах, товарный символ предприятия-изготовителя, и непосредственно, сама маркировка.

Материалы и производство

Основным нормативом, в котором закреплены требования для изготовления ребристых плит, является Серия 1.465.1-3/80. Производство 1ПВ 12-1 АтVт-14 (1.465.1-3/80) осуществляется в стальных формах, по стендовой или агрегатно-поточной технологии. Бетон, который может использоваться для изготовления плит данного регламента - тяжелый, марок М300-М600 или на пористых заполнителях (керамзитобетона, шлакопемзобетона) марок М250-М400. Марка бетонной смеси по водонепроницаемости назначается в диапазоне W4-W6. Выбор материала происходит с учетом последующих эксплуатационных условий.

Усиление физических параметров бетона в будущей строительной конструкции происходит благодаря дополнению его сталью. Так армирование ребристых плит происходит с помощью напрягаемой и ненапрягаемой арматуры (все классы стали прописаны в серии изготовления). Стальные стержни соединяются контактной точечной сваркой и образуют арматурные каркасы и сетки, которые и составляют внутренний «скелет» плиты. Дополнительно в строительных конструкциях предусмотрены закладные детали для крепления ребристых изделий к несущим конструкциям. Монтажные петли, входящие в состав опорных закладных, изготавливаются из гладкой арматуры класса А-I марок ВСт3пс2 и ВСт3сп2. Открытые поверхности закладных элементов огрунтовываются в один слой либо металлизируются слоем цинка или алюминия.

Внешний вид готовых плит и качество их поверхностей должны удовлетворять требованиям ГОСТ 13015-75.

Хранение и транспортировка

1ПВ 12-1 АтVт-14 (1.465.1-3/80) перевозят и складируют в рабочем (горизонтальном положении). Изделия располагаются в штабелях, по высоте не больше пяти плит. Между конструкциями ряда в приопорной части устанавливаются инвентарные прокладки толщиной не менее трех сантиметров. Погрузочно-разгрузочные работы осуществляются с применением траверс. Перевозка плит должна происходить специализированным транспортом - автоплитовозами, железнодорожными платформами с турникетами.