1РЖ 8-48-145 АIV-1

1РЖ 8-48-145 АIV-1
О товаре
Цена по запросу
ОПИСАНИЕ
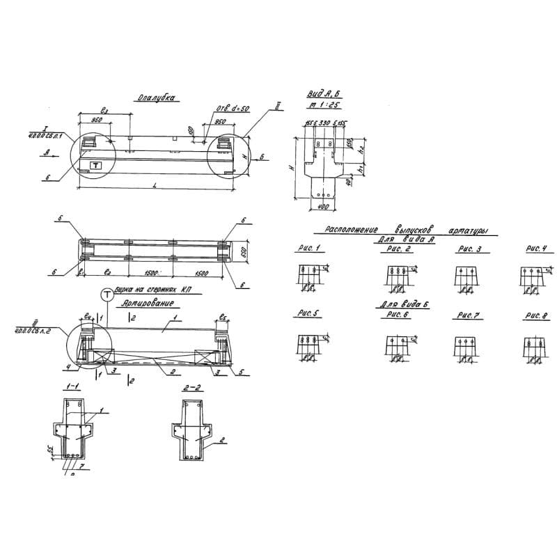
Ригели 1РЖ 8-48-145 АIV-1 – прямоугольные железобетонные изделия. Отличительной особенностью запроектированных по Серии 1.420-8/81 ригелей является форма сечения. Они могут иметь тавровое или крестообразное поперечное сечение.
Высокопрочные ригели широко применяются при строительстве двухэтажных производственных бескрановых зданий. Они служат надежной опорой для ребристых плит высотой 400 мм под нагрузку на перекрытие до 5 тс/м2. Конструкции рассчитаны как поперечные рамы с жесткими узлами. При разработках учитывались рекомендации СНиП II-21-75. Элементы отличаются высокой прочностью и способностью выдерживать колоссальные равномерно распределенные нагрузки. Изделия обладают высокой надежностью и продолжительным эксплуатационным сроком.
Расшифровка маркировки
На изделия наносятся специальные знаки, упрощающие процесс поиска и сортировки необходимых по типовому проекту конструкций. Маркировочное обозначение 1РЖ 8-48-145 АIV-1 расшифровывается:
1. 1 – вид сечения (1 – крестообразное; 2 – в виде перевернутой буквы «Т»);
2. РЖ – тип конструкции – ригель железобетонный;
3. 8 – высота сечения;
4. 48 – длина;
5. 145– величина расчетной нагрузки;
6. АIV - класс рабочей арматуры.
Дополнительно в конце маркировки могут прописываться цифровые индексы «1» и «2», указывающие на отличие изделия по армированию и эксплуатацию в условиях средне и слабоагрессивной среды. Также может указываться плотность бетона («н» -нормальная, «п» - повышенная).
Материалы и производство
Регламентирует производство ригелей 1РЖ 8-48-145 АIV-1 Серия 1.420-8/81. Изготовление должно осуществляться из тяжелого бетона марки М400. Для улучшения физико-химических свойств конструкций в бетонную смесь вводятся специальные добавки, позволяющие продлить эксплуатационный срок и увеличить сопротивляемость вредоносному воздействию температурных перепадов и влажности.
Для армирования элементов используются предварительно напряженная стержневая сталь: термически упрочненная периодического профиля класса ATV по ГОСТ 10884-81 и горячекатаная периодического профиля класса AIV по ГОСТ 5781-81. Напряжение стержней предусмотрено электротермическим или механическим способом.
Допускается применение стали класса AIIIB. Она также используется в качестве поперечного и продольного армирования. В сетках присутствует обыкновенная проволока периодического профиля класса Bp-I по ГОСТ 6727-80. Закладные детали следует изготавливать из сортового проката класса С38/23 по ГОСТ 380-71. Антикоррозионная защита должна осуществляться с соблюдением требований СНиП II-28-73.
Предел огнестойкости составляет 2 часа. К поставке допускаются элементы, прошедшие приемо-сдаточные испытания и подтвердившие высокое качество, соответствие нормативным стандартам и эксплуатационным характеристикам.
Транспортировка и хранение
Складирование ригелей должно осуществляться на специально оборудованных территориях в штабелях, рассортированных по маркам. Подкладочный материал толщиной 60 мм необходимо располагать на расстоянии 500 мм от торцов изделий. Максимально допустимая высота укладки два ряда.
Для транспортировки конструкций необходимо использовать грузовые автотранспортные средства, оборудованные крепежными механизмами, защищающими изделия от падения, смещений и механических повреждений. Подъём конструкций нужно производить в соответствии с требованиями и рекомендациями СНиП III-B.16-80.