2ПСВ 70-29-12-2 т-2

2ПСВ 70-29-12-2 т-2
О товаре
Цена по запросу
ОПИСАНИЕ
Панель стеновая 2ПСВ 70-29-12-2 т-2–строительный материал, выполненный из железобетона. Предназначается для разработки проекта и сооружения внутренних стен 5 и 9 ти этажных домов, с высотой этажа 3 метра. Предусматривает использование в районах обычных и вечномерзлых, непросадочных грунтов. Панели стеновые производят разного типа и с различными габаритами. Возможно производство панелей глухих и с проемами. Кроме рядовых панелей предусмотрено выполнение панелей для чердака и технического этажа. Толщина стен идет выполняется 120 и 160 мм. Панели принято считать огнеустойчивыми. Данные конструкции отнесены к 3-й категории трещиностойкости по СНиП 11-21-75.
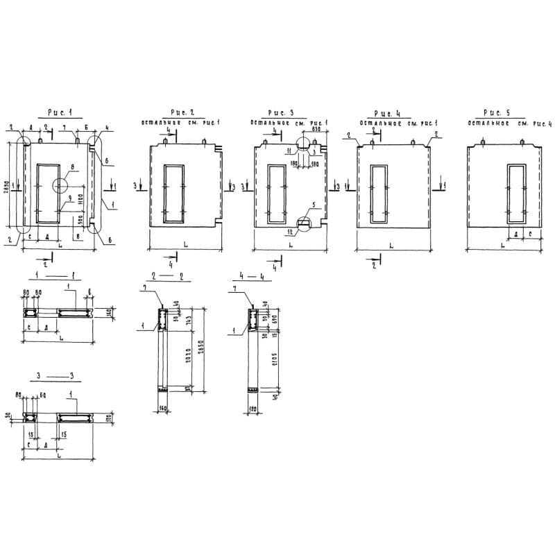
Расшифровка маркировки
Маркировка изделия – буквенно-численная комбинация. По маркировке можно прочитать тип панели, габаритные размеры, несущую способность. Маркировка панели 2ПСВ 70-29-12-2 т-2 можно расшифровать так:
1. 2–группа панелей;
2. ПСВ–буквенное обозначение панели;
3. 70–длина (в дм);
4. 29–высота (в дм);
5. 12–толщина (в см);
6. 2–несущая способность;
7. т–бетон тяжелый;
8. 2–тип проема.
На боковой стороне каждого изделия несмываемой краской наносится: марка изделия, штамп изготовителя, дата изготовления, штамп ОТК, масса изделия.
Материалы и производство
Формирование панелей 2ПСВ 70-29-12-2 т-2 происходит в специальных кассетных установках. Стеновые панели следует изготавливать из тяжелого бетона марок 150, 200 на фракционном щебне из скальных пород крупностью не более 30 – 35 мм. Цемент для приготовления бетона должен отвечать требованиям ГОСТа 10178-76. Армируются такие изделия арматурными каркасами. Рабочая арматура предусмотрена класса AIII и ВрI. Подъемные петли выполняются из стали марки AI. Закладные детали из стали класса ВСт3сп5 по ГОСТ 380-71*. Фиксирование положения арматурных блоков следует выполнять при помощи цементно-песчаных или пластмассовых фиксаторов. Не допускается использование для этих целей обрезков арматурной проволоки и стальных пластин. Чтобы не происходило ржавление металла во время эксплуатации, все стальные изделия проходят антикоррозийную обработку.
При использовании панелей по Серии 1.131.1-25 Должны приводиться схематические чертежи с указанием местоположения розеток, каналов, выключателей, указывать узлы сопряжения панелей с другими конструкциями.
Во время разработки конкретного проекта допускается изменять привязки дверных проемов, но не более чем на 1метр. Изменять армирование (при условии расчета панелей на другую величину относительных деформаций). Изменять марку бетона при необходимости увеличить несущую способность.
Готовые конструкции должны быть приняты техническим контролем завода-изготовителя. На поверхности панелей не должно быть ржавых и маслянистых пятен, раковин диаметром более 10 мм. И глубиной более 5 мм., трещин, оголенной арматуры. Фактические размеры не должны отличаться от проектных более чем на 5 мм.
Транспортировка и хранение
Изделия хранятся на специально оборудованных складах. Готовые панели 2ПСВ 70-29-12-2 т-2 устанавливаются в специальные кассеты. Изделия следует складировать рассортированные по типам, маркам и партиям. Изделия, которые не прошли проверку и отправлены на ремонт, должны храниться отдельно. Изделия перевозят специальным автотранспортом – панелевозом. При перевозке изделия должны быть тщательно зафиксированы. Не допускается разгрузка изделий со свободным их падением. Запрещается перемещать изделия волоком. При перевозке и монтаже изделий нужно соблюдать технику безопасности, чтобы не допустить нарушения сохранности изделий.